Страница 3 - ОГЛАВЛЕНИЕ
1 Любители тепла одобряют! ОГЛАВЛЕНИЕ 1 О Компании...................................................................................................... 2 2 Введение.......................................................................................................... 2 3 Общая информация...........
Страница 4 - О КОМПАНИИ
2 Любители тепла одобряют! 1 О КОМПАНИИ Компания «Теплодар» разрабатывает и производит отопительное и печ- ное оборудование с 1997 года. Творческий подход на всех этапах производ- ственного процесса, тщательный выбор поставщиков и пристальное внимание к потребностям покупателя — вот базовые принципы...
Страница 5 - Общая информация; • Куппер Практик 8; Устройство и принцип действия
3 Любители тепла одобряют! ВНИМАНИЕ! Требуйте заполнения соответствующих разделов РЭ торгующими, монтажными и сервисными организациями. Помните, в слу- чае не заполнения торгующей организацией свидетельства о покупке, га- рантия исчисляется с даты изготовления оборудования. 3 Общая информация Водогр...
Страница 6 - Котёл оснащен двумя дверками: загрузочной и зольной.; Конструкция котла
4 Любители тепла одобряют! Топка котла изготавливается из низкоуглеродистой конструкционной ста- ли толщиной 3 мм. Внешний корпус котла изготавливается из низкоуглероди- стой конструкционной стали толщиной 2 мм. Для обеспечения достаточной прочности водяной рубашки стенки наружного и внутреннего кор...
Страница 7 - Рис. 1 Котёл Куппер Практик
5 Любители тепла одобряют! Рис. 1 Котёл Куппер Практик [1] Корпус топки. [2] Наружный корпус водяной рубашки. [3] Выход дымохода. [4] Ши- бер. [5] Штуцер подачи G1 1/2’’. [6] Штуцер G3/4’’ регулятора горения. [7] Термометр. [8] Штуцер обратки G1 1/2’’. [9] Блок ТЭН. [10] Штуцер блока ТЭН. [11] Дверц...
Страница 8 - Модель котла; Технические характеристики
6 Любители тепла одобряют! Модель котла Куппер Практик-8 Куппер Практик-14 Куппер Практик-20 Теплопроизводительность, кВт 8 14 20 Рабочее давление в котле, МПа (кгс/см2), не более 0,1(0,1) Площадь отапливаемых помещений высотой до 2,7 м, м2 от 40 до 80 от 90 до 140 от 130 до 200 Максимальная темпера...
Страница 9 - плива и теплоносителя, и многого другого.; Рис. 2 Схема подключения котла к закрытой системе с прину-; Дополнительное оборудование
7 Любители тепла одобряют! Выбор котла имеет первостепенное значение при проектировании си- стемы отопления и требует предметной консультации с квалифицированным специалистом. Какая модель подойдёт в конкретном случае зависит от объёма отапливаемого помещения, конструкции здания, вида системы отопле...
Страница 10 - Требования к теплоносителю
8 Любители тепла одобряют! Установка гидроразделителя производится в соответствии с прилагаемым к нему руководством по эксплуатации. Для подключения к системе дымоотведения рекомендуется использовать дымоходы производства компании «Теплодар» (подробнее ― в разделе «Мон- таж котла и дымохода»). Для у...
Страница 11 - Монтаж котла и дымохода; Требования пожарной безопасности
9 Любители тепла одобряют! ВНИМАНИЕ! На недостатки (дефекты), обусловленные засорением котла загрязняющими веществами, попавшими из системы отопления, га- рантия не распространяется. 4 Монтаж котла и дымохода Установка котла, монтаж дымовой трубы и системы отопления должны производиться в соответств...
Страница 12 - Рис. 3 Схема расположения котла в помещении
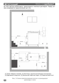
10 Любители тепла одобряют! на слое картона асбестового, пропитанного глиняным раствором. Перед кот- лом устраивается предтопочный лист [5]. Рис. 3 Схема расположения котла в помещении (размеры в мм) [1] Запас твёрдого топлива. [2] Лестница и другие выступающие конструкции. [3] Дренажное отверстие. ...
Страница 13 - Подключение к системе дымоотведения; Котёл должен подсоединяться к отдельному дымоходу.; Рис. 4 Рекомендуемые схемы подключения котла к системе
11 Любители тепла одобряют! 4.2 Подключение к системе дымоотведения Рекомендуемые схемы подключения котла к системе дымоотведения при- ведены на рис. 4. ВНИМАНИЕ! Котёл должен подсоединяться к отдельному дымоходу. Запрещается использовать в качестве дымохода вентиляционные и дру- гие, не предназначе...
Страница 14 - Подключение к системе отопления
12 Любители тепла одобряют! В качестве дымохода для твёрдотопливного котла рекомендуется исполь- зовать тонкостенные дымовые трубы из нержавеющей стали, производимые компанией «Теплодар». Наилучшим решением является установка готовых мо- дулей трубы с термоизоляцией типа «сэндвич» рис. 4 (в, г, д). ...
Страница 17 - в) закрытая система с принудительной циркуляцией.; там 10 литров на 1 кВт мощности котла.
15 Любители тепла одобряют! в) закрытая система с принудительной циркуляцией. Рис. 5 Рекомендуемые схемы подключения котла к системе отопления. [1] Дымоход. [2] Шибер поворотный. [3] Встроенный термометр на подаче. [4] Группа безопасности 0,15 МПа. [5] Бак расширительный. [6] Кран подачи. [7] Кран п...
Страница 18 - При необходимости проверки системы отопления на; Подключение к электросети; медного провода не менее 2,5 мм2 и автоматами защиты 16 А.
16 Любители тепла одобряют! ВНИМАНИЕ! При необходимости проверки системы отопления на давление более 0,15 МПа, котёл и мембранный бак от системы отключить. Повышение давления должно быть кратковременным (до 10 минут). ВНИМАНИЕ! Прилагаемые схемы являются базовыми для создания устройств, отвечающих п...
Страница 19 - Эксплуатация котла; Проверка котла перед вводом в эксплуатацию
17 Любители тепла одобряют! ВНИМАНИЕ! Корпус котла необходимо заземлить. Болт заземления М6 находится на задней поверхности опоры котла, а его расположение маркируется знаком «заземление». 5 Эксплуатация котла ЗАПРЕЩАЕТСЯ: • Устанавливать запорный вентиль на трубопроводе между котлом и груп- пой без...
Страница 20 - Ввод в эксплуатацию
18 Любители тепла одобряют! 5.2 Ввод в эксплуатацию ВНИМАНИЕ! Перед первым протапливанием котла внимательно оз- накомьтесь с настоящим описанием и рекомендациями. ВНИМАНИЕ! Розжиг котла допускается только после заполнения си- стемы отопления теплоносителем. ВНИМАНИЕ! Эксплуатация котла с неисправным...
Страница 21 - Рис. 6 Регулировка подачи воздуха; Подпитка системы в ходе эксплуатации; Заполнение или долив системы отопления необходимо
19 Любители тепла одобряют! Рис. 6 Регулировка подачи воздуха а) при помощи винта; б) при помощи регулятора горения. 5.4 Подпитка системы в ходе эксплуатации При эксплуатации котла необходимо поддерживать уровень теплоносите- ля, периодически подливая его в расширительный бак открытой системы, или п...
Страница 22 - Обслуживание котла
20 Любители тепла одобряют! ВНИМАНИЕ! Эксплуатация котлов без докотловой или внутрикотло- вой обработки воды запрещается. 5.5 Обслуживание котла При использовании в качестве топлива каменного угля возможно образо- вание шлака. Он препятствует проникновению воздуха в зону горения и сни- жает эффектив...
Страница 23 - Возможные неисправности и способы их устранения; Таблица 2; Гарантийные обязательства; ствующими нормативно-техническими документами.
21 Любители тепла одобряют! 5.6 Возможные неисправности и способы их устранения НЕИСПРАВНОСТЬ ПРИЧИНЫ УСТРАНЕНИЕ НЕИСПРАВНОСТЕЙ Температура тепло- носителя в котле максимальна, а ра- диаторы холодные Утечка теплоносителя в системе Устранить утечку теплоносителя и пополнить систему Воздух в отопитель...
Страница 24 - Транспортирование и хранение
22 Любители тепла одобряют! ВНИМАНИЕ! Претензии к работе изделия не принимаются, бесплат- ный ремонт и замена не производятся в следующих случаях: - Неисправность возникла в результате небрежного обращения; - Несоблюдение потребителем правил монтажа, эксплуатации и об- служивания. - Монтаж печи и ды...
Страница 25 - Паспорт изделия; Комплект поставки; Утилизация; щего оборудования по правилам утилизации лома чёрного металла.; Таблица 3; Перечень запасных частей и комплектующих поставля-
23 Любители тепла одобряют! 9 Паспорт изделия 9.1 Комплект поставки Котёл Куппер Практик 8 Куппер Практик 14 Куппер Практик 20 Винт регулировки подачи воздуха 1 1 1 Блок ТЭН 6кВт 1 1 1 Колпак на блок ТЭН 1 1 1 8 Утилизация При выработке срока службы и наступления предельного состояния котла (разгерм...
Страница 26 - Свидетельство о приемке; Котёл отопительный; Куппер Практик: 8 14 20; Свидетельство о продаже
24 Любители тепла одобряют! Ящик зольника 1 1 1 Створка котла ОК-15, ОВК-18, ОК-20, ОК-30 Чугун 1 1 1 Кочерга 1 1 1 Шуровка 1 1 1 Дверца зольная 1 1 1 Дверца ОВК-10 - 1 1 Дверца загрузочная 1 - - Заглушка 3/4’’ 1 1 1 Шибер d115 1 1 - Шибер d150 - - 1 Котёл Куппер Практик 8 Куппер Практик 14 Куппер П...
Страница 27 - Отметка о подключении к системе отопления
25 Любители тепла одобряют! 9.5 Отметка о подключении к системе отопления Виды работ Дата Название монтаж- ной организации Штамп монтаж- ной организации Ф.И.О. мастера, подпись Подключение к системе отопле- нияОтключение от системы отопле- нияПодключение к системе отопле- нияОтключение от системы от...
Страница 30 - Авторизованные сервисные центры компании «Теплодар»
Область Город Организация Адыгея Майкоп СЦ «Аква-Юг», пгт. Яблоновский, ул. Кобце- вой, д.1, корп.4 (оф.18), Часы работы: пн-пт 09:00-18:00, Тел.: +7 (861) 944-17-61, +7 (918) 98-238-98, akva-yug01@mail.ru Алтайский край Бийск СЦ ИП Казанцева Е.Н, пер. Мопровский, д.67, Часы работы: пн-сб 09:00-18:0...
Страница 34 - Список авторизованных сервисных
Авторизованные сервисные центры (АСЦ) компании «Теплодар» предлагают своим клиентам комплекс услуг: проектирование, монтаж и сервисное обслужи- вание продукции «Теплодар» (гарантийное и постгарантийное). Специалисты АСЦ прошли обучение по монтажу и техническому обслуживанию продукции компании «Тепло...