Телевизоры Samsung UE82TU8000U - инструкция пользователя по применению, эксплуатации и установке на русском языке. Мы надеемся, она поможет вам решить возникшие у вас вопросы при эксплуатации техники.
Если остались вопросы, задайте их в комментариях после инструкции.
"Загружаем инструкцию", означает, что нужно подождать пока файл загрузится и можно будет его читать онлайн. Некоторые инструкции очень большие и время их появления зависит от вашей скорости интернета.

Русский - 8
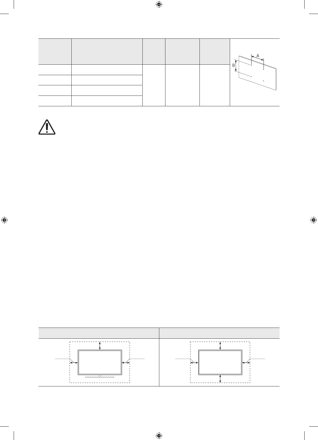
Размер
телевизора в
дюймах
Параметры отверстий для
винтов стандарта VESA, в
миллиметрах (A × B)
C (мм)
Стандартный
винт
Количество
43-55
200 x 200
20-22
*39-41
M8
4
65
400 x 300
75
400 x 400
82
600 x 400
*: Эти спецификации поддерживаются моделью TU8500, TU8510, TU8570.
Не выполняйте установку набора для настенного монтажа, когда телевизор включен. Это
может привести к травме вследствие поражения током.
• Не используйте слишком длинные винты или винты, не соответствующие стандарту VESA.
Использование винтов длиннее стандартного размера может привести к повреждению внутренних
элементов телевизора.
• Длина винтов для настенного крепления, не соответствующая стандарту VESA, может отличаться в
зависимости от технических характеристик настенного крепления.
• Не затягивайте винты слишком сильно. Это может повредить устройство или стать причиной его
падения и привести к травме. Samsung не несет ответственности за подобные несчастные случаи.
• Samsung не несет ответственности за повреждение устройства или травмы, полученные
при использовании настенного крепления, не соответствующего стандартам VESA или не
предназначенного для этих целей, а также в случае несоблюдения инструкций по установке
устройства.
• Не устанавливайте телевизор под наклоном более 15 градусов.
• Установку телевизора на стену всегда следует выполнять вдвоем.
–
Осуществлять настенный монтаж моделей с диагональю экрана 82 дюйма и больше следует
вчетвером.
Обеспечение достаточной вентиляции для телевизора
При установке телевизора оставьте расстояние не менее 10 см между телевизором и другими объектами
(стенами помещения, стенками шкафов и т. д.) для обеспечения достаточной вентиляции. Отсутствие
достаточной вентиляции может стать причиной возгорания или поломки изделия из-за перегрева.
• При установке телевизора на подставку или настенное крепление используйте только те детали,
которые поставляются Samsung Electronics. При использовании деталей других производителей
могут возникнуть проблемы с установкой изделия, кроме того, изделие может упасть и нанести
травму.
Установка на подставку
Установка на настенное крепление
10 см
10 см
10 см
10 см
10 см
10 см
10 см
Содержание
- 2 Знакомство с функциями, упрощающими работу с электронным; Знакомство с функциями кнопок на страницах электронного
- 3 Предупреждение! Важные указания по
- 5 Содержание
- 6 1 Что входит в комплект?
- 7 2 Установка телевизора; Монтаж телевизора на стене
- 8 Обеспечение достаточной вентиляции для телевизора
- 9 Меры предосторожности: Надежное крепление телевизора к стене
- 10 Предотвращение падения телевизора
- 11 3 Интеллектуальный пульт ДУ Samsung; Кнопки интеллектуального пульта ДУ Samsung
- 12 Установка батарей в Интеллектуальный пульт ДУ Samsung
- 13 4 Первоначальная настройка; Использование руководства ТВ-контроллер
- 14 5 Подключение к сети; Беспроводное сетевое соединение; Проводное сетевое соединение
- 15 6 Устранение неисправностей и; Поиск и устранение неисправностей; Телевизор не включается.
- 17 Что такое удаленная поддержка?; Как работает удаленная поддержка?; Датчик экономного режима и яркость экрана
- 18 Очистка поверхности телевизора
- 19 7 Технические характеристики и прочая; Технические характеристики
- 21 Условия окружающей среды; Уменьшение потребления электроэнергии
- 22 Лицензии; Рекомендация – только для стран ЕС
- 23 Режим ожидания
- 25 Телегид
- 27 Часто задаваемые вопросы
- 28 Узнайте, как пользоваться различными функциями и возможностями.; Подключения; Источник Указания по подключению
- 30 Подключение к сети Интернет; С помощью телевизора можно подключиться к Интернету.; Настройки Общие Сеть Открыть настройки сети; Конфигурация сетевых настроек для подключения к доступной сети.; Установление проводного соединения с сетью Интернет
- 32 Беспроводное соединение
- 33 Просмотр информации о текущем состоянии сети и сети Интернет.; Сброс сети; Восстановление заводских настроек.; Включение телевизора с помощью мобильного устройства; Изменение имени телевизора; Имя телевизора в сети можно изменить. Выберите
- 34 Вывод на экран (Smart View) для мобильного устройства; Использование руководства Tap View
- 35 Включение поддержки функции Tap View; Включите Tap View в приложении SmartThings.; Использование руководства Multi View; Для запуска функции; Выбрать содержимое
- 36 Распределение звука
- 37 Кабели для подключения внешних устройств; Название кабеля
- 39 Источник; Изменение названия и значка внешнего устройства; Переместите фокус на подключенное внешнее устройство.
- 40 Использование дополнительных функций; Представленные на экране
- 41 Примечания по подключению; Примечания относительно подключения через порт HDMI
- 42 Примечания по подключению для аудиоустройств; Примечания по подключению для компьютеров
- 43 Примечания относительно подключения мобильных устройств
- 44 Пульт ДУ и периферийные устройства; О пульте Интеллектуальный пульт ДУ Samsung
- 47 О пульте Интеллектуальный пульт ДУ Samsung (The Frame)
- 53 и удерживайте их не менее 3 секунд.
- 56 Управление телевизором с помощью клавиатуры, мыши или геймпада; Подключение USB-клавиатуры, мыши или геймпада; Вставьте кабель клавиатуры, мыши или геймпада в порт USB.; Подключение Bluetooth-клавиатуры, мыши или геймпада
- 57 Работа с клавиатурой и мышью; Кнопка
- 58 Настройка устройств ввода; Для настройки клавиатуры используйте следующие функции:; Ввод текста с помощью экранной виртуальной клавиатуры
- 59 на Интеллектуальный пульт ДУ
- 60 Функции SMART; С помощью Smart Hub можно пользоваться различными приложениями.; Использование Smart Hub
- 61 Отображение первоначального экрана; Нажмите кнопку; При наведении фокуса на элемент
- 64 Поиск; Apps
- 65 Universal Guide
- 66 Книжный режим
- 67 Удаление элемента на первоначального экрана
- 68 Если для параметра; Автоматический запуск последнего использованного приложения; Если для функции; Тестирование подключений Smart Hub
- 69 Использование учетной записи Samsung; Создайте собственную учетную запись Samsung и управляйте ею.; Настройки Общие Диспетчер системы Уч. зап. Samsung; Вход в учетную запись Samsung
- 70 Выйти
- 71 Использование руководства Ambient Mode; Ambient Mode; Включение режима Ambient Mode; Экран браузера Ambient Mode
- 72 Настройка времени автоматического выключения экрана в режиме; Позволяет войти на экран просмотра телевизора.
- 73 Выбор категории содержимого
- 74 Применение эффектов к содержимому
- 75 Просмотр подробной информации о содержимом
- 76 Использование руководства Ссылка; или поставщик услуг
- 77 Добавление каналов; Каналы; Перемещение каналов; Удаление каналов; Удалить
- 78 Использование Remote Access; Источник Remote Access; Remote Access secured by Knox; Подключение к удаленному компьютеру; Обеспечивает подключение к
- 80 Подключить к удаленному ПК; или нажмите; Дом
- 82 Использование Вывод на экран (Беспроводная); Использование Samsung DeX; Samsung DeX; Использование Office 365; Добавление облачной службы; Добавить облачную службу
- 83 Использование Облачная служба; Remote
- 84 Использование службы Apps; Скачивайте и запускайте различные приложения через Smart Hub.; Перейдите на экран; Поиск приложений
- 85 Установка приложения; Установить; Запуск приложения; Загруженное приложение
- 86 Управление установленными приложениями; Удаление приложения; Добавление приложений на первоначального экрана
- 87 Блокировка и разблокировка приложений; Перемещение приложений; Автоматическое обновление приложений
- 88 Работа с приложением Галерея
- 89 Настройки Gallery
- 90 Работа с приложением SmartThings; SmartThings; Список выбора местоположения
- 91 Использование руководства e-Manual; Вы можете пользоваться руководством, встроенным в телевизор.; Настройки Поддержка Открыть e-Manual
- 92 Функции кнопок в e-Manual
- 93 Связать
- 94 Использование руководства Internet; Выбрав
- 95 Фильтр по
- 96 Воспроизведение мультимедийного содержимого с USB-устройства
- 97 Пауза
- 99 Повтор
- 101 Использование Bixby; Запуск Bixby с помощью голосовой команды; Изучить сейчас
- 102 Мой профиль; Учебные руководства; Язык
- 103 Можно изменить или отключить голос Bixby.; Рекомендуемые команды; Bixby: важная информация
- 104 Условия использования Bixby
- 105 Просмотр телевизора; Использование руководства Телегид; Прямой эфир Телегид; На экране
- 108 Запись программ; Мгновенная запись
- 109 Управление настройками списка записи по расписанию; Просмотр записанных программ
- 110 Настройка функции Просмотр по расписанию
- 111 Просмотр программ по расписанию в определенный день и время; Настройка времени просмотра по расписанию
- 112 Использование Timeshift
- 114 Использование руководства Список каналов; Прямой эфир Список каналов
- 115 Редактирование каналов; Прямой эфир Список каналов Изменение каналов
- 116 Использование личного списка избранного; Создание списка избранного
- 117 Вспомогательные функции для просмотра; Переключение сигнала вещания; Поиск доступных каналов; Выбор параметра поиска кабельной сети
- 118 Установка времени выхода из спящего режима; Ограничение возможности просмотра определенных каналов; Перейдя в меню, можно включить или отключить функцию
- 119 не работает для
- 120 Меню CI
- 121 Настройка цифровых каналов; Настройка аналоговых каналов; Точная настройка аналогового вещания; Передача списка каналов
- 122 Основной язык телетекста
- 123 Выбор языка аудио для каналов вещания; Параметры звука; Отображение меню параметров Интерфейс TVkey; Вы можете использовать следующие функции:; Чтение цифрового текста
- 124 Изображение и Звук; Использование руководства Интеллектуальный режим; Настройки Общие Настройки интеллектуального режима; Интеллектуальный режим; Активный усилитель голоса
- 125 Адаптивный звук; Адаптивная громкость
- 126 Настройка качества изображения; Изменение Режим изображения и Дополнительные настройки.; Выбор режима изображения; Вы можете выбрать оптимальный
- 128 Настройка параметров среды просмотра для внешних устройств; Игры на оптимизированном экране; Объемный звук
- 129 Расширить входной сигнал подключений HDMI.; Использование параметра уровня черного HDMI
- 130 Дополнительные настройки изображения; Настройте параметры изображения на телевизоре.; Настройки Изображение PIP
- 131 Масштаб и положение
- 132 Настройка Режим звука и Дополнительные настройки; Изменение Режим звука и Дополнительные настройки.; Выбор режима звука; Изменение расширенных настроек звука; Баланс; Формат выхода цифрового звука
- 133 Задержка выхода цифрового звука; Совместимость с Dolby Atmos; Громкость авто
- 134 Использование дополнительных настроек звука; Настройте параметры звука на телевизоре.; Выбор динамиков; Вывод звука; Воспроизведение звука телевизора через устройства Bluetooth
- 135 Настройки Звук Настройка объемного звука динамиков Wi-Fi
- 136 Система и Поддержка; Использование функций настройки времени и таймеров; Настройки Общие Диспетчер системы Время; Часы; Автоматическая настройка часов
- 137 GMT; Изменение текущего времени; Смещение по времени
- 139 Использование функций Автозащита и Экон. энергии; Установка Автозащита; , слишком низкая или высокая, можно скорректировать ее; Если включена функция
- 140 Режим энергосбережения; Подсветка движения; Автовыключение
- 141 Обновление программного обеспечения телевизора; Настройки Поддержка Обновление ПО; Обновление через устройство USB; Автообновление
- 142 Аудио- и видеофункции для людей с нарушениями зрения или слуха; Можно настроить функции для людей с нарушениями зрения или слуха.; Запуск специальных функций; меню
- 144 Переключение экрана в черно-белый режим
- 145 Увеличение шрифта (для людей с нарушениями зрения); Увеличение; Обучение обращению с пультом ДУ (для людей с нарушенным зрением); Обучение использованию пульта дистанционного управления ТВ; Информация о меню телевизора
- 147 Настройки Общие Специальные возможности Мультивыход аудио; сурдоперевода
- 148 Использование голосовых функций; Вы можете изменить настройки голосовой функции.; Изменение настроек голосовых функций; Можно изменить
- 149 Использование других функций; Ознакомьтесь с другими функциями.; Выбор языка меню; Режим использования; Управление внешними устройствами; Уведомление о доступе
- 150 Заводские настройки телевизора можно восстановить.; Выключение в режиме Книжный режим
- 151 HbbTV; и включите или выключите
- 152 Подключение адаптера карты CI к слоту COMMON INTERFACE
- 153 Подключение карты CI или CI+; Подключение карты CI или CI+ к через гнездо COMMON INTERFACE
- 154 Использование карты CI или CI+
- 155 На Интеллектуальный пульт ДУ Samsung; транслируемого канала. С каждым нажатие кнопки
- 156 На стандартном пульте ДУ
- 158 Size; Стандартная страница телетекста; Часть
- 159 Меры предосторожности и примечания; Перед использованием функций Запись и Timeshift
- 160 Поддерживаемые параметры передачи звука
- 161 Apps: важная информация
- 162 Прочтите перед использованием функции Internet
- 163 Протоколы системы безопасности беспроводной сети
- 165 Поддерживаемые субтитры; Форматы субтитров
- 166 Поддерживаемые форматы и разрешение изображений; Поддерживаемые форматы музыкальных файлов и кодеки
- 168 Поддерживаемые видеокодеки (серии Q6 и TU8)
- 172 Ознакомьтесь с данным разделом после установки телевизора; Ознакомьтесь с данной информацией после установки телевизора.; Размер изображения и входящие сигналы; Параметр; Установка замка для защиты от краж
- 173 Поддерживаемые разрешения для входящих сигналов UHD
- 176 IBM
- 177 VESA DMT
- 178 VESA CVT
- 179 Поддерживаемые настройки разрешения для видеосигналов
- 181 Поддерживаемые настройки разрешения для HDBT
- 182 Ограничения при использовании соединения Bluetooth; Настройка объемного звука
- 183 Информация о лицензиях & и другие сведения; Open Source License Notice
- 185 Проблемы с изображением; Тестирование изображения; изображения; Тест изображения
- 189 Проблемы со звуком и шумом; Тестирование звука; тест; Если телевизор воспроизводит мелодию
- 192 Проблемы с каналами и вещанием; Неисправность
- 193 Проблемы с подключением внешних устройств
- 195 Проблемы с сетью; подключения Smart Hub
- 198 Проблемы с пультом дистанционного управления
- 199 Проблемы с записью
- 200 Приложения; Мультимедийные файлы
- 201 Проблемы с распознаванием голоса
- 202 Другие проблемы
- 204 Диагностика проблем в работе телевизора; Настройки Поддержка Обслуживание устройства Самодиагностика; Функцию
- 205 Поддержка; Поддержка через Удаленное управление; Настройки Поддержка Удаленное управление; можно включать и отключать по своему; Поиск контактной информации службы; Настройки Поддержка Об этом телевизоре; Запрос на обслуживание; и нажмите кнопку Выбор. Выберите
- 206 Меня не устраивает изображение на экране; Когда изображение на телеэкране низкого качества; Проверьте подключение антенны и кабеля входного сигнала.
- 207 Проверьте подключение антенны и кабеля HDMI.
- 209 Выберите
- 210 ОК
- 211 Чтобы проверить силу сигнала, выберите
- 212 Соответствующий раздел меню
- 213 Телевизор не включается; Если телевизор не включается
- 219 В случае искажения изображения
- 224 Отсутствует доступ к Интернету; Если телевизор не подключается к Интернету
- 225 Чтобы проверить состояние сети, выберите
- 227 Если устранить проблему не удается, выберите; Состояние сети; Если устранить проблему не удается, выберите
- 228 Обновить сейчас
- 229 Отсутствует звук, или динамики издают странные звуки; Если звук в телевизоре отсутствует или прерывается
- 231 Чтобы проверить звуковой вывод, выберите; на пульте
- 232 Чтобы проверить звук, выберите; Если в ходе проверки обнаружена неполадка, выберите
- 233 Если неполадки отсутствуют, выберите
- 236 Пульт дистанционного управления не работает; Если пульт дистанционного управления не работает; Проверьте передачу инфракрасного сигнала с пульта ДУ и его прием.
- 237 Удостоверьтесь, что пульт ДУ работает надлежащим образом.
- 239 Установите сопряжение с помощью инструкций на экране.
- 241 Обновление программного обеспечения; на пульте дистанционного управления и перейдите в раздел; Чтобы включить автоматические обновления, выберите
- 243 Об этом телевизоре
- 244 Чтобы скачать встроенное ПО, нажмите Загрузка.
- 247 После перезагрузки телевизора выберите
- 248 Подробнее об экранном меню; Использование пульта ДУ; Ориентация пульта Интеллектуальный пульт ДУ Samsung
- 250 Использование меню специальных возможностей; Переход к меню Ссылки доступности; Настройки Общие Специальные возможности
- 252 Информация о функциях меню Специальные возможности; Настройки голосовых инструкций
- 253 дважды нажмите кнопку
- 254 Переключение каналов; виртуальная
- 255 Изменение громкости
- 256 Использование телегида
- 259 Использование Просмотр по расписанию; Настройка просмотра по расписанию; Отмена просмотра по расписанию
- 262 Запись; Запись программы на внешний жесткий диск, подключенный через USB.
- 265 Smart Hub; Netflix
- 266 Использование первоначального экрана Smart Hub
- 270 Инструкции по использованию Bixby для управления телевизором.; Запуск функции Bixby; Нажмите и удерживайте кнопку питания












