Сушильные машины Miele TDB120 - инструкция пользователя по применению, эксплуатации и установке на русском языке. Мы надеемся, она поможет вам решить возникшие у вас вопросы при эксплуатации техники.
Если остались вопросы, задайте их в комментариях после инструкции.
"Загружаем инструкцию", означает, что нужно подождать пока файл загрузится и можно будет его читать онлайн. Некоторые инструкции очень большие и время их появления зависит от вашей скорости интернета.
/html/pdf_to_image062.png)
Aufstellen und Anschließen
62
Unterbau unter einer Arbeitsplatte
Der Waschmaschinendeckel darf
nicht demontiert werden.
Diese Waschmaschine kann komplett
(mit Deckel) unter eine Arbeitsplatte ge-
schoben werden, wenn eine ausrei-
chende Arbeitsplattenhöhe vorhanden
ist.
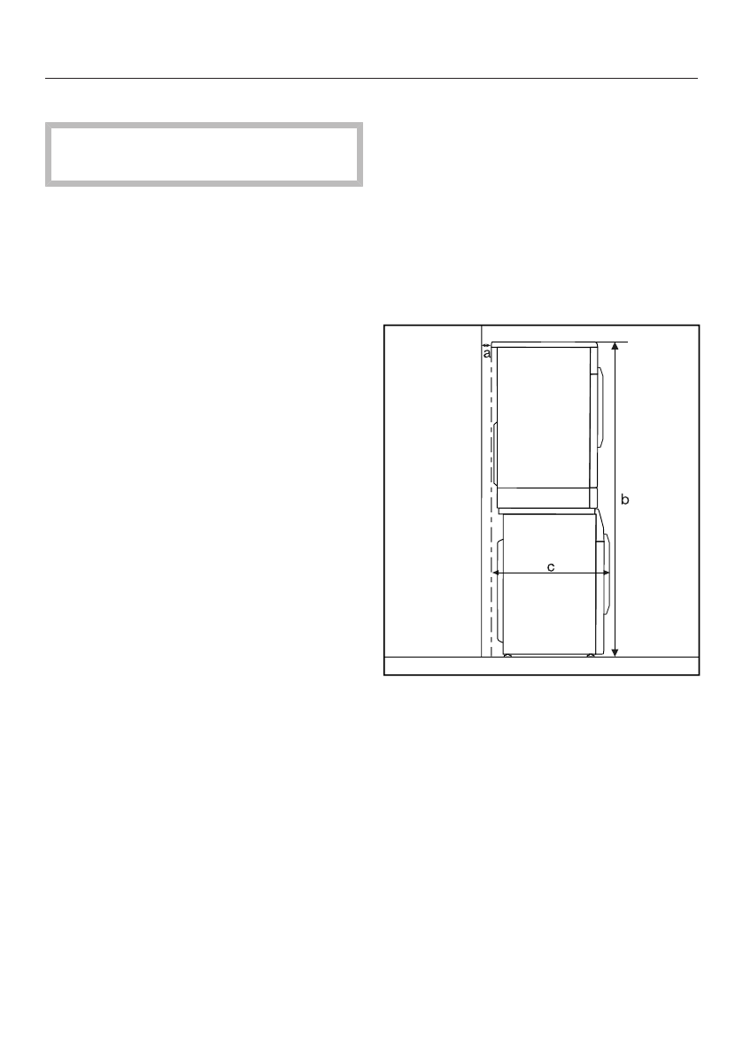
Wasch-Trocken-Säule
Die Waschmaschine kann mit einem
Miele Trockner als Wasch-Trocken-Säu-
le aufgestellt werden. Dazu ist ein Zwi-
schenbausatz* (WTV) erforderlich.
Die mit * gekennzeichneten Teile sind
beim Miele Fachhandel oder Miele Kun-
dendienst erhältlich.
Beachten Sie:
a
=
mindestens 2 cm
b
=
WTV einfach : 172 cm
WTV Schublade: 181 cm
c
=
68 cm
Характеристики
Остались вопросы?Не нашли свой ответ в руководстве или возникли другие проблемы? Задайте свой вопрос в форме ниже с подробным описанием вашей ситуации, чтобы другие люди и специалисты смогли дать на него ответ. Если вы знаете как решить проблему другого человека, пожалуйста, подскажите ему :)