Stiebel Eltron DHM 3 220813 - Инструкция по эксплуатации

Stiebel Eltron DHM 3 220813

Водонагреватель Stiebel Eltron DHM 3 220813 - инструкция пользователя по применению, эксплуатации и установке на русском языке. Мы надеемся, она поможет вам решить возникшие у вас вопросы при эксплуатации техники.

Если остались дополнительные вопросы — свяжитесь с нами через контактную форму.

1 Страница 1
2 Страница 2
3 Страница 3
4 Страница 4
5 Страница 5
6 Страница 6
Страница: / 6

Содержание:

  • Страница 3 – Русский; неисправностей пользователем; Инструкция по монтажу; для квалифицированного специалиста; по безопасности; Инструкция по эксплуатации; для пользователя и специалиста
  • Страница 4 – Специальная арматура; Предписания и нормы; Важные указания
  • Страница 5 – Устранение неисправностей; Технические характеристики; электропроводности воды
Загрузка инструкции

Technik zum Wohlfühlen

270544

26_02_02_0655

DHM 3, DHM 4, DHM 6

Deutsch

Hydraulisch gesteuerter, geschlossener Mini-Durchlauferhitzer

mit Blankdraht-Heizsystem
Gebrauchs- und Montageanweisung

English

Hydraulically controlled, pressurized Mini-Instantaneous

Water Heater with bare wire heating elements

Operating and installation instructions



Hydraulicznie sterowany przepływowy ogrzewacz wody mini, z

odkrytą grzałką

Instrukcja obsługi i montażu



Hydraulicky řízené, tlakové malé průtokové ohřívače s topným

systémem s holou spirálou

Návod k obsluze a k montáži

Русский

Гидравлически управляемый напорный проточный мини-

водонагреватель

Компания Стэлмаркет

г. Москва, ул. Обручева, д. 35, к.2

г. Москва, Симферопольский бульвар, д. 31

Тел.: (495) 788-79-09 (многоканальный)

e-mail: info@stelmarket.ru

www.stelmarket.ru

"Загрузка инструкции" означает, что нужно подождать пока файл загрузится и можно будет его читать онлайн. Некоторые инструкции очень большие и время их появления зависит от вашей скорости интернета.

Краткое содержание

Страница 3 - Русский; неисправностей пользователем; Инструкция по монтажу; для квалифицированного специалиста; по безопасности; Инструкция по эксплуатации; для пользователя и специалиста

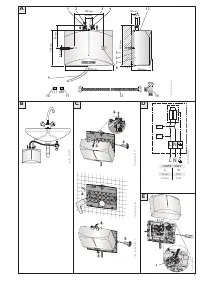
17  Русский 1.5 Важные указания Воздух в трубах холодной воды разрушает спиральную нагревательную систему прибора DHM. Если из-за опасности замерзания или проведения работ на водопроводной линии, прибор выведен из эксплуатации перед повторным вводом в эксплуатацию следует выполнить следующие де...

Страница 4 - Специальная арматура; Предписания и нормы; Важные указания

18 2.7 Монтаж прибора C 1 Ослабьте крепежный винт корпуса на два оборота 2 Отверткой отогните фиксирующую защелку 3 Снимите переднюю крышку с нагревательным блоком 4 Зафиксируйте на стене заднюю стенку прибора с помощью дюбелей и шурупов; используйте заднюю стенку в качестве разметочного шаблона 5 У...

Страница 5 - Устранение неисправностей; Технические характеристики; электропроводности воды

19 Русский 3. Устранение неисправностей - для пользователя Табл. 3 4. Устранение неисправностей - для специалиста Табл. 4 2.12 Технические характеристики (см. также данные на типовой табличке прибора) Тип DHM 3 DHM 4 DHM 6 Тип конструкции напорный напорный напорный Способ монтажа Под раковиной • • •...

Характеристики

Другие модели - Водонагреватели Stiebel Eltron

Все водонагреватели Stiebel Eltron