Посудомоечные машины Kuppersberg GFM 5560 - инструкция пользователя по применению, эксплуатации и установке на русском языке. Мы надеемся, она поможет вам решить возникшие у вас вопросы при эксплуатации техники.
Если остались вопросы, задайте их в комментариях после инструкции.
"Загружаем инструкцию", означает, что нужно подождать пока файл загрузится и можно будет его читать онлайн. Некоторые инструкции очень большие и время их появления зависит от вашей скорости интернета.

19
DEUTSCH
TECHNISCHER PASS
Geschirrspülmaschine
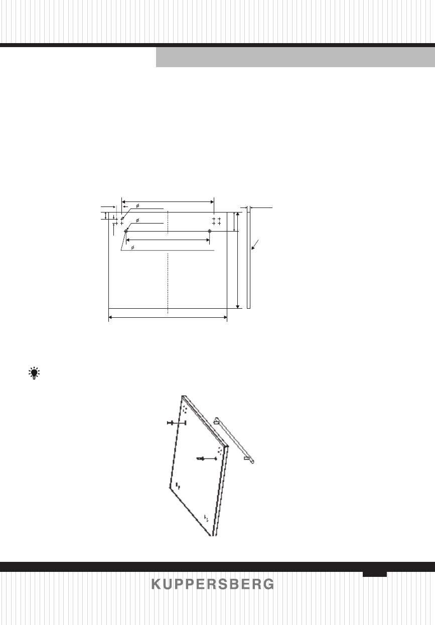
Schritt 2:
Abmessungen und Montagereihenfolge der Dekorplatte
Das Gewicht der Dekorplatte sollte zwischen 3 und 4 kg liegen.
GRÖSSE A und B können je nach Position des Griffs geändert werden
GRÖSSE C, D und E sind modellspezifisch
GRÖSSE E liegt im Bereich von 16 bis 22 mm und bezieht sich auf Geräte mit
einer dekorativen Platte.
8-
2-
21
.5
457.5
5 90( )
48
0(
D)
95
35
C
26.5
2-
415 .5
Unit: mm)
16~22(E)
декоративная панель
Dekorplatte
2 (глубина 12)
15 (глубина 5)
(B, зависит от
расположения ручки)
6, сквозные отв.
(A, зависит от расположения ручки)
Schritt 3.
Installation der Dekorplatte
HINWEIS.
Wenn der Geschirrspüler bereits mit einer dekorativen Platte
ausgestattet ist, sollte dieser Schritt übersprungen werden.
Содержание
- 30 Gerät den Einstellungsmodus und wechselt in den Standby-Modus.; diesen Abschnitt überspringen. WASSERENTHÄRTUNGSGERÄT; diesen Zweck entwickeltem Salz sicherstellt.
- 86 СОД Е РЖА Н И Е
- 87 Ч АС Т Ь I: О Б Щ Е Е О П И СА Н И Е; И Н Ф О Р М А Ц И Я; ПРЕДУПРЕЖДЕНИE
- 88 И Н С Т Р У К Ц И Я
- 90 У Т И Л И З А Ц И Я
- 91 О П И СА Н И Е П Р И Б О РА; тивность при использовании данного прибора.; Корзина
- 92 И С П О Л Ь З О В А Н И Е П О СУ Д О М О Е Ч Н О Й М А Ш И Н Ы; ПРЕДУПРЕЖДЕНИЕ
- 94 Т Е Х Н И Ч Е С КО Е О Б С Л УЖ И В А Н И Е И Ч И С Т К А; Дверь и уплотнение двери; Уход за внутренними; Система фильтрации
- 95 Распылительное коромысло
- 96 Предотвращение замораживания
- 97 Если не планируется использовать
- 98 Перед использованием прибора
- 100 П О Д СО Е Д И Н Е Н И Е С Л И В Н Ы Х Ш Л А Н Г О В; Сливной шланг должен быть надеж
- 101 Как слить остатки воды из шлангов; РА З М Е Щ Е Н И Е
- 102 В С Т РА И В А Н И Е П Р И Б О РА; должны соответствовать размерам декоративной панели.
- 103 Размеры и порядок установки декоративной панели; Вес декоративной панели должен составлять от 3 до 4 кг.; Установка декоративной панели; Если машина уже оснащена декоративной панелью, то это шаг
- 104 Декоративная панель
- 105 Вкрутите регулировочные винтовые ножки в основание
- 106 Перед обращением в сервисный центр; Нарушение
- 109 З А Г Р У З К А П О СУ Д Ы В КО Р З И Н Ы В СО ОТ В Е ТС Т В И И; Вместимость: 6 комплектов посуды
- 110 Ч АС Т Ь I I: О СО Б Ы Е У К А З А Н И Я; по мере возникновения у вас вопросов в будущем.
- 111 К РАТ КО Е Р У КО В О Д С Т В О П О Л Ь З О В АТ Е Л Я
- 113 УС Т Р О Й С Т В О У М Я Г Ч Е Н И Я В О Д Ы
- 114 грузка соли в устройство умягчения воды» ЧАСТИ I: Общее описание.
- 116 ПРИМЕЧАНИЕ; Извлечение посуды
- 117 Загрузка посуды в корзину
- 118 И С П О Л Ь З О В А Н И Е О П О Л АС К И В АТ Е Л Я И М О Ю Щ Е Г О
- 119 З А П О Л Н Е Н И Е Е М КО С Т И О П О Л АС К И В АТ Е Л Я
- 120 З А П О Л Н Е Н И Е Д О З АТО РА М О Ю Щ Е Г О С Р Е Д С Т В А
- 121 П Р О Г РА М М И Р О В А Н И Е П О СУ Д О М О Е Ч Н О Й М А Ш И Н Ы; формация о программах.
- 122 З А П УС К Ц И К Л А М Ы Т Ь Я
- 123 Д О Б А В Л Е Н И Е Д О П О Л Н И Т Е Л Ь Н О Й П О СУ Д Ы; Нажмите кнопку «Пуск/пауза», чтобы приостановить процесс мытья.
- 124 КО Д Ы Н Е И С П РА В Н О С Т Е Й/С Б О Е В
- 125 Т Е Х Н И Ч Е С К А Я И Н Ф О Р М А Ц И Я
- 126 Т Е Х Н И Ч Е С К И Е Х А РА КТ Е Р И С Т И К И
- 127 Фошан Сити,Гуангдонг Провинсе 528311,Китай; в конструкцию, комплектацию и дизайн приборов.; С Е Р И Й Н Ы Й Н О М Е Р:; Год Месяц
- 130 УС ТА Н О В КА, ГА РА Н Т И Й Н О Е И П О С Т ГА РА Н Т И Й Н О Е О Б С Л УЖ И В А Н И Е; Телефон горячей линии Kuppersberg:; Полный список авторизованных сервисных центров Kuppersberg; УСЛОВИЯ ГАРАНТИИ
Характеристики
Остались вопросы?Не нашли свой ответ в руководстве или возникли другие проблемы? Задайте свой вопрос в форме ниже с подробным описанием вашей ситуации, чтобы другие люди и специалисты смогли дать на него ответ. Если вы знаете как решить проблему другого человека, пожалуйста, подскажите ему :)













