Посудомоечные машины Krona Havana 55 CI - инструкция пользователя по применению, эксплуатации и установке на русском языке. Мы надеемся, она поможет вам решить возникшие у вас вопросы при эксплуатации техники.
Если остались вопросы, задайте их в комментариях после инструкции.
"Загружаем инструкцию", означает, что нужно подождать пока файл загрузится и можно будет его читать онлайн. Некоторые инструкции очень большие и время их появления зависит от вашей скорости интернета.

Инструкция по установке и эксплуатации
ПОСУДОМОЕЧНЫЕ МАШИНЫ
24
Сборка декоративных накладок и крепление их
на посудомоечной машине
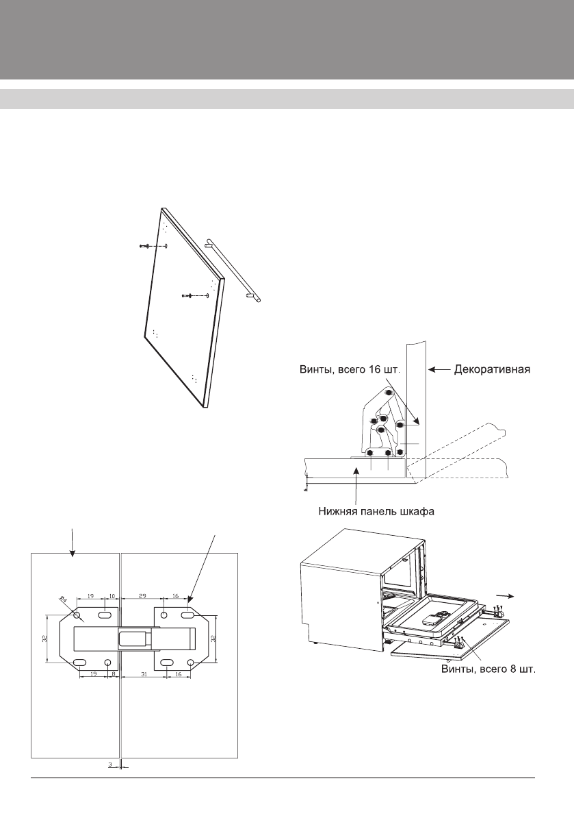
1
. Соберите декоративную панель.
Нижняя панель
шкафа
Зафиксируйте
петлю винтами,
всего 16 винтов
Примечание.
Если посудомо-
ечная машина
поставляется с
декоративной на-
кладкой, пропу-
стите этот шаг.
панель
2
. Петли декоративной панели асим-
метричны, и для корректной установ-
ки их необходимо повернуть в пра-
вильном направлении.
3
. Установите декоративную панель на
посудомоечную машину как показано
на рисунке. Сначала установите кре-
пежные винты на петли меж ду нижней
панелью шкафа и декоративной пане-
лью, всего необходимо 16 винтов; за-
тем вытяните направляющие из пазов
с обеих сторон дверцы, и закрепите их
на декоративной панели 8 винтами.












