Посудомоечные машины Krona Havana 55 CI - инструкция пользователя по применению, эксплуатации и установке на русском языке. Мы надеемся, она поможет вам решить возникшие у вас вопросы при эксплуатации техники.
Если остались вопросы, задайте их в комментариях после инструкции.
"Загружаем инструкцию", означает, что нужно подождать пока файл загрузится и можно будет его читать онлайн. Некоторые инструкции очень большие и время их появления зависит от вашей скорости интернета.

Инструкция по установке и эксплуатации
Инструкция по установке и эксплуатации
ПОСУДОМОЕЧНЫЕ МАШИНЫ
23
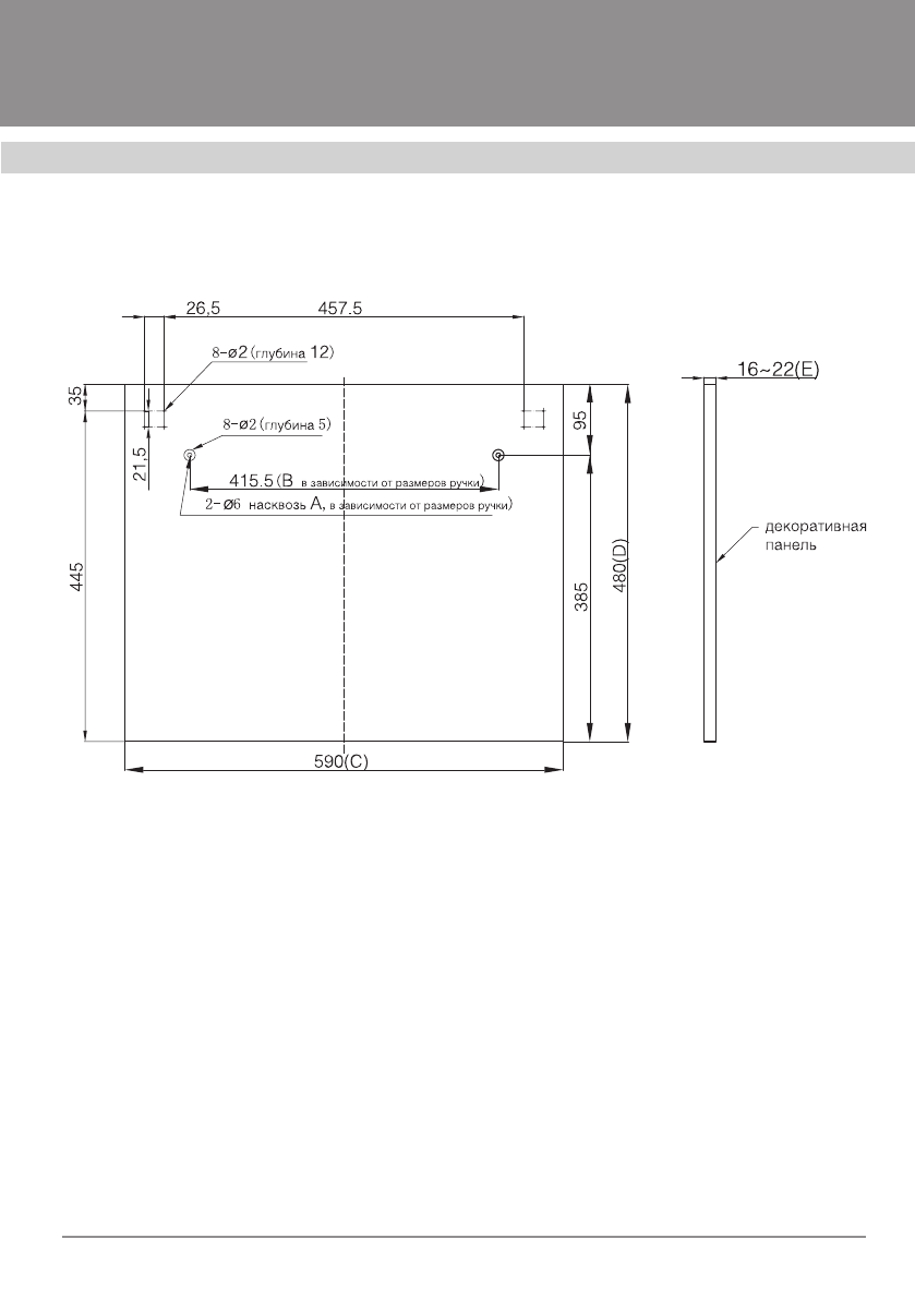
РАЗМЕРЫ ДЕКОРАТИВНЫХ НАКЛАДОК
Размеры А и В можно изменять в зависимости от используемой ручки.
Размеры C, D, E, F наиболее оптимальные.
Размер F должен быть в диапазоне 16–22 мм.
Рекомендуемый вес панели – минимум 3 кг, максимум 4 кг.












