Посудомоечные машины Elenberg DW-9325 - инструкция пользователя по применению, эксплуатации и установке на русском языке. Мы надеемся, она поможет вам решить возникшие у вас вопросы при эксплуатации техники.
Если остались вопросы, задайте их в комментариях после инструкции.
"Загружаем инструкцию", означает, что нужно подождать пока файл загрузится и можно будет его читать онлайн. Некоторые инструкции очень большие и время их появления зависит от вашей скорости интернета.

3
Действия, которые необходимо осуществить, перед установкой
машины на ее место.
1. Выберите место рядом с трубами водоснабжения, чтобы
облегчить установку подачи и слива воды (рис. 1).
2. Если машина устанавливается рядом с углом, отметьте, что для
нормальной работы, необходимо свободное пространство, как
показано на рис. 2.
Рисунок 1
Расстояние
между
стенками
машины и стенками ниши, для нее,
должно быть меньше 5 мм.
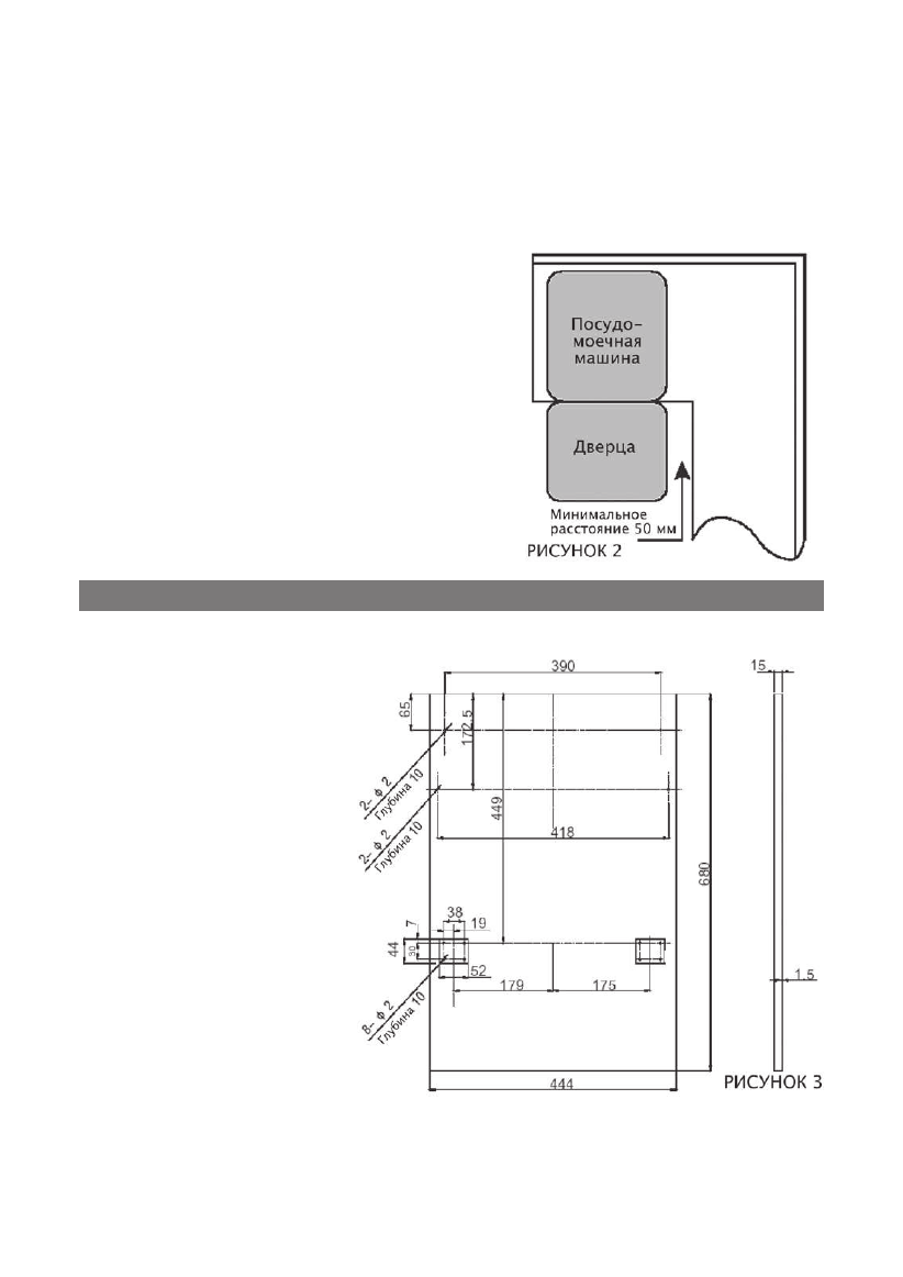
Рисунок 2
Минимальное расстояние, нужное,
чтобы открыть дверь.
1. Процесс установки
внешней
панели
показан на рис. 3.
Рисунок 3
Соблюдайте раз-
меры,
указанные
на рисунке, при
установке панели.
2. Установите крепле-
ния на внешнюю
панель и с их помощью
прикрепите ее к
дверце машины (рис.
4a). После этого
привинтите ее (рис.
4b).
РАЗМЕРЫ И УСТАНОВКА ВНЕШНЕЙ ПАНЕЛИ