Посудомоечные машины Electrolux KHT8 - инструкция пользователя по применению, эксплуатации и установке на русском языке. Мы надеемся, она поможет вам решить возникшие у вас вопросы при эксплуатации техники.
Если остались вопросы, задайте их в комментариях после инструкции.
"Загружаем инструкцию", означает, что нужно подождать пока файл загрузится и можно будет его читать онлайн. Некоторые инструкции очень большие и время их появления зависит от вашей скорости интернета.

16
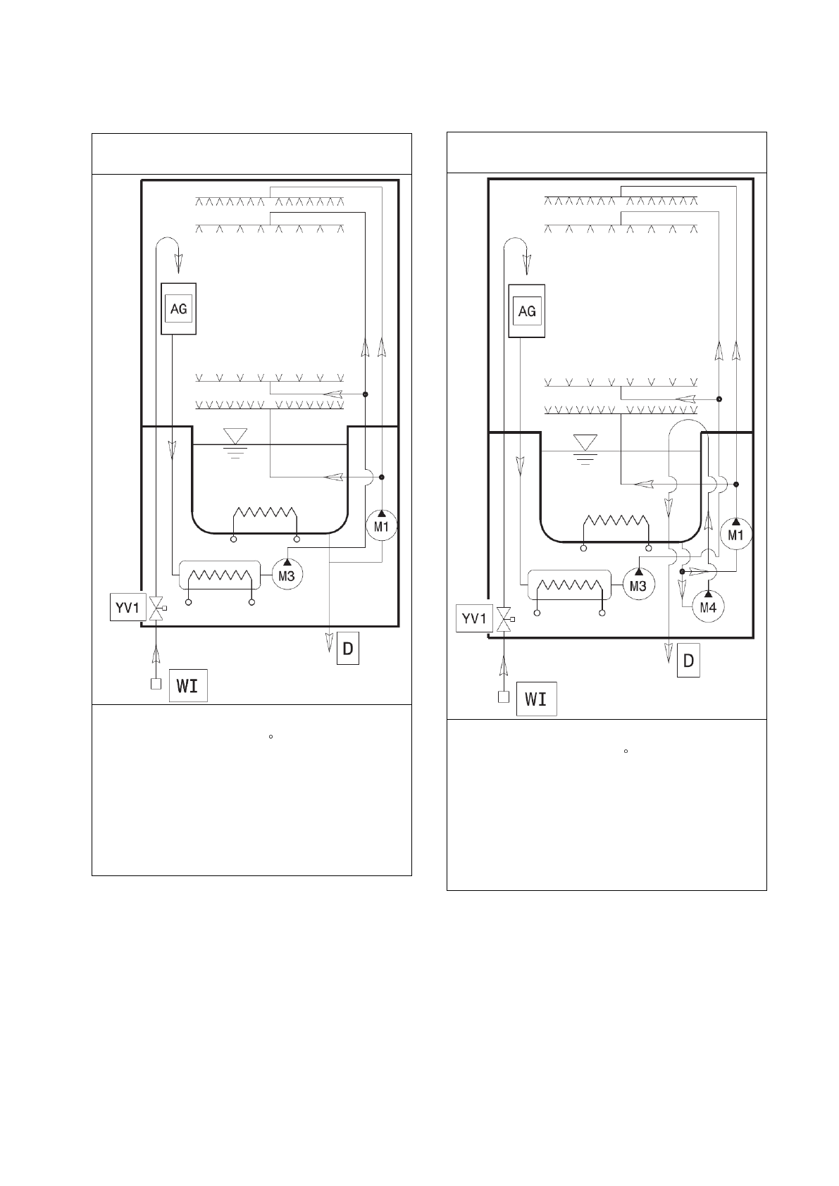
Е6.1. Гидравлический контур
Схема гидравлического контура капотной машины с
ручным подъемом/спуском капота, без дренажного
насоса
ОПИСАНИЕ:
WI
= Вход воды
CWI =
Вход холодной воды (~15 C)
М1 = Моечный насос
М3 = Ополаскивающий насос
М4 = Дренажный насос
М9 = Мотор вентилятора энергогсберегающего устройст-
ва (ESD)
М10 = Мотор вентилятора энергогсберегающего устрой-
ства (ESD)
AG
= Воздушный зазор
YV
1 = Дренажный клапан
V =
Вентилятор
Схема гидравлического контура капотной машины с
ручным подъемом/спуском капота, с дренажным
насосом
ОПИСАНИЕ:
WI
= Вход воды
CWI
= Вход холодной воды (~15 C)
М1 = Моечный насос
М3 = Ополаскивающий насос
М4 = Дренажный насос
М9 = Мотор вентилятора энергогсберегающего устройст-
ва (ESD)
М10 = Мотор вентилятора энергогсберегающего устрой-
ства (ESD)
AG
= Воздушный зазор
YV
1 = Дренажный клапан
V =
Вентилятор
Содержание
- 4 СПИСОК ТАБЛИЦ
- 5 Введение
- 7 ны; А5. Идентификация агрегата; Рис. 3 - Идентификация технических данных
- 8 мента
- 9 Стадия; А9. Хранение сборника инструкций
- 10 МОДЕЛИ; EHT8TIL
- 14 Рис. 5 – Удаление упаковки; машины
- 15 Обеспечить доступ к днищу машины.; Е5. Удаление и утилизация упаковки; Рис. 10 - Подключение к водопроводной сети; воды на входе не выходило
- 25 Е7. Подключение к сети электропитания; Провод
- 26 Рис. 15 - Система контроля энергопотребления; Подключение к блоку HACCP
- 27 ОПИСАНИЕ ПАНЕЛИ УПРАВЛЕНИЯ; Световой индикатор «температура в баке»; во время этапа мойки световой индикатор НЕ ГОРИТ.
- 29 ПУСК В ЭКСПЛУАТАЦИЮ; проверить; Рис. 18 - Моечные и ополаскивающие рукава; G2. Пуск в эксплуатацию; Открыть краны подачи воды.
- 30 моющего; должна; параметр; дозатор
- 31 для доступа в режим программирования – на; Описание параметра; Начальная подача МС
- 36 При резком закрытии капота
- 39 Жесткость воды на; вующем заводским настройкам.
- 40 Типы кассет и загрузка посуды
- 41 В случае выбора для мойки
- 42 ВНИМАНИЕ
- 44 Профилактические процедуры
- 46 КОНДЕНСАЦИЯ ВЛАГИ НА СТАКАНАХ












