DeLonghi CM 6B_SMA 6X_DMB 6_SMN 6BK_DMA 6_CM 6CF - Инструкция по эксплуатации - Страница 28

Плита DeLonghi CM 6B_SMA 6X_DMB 6_SMN 6BK_DMA 6_CM 6CF - инструкция пользователя по применению, эксплуатации и установке на русском языке. Мы надеемся, она поможет вам решить возникшие у вас вопросы при эксплуатации техники.

Если остались вопросы, задайте их в комментариях после инструкции.

"Загружаем инструкцию", означает, что нужно подождать пока файл загрузится и можно будет его читать онлайн. Некоторые инструкции очень большие и время их появления зависит от вашей скорости интернета.
Страница:
/ 32
Загружаем инструкцию
background image

28

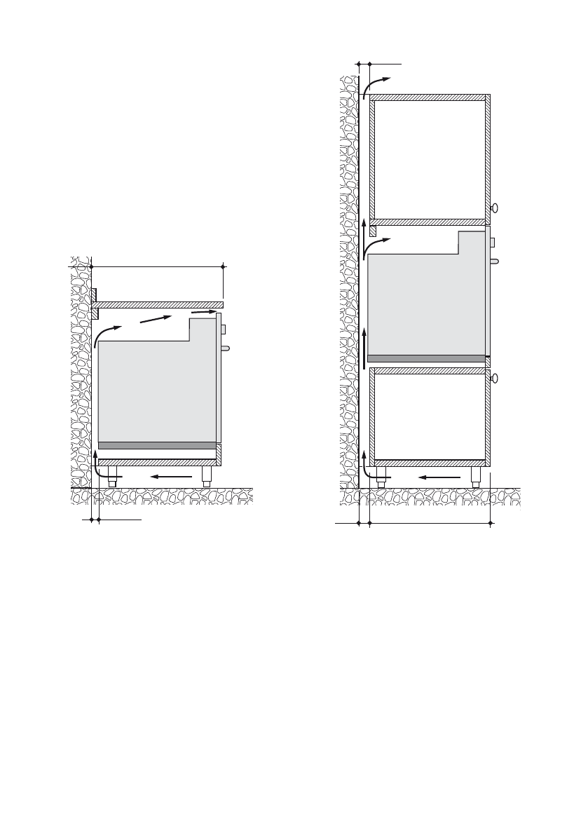
Для  вентиляции  внутренней  полости  необходимо  предусмотреть  вентиляционные  каналы, 

как указано на Рис. 10.3 и 10.4.

Стенки  вокруг  духового  шкафа  должны  быть  изготовлены  из  термостойкого  мате-

риала. Поднимать духовой шкаф за ручку ЗАПРЕЩЕНО.

Рис. 10.3

30 mm

600

50 mm

50

550

Рис. 10.4

Полезные видео

Характеристики

Оцените статью
tehnopanorama.ru
Остались вопросы?

Не нашли свой ответ в руководстве или возникли другие проблемы? Задайте свой вопрос в форме ниже с подробным описанием вашей ситуации, чтобы другие люди и специалисты смогли дать на него ответ. Если вы знаете как решить проблему другого человека, пожалуйста, подскажите ему :)

Задать вопрос

Часто задаваемые вопросы
Как посмотреть инструкцию к DeLonghi CM 6B_SMA 6X_DMB 6_SMN 6BK_DMA 6_CM 6CF?
Необходимо подождать полной загрузки инструкции в сером окне на данной странице
Руководство на русском языке?
Все наши руководства представлены на русском языке или схематично, поэтому вы без труда сможете разобраться с вашей моделью
Как скопировать текст из PDF?
Чтобы скопировать текст со страницы инструкции воспользуйтесь вкладкой "HTML"