Плита Greta 600-12 (W) - инструкция пользователя по применению, эксплуатации и установке на русском языке. Мы надеемся, она поможет вам решить возникшие у вас вопросы при эксплуатации техники.
Если остались вопросы, задайте их в комментариях после инструкции.
"Загружаем инструкцию", означает, что нужно подождать пока файл загрузится и можно будет его читать онлайн. Некоторые инструкции очень большие и время их появления зависит от вашей скорости интернета.

32
ИНСТРУКЦИЯ ПО УСТАНОВКЕ
Этот раздел содержит инструкции по установке и обслуживанию плиты и
предназначен для квалифицированных специалистов по монтажу, устанавлива-
ющих плиту.
Плита считается герметичной, если падение давления по мано - вакуумме-
тру за 2 мин. не превышает 40Па, при испытательном давлении 15000 Па.
ВНИМАНИЕ! Перед любыми работами по наладке и обслуживанию от-
ключите плиту от электрической сети.
Плиту следует устанавливать согласно «Правилам безопасности систем га-
зоснабжения» и государственных строительных норм.
Для полного сгорания газа приток свежего воздуха в помещении должен со-
ставлять не менее 2м
3
/час на один киловатт мощности горелок. Воздух может по-
ступать прямо с улицы через канал диаметром не менее 100см
2
или из соседних
помещений, оборудованных вентиляционными каналами, выходящими на улицу.
ВНИМАНИЕ! Этот прибор не присоединяется к отводу газоподобных
отходов (дымоходу). Он должен устанавливаться и присоединяться со-
гласно действующим правилам и нормам по установке, принятым в Ва-
шей стране. Особенно необходимо обратить внимание на соответствую-
щие меры по вентиляции.
Эксплуатация плиты ведет к повышению температуры и влажности в поме-
щении. Поэтому в помещении кухни должна быть хорошая вентиляция, для чего
необходимо держать открытыми естественные вентиляционные отверстия или
должно быть установлено механическое вентиляционное устройство.
При интенсивном и продолжительном использовании прибора может по-
требоваться дополнительная вентиляция (открывание окна и эффективное про-
ветривание или включение механического вентиляционного устройства).
Установка
Вид климатического исполнения УХЛ4 по ГОСТ 15150.
Плита относится к приборам класса 1 – свободная установка.
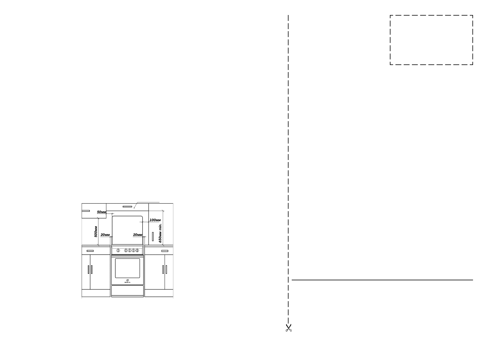
Размещение плиты между мебелью показано на рис. 1.
Рис.1 Установка плиты между мебелью
Плита может встраиваться только до высоты рабочей поверхности мебели,
т.е. около 850мм от пола.
Прилегающие плоскости мебели должны быть термостойкими, способными
выдержать температуру 100°С.
25
Уповноважений представник ПАТ «Грета» в Російській Федерації:
- ТОВ "Грета", 308007, м. Білгород, пр-т Б. Хмельницького, 131,
оф. 2,32., тел. +7(4722) 200-658, 200-659, 317-062.
e - mail: SergeyBershak@mail.ru;
Імпортер в Російській Федерації:
- ЗАТ "ВАЮР" 347800, Ростовська обл., м. Каменськ-Шахтинський, вул.
Профільна, 33. Тел./факс (86365) 22-888.
www.vaur.ru, e - mail: vaur_o@mail.ru.
Линия
отреза
ЛИСТОК ВІДГУКУ
СПОЖИВАЧІВ
ПЛИТА ПОБУТОВА
Дата пуску в експлуатацію
«_____» ___________________ 20 ___ р.
1. Результат зовнішнього огляду
при отриманні плити споживачем
______________________________________________________________________
______________________________________________________________________
______________________________________________________________________
2. Стан тари _________________________________________________________
______________________________________________________________________
3. Механічні ушкодження плити в результаті
транспортування _____________________________________________________
______________________________________________________________________
______________________________________________________________________
______________________________________________________________________
______________________________________________________________________
4. Зауваження до якості виготовлення плити __________________________
______________________________________________________________________
______________________________________________________________________
______________________________________________________________________
5. Інші зауваження ___________________________________________________
______________________________________________________________________
______________________________________________________________________
Підпис власника _____________________________________________________
6. Домашня адреса, телефон _________________________________________
______________________________________________________________________
7. Адреса завода-виробника: 84205, Україна,
м. Дружківка, Донецької обл., вул. Чайковського, 1.
Просимо
заповнити
і
відправити
листок
на
адресу
заводу
,
це
допоможе
випускати
плити
вищої
якості
ПАТ «Грета» сервісна служба 0(06267) 4U25U94, завод 4U21U71
www.greta.ua
Содержание
- 2 УВАГА! Вживаний в побуті газ вибухонебезпечний.; - при користуванні газовими приладами дотримуйте правила пожеж-; Т А Л О Н No 1
- 6 Мал. 2 Розмітка підлоги для установки запобіжного кронштейна; Під’єднування плити до газової магістралі:; Расшифровка штрихUкода.; МАССА
- 7 Будьте особенно осторожны со стеклянными комплектующими!; Мал. 4 Жорстке під’єднування; Під’єднування газовим шлангом
- 8 УТИЛИЗАЦИЯ ИЗДЕЛИЯ
- 9 Таблица 4. Возможные неисправности и методы их устранения; Налаштування плити на різні види газу.; годинниковою стрілкою до упору; У В А ГА ! П і с л я п і д к л ю ч е н н я т р е б а п е р е в і р и т и г е р м е т и ч н і с т ь у с і х; ТЕХНІЧНІ ХАРАКТЕРИСТИКИ; Плита відповідає наступним нормативним документам:; На виріб є декларації (сертифікати) відповідності України і Росії.
- 10 ОБСЛУЖИВАНИЕ И УХОД
- 11 Отделение для хранения принадлежностей; ПРАКТИЧЕСКИЕ СОВЕТЫ
- 12 КОМПЛЕКТНІСТЬ; Таблиця 3. Перелік комплектуючих плит мод.600; Комплектуючі; Использование газовых горелок стола; Рис.11 Установка кастрюли на решетке стола; Не используйте для приготовления кастрюли с изогнутым дном.; Включение таймера; ручку до отметки «60» с последующим воз вратом на заданное время.; Установка вертела (при наличии) в духовке; Рис.12 Расположение вертела в духовке; Пользование устройством освещения; ком перед заменой лампы убедитесь, что прибор выключен.
- 13 МАХ; нажатой не менее 15 секунд для прогрева датчика устройства.; ВНИМАНИЕ! Если горелка по истечении 15 секунд не зажглась, то это; на панели управления.; Электрическая духовка.; ратуры и переключателем мощности.; УСТРІЙ ВИРОБУ
- 14 ПОРЯДОК РОБОТИ; Мал. 8 Панель керування; Газовая духовка; Рис.10 Зажигание газовой горелки духовки
- 18 Мал. 11 Установка каструлі на решітку столу; Використання електричної конфорки столу (за наявності); Мал. 12 Розташування рожена в духовці; Користування пристроєм освітлення; КОМПЛЕКТНОСТЬ; Таблица 3 Перечень комплектующих плит мод.600; Таблица 3а Перечень комплектующих плит мод.600-ГЭ; Комплектующие
- 19 фактической массе изделия.; ИСПОЛНЕНИЯ ПЛИТ; Если плита имеет стеклянную крышку,; Дверка нижня Шухляда; Відділення для зберігання приладдя; дверкою, висувною шухлядою або заглушкою.; ПРАКТИЧНІ ПОРАДИ; перемісити його на один рівень вниз або зменшити температуру.
- 20 ОБСЛУГОВУВАННЯ І ДОГЛЯД; кою, змоченою в мильному або содовому розчині і протерати досуха.; ПРАВИЛА ТРАНСПОРТУВАННЯ
- 21 ВНИМАНИЕ! После подключения нужно проверить герметичность всех; ТЕХНИЧЕСКИЕ ХАРАКТЕРИСТИКИ; Плита соответствует следующим нормативным документам:; МОЖЛИВІ НЕСПРАВНОСТІ І МЕТОДИ ЇХ УСУНЕННЯ; Таблиця 4 Можливі несправності і методи їх усунення
- 22 УТИЛІЗАЦІЯ ВИРОБУ
- 23 Рис.4 Жесткое подсоединение; Подсоединение газовым шлангом
- 24 МАСА; Подсоединение плиты к газовой магистрали
- 25 ИНСТРУКЦИЯ ПО УСТАНОВКЕ; ВНИМАНИЕ! Перед любыми работами по наладке и обслуживанию от-; Рис.1 Установка плиты между мебелью; Уповноважений представник ПАТ «Грета» в Російській Федерації:; ЛИСТОК ВІДГУКУ
- 26 Запрещается очистка духовки паром.; алы в хозяйственное отделение.; избежать соскальзывания плиты с опор.
- 27 ВНИМАНИЕ! Если поверхность конфорки треснула, отключите прибор; КОРІНЕЦЬ Т; Вилучений
- 28 ПЛИТА БЫТОВАЯ; П л и т а м о д . 6 0 0 - Г Э - Х Х и м е е т с е р т и ф и к а т с о о т в е т с т в и я No Т С R U C - U A .; ПРАВИЛА БЕЗОПАСНОСТИ; ВНИМАНИЕ! Применяемый в быту газ взрывоопасен; при каких обстоятельствах не используйте оборудование на улице.
Характеристики
Остались вопросы?Не нашли свой ответ в руководстве или возникли другие проблемы? Задайте свой вопрос в форме ниже с подробным описанием вашей ситуации, чтобы другие люди и специалисты смогли дать на него ответ. Если вы знаете как решить проблему другого человека, пожалуйста, подскажите ему :)








