Плита Flama L FK 1412 B - инструкция пользователя по применению, эксплуатации и установке на русском языке. Мы надеемся, она поможет вам решить возникшие у вас вопросы при эксплуатации техники.
Если остались вопросы, задайте их в комментариях после инструкции.
"Загружаем инструкцию", означает, что нужно подождать пока файл загрузится и можно будет его читать онлайн. Некоторые инструкции очень большие и время их появления зависит от вашей скорости интернета.

22
7
Положение горелок стола схематично изображено возле каждого крана.
Символы:
Кран закрыт • Максимальное пламя Малое пламя
Все краны имеют фиксированное положение «малое пламя».
6 . УСТАНОВКА, ПОДГОТОВКА К РАБОТЕ
6.1.
Перед установкой необходимо проверить соответствие сопел применяемому
виду газа и в случае необходимости произвести их замену согласно таблицы 1.
6.2.
Плиту
следует
устанавливать
согласно
указаниям
«Правил
безо-
пасности в газовом хозяйстве», утвержденным Госгортехнадзором России и Строитель-
ных Норм и Правил, утвержденным Госстроем на газоснабжение внутренних и наружных
устройств, в соответствии с «Правилами эксплуатации электроустановок потребителями»,
«Правилами техники безопасности при эксплуатации электроустановок потребителями».
6.3.
Установка и настройка плиты производится только работниками газового хозяй-
ства или специалистами организации, имеющей лицензию на право установки и обслужива-
ния плит, в соответствии с «Правилами эксплуатации электроустановок потребителями»,
«Правилами техники безопасности при эксплуатации электроустановок потребителями».
6.4. Монтаж плит должен производиться после окончания строительных и отделочных
работ.
6.5. При подключении плиты должен быть заполнен талон установки.
6.6.Плита должна отступать от поверхности стены сзади не менее чем на 200мм, с
левой и правой сторон – не менее 20 мм. Расстояние от поверхности решетки плиты до эле-
ментов кухонного оборудования, расположенных над плитой, должно быть не менее 0,85
мм.
Минимальное расстояние от стола до навесных шкафов сверху – 850 мм.
Минимальное расстояние от стола до вытяжки – 750 мм.
6.7. Плита предназначена для установки на полу. Установка плиты на подставку не
допускается.
6.8. Плита должна устанавливаться в помещении на расстоянии не менее 1,5 м от ме-
таллических раковин и труб, водопровода, отопления и канализации. Расстояния, которые
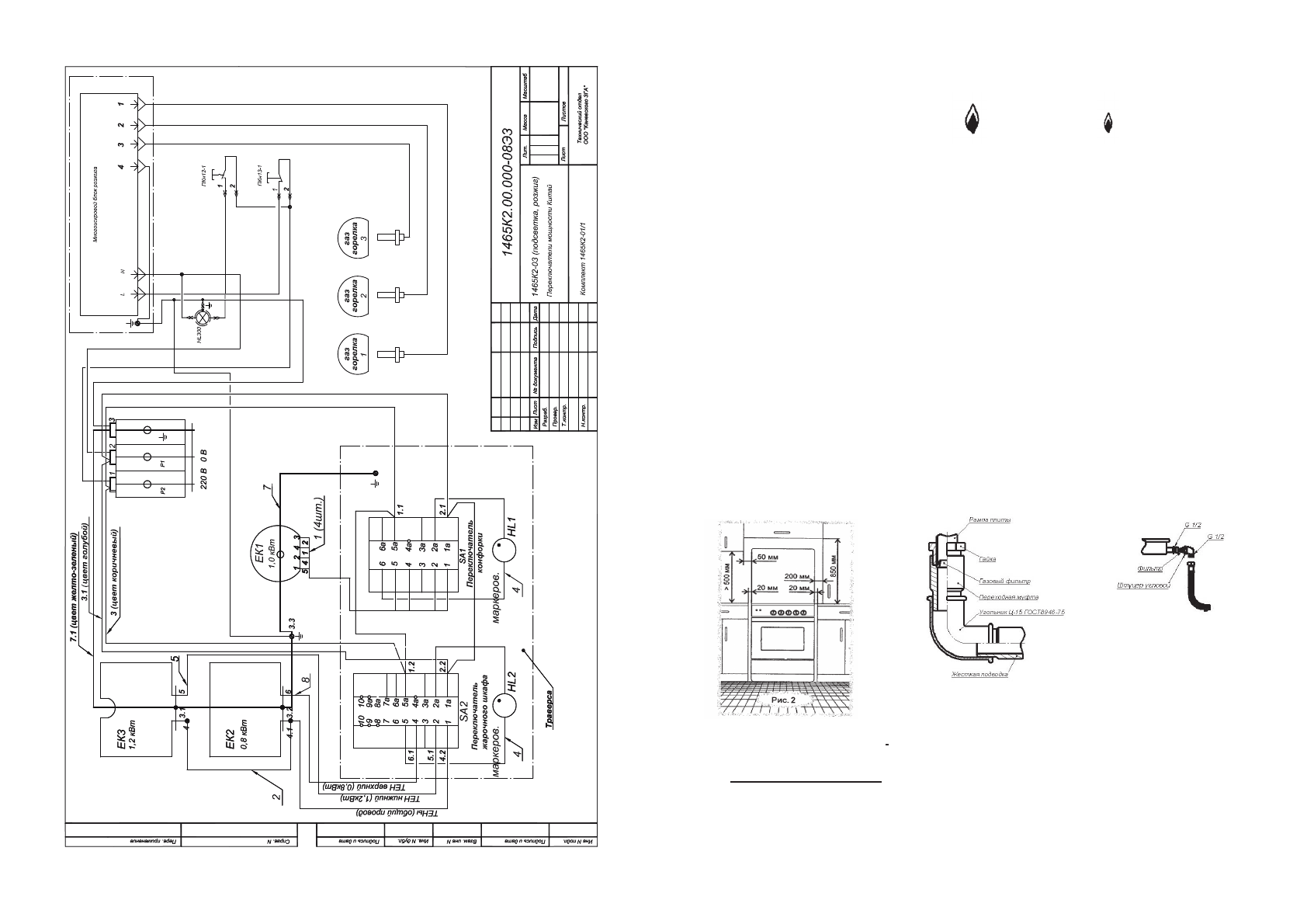
необходимо выдержать при установке плиты, показаны на рис. 2.
П12 подключении плиты,
для создания герметичности следует между рампой и под-
водкой для газа установить паронитовую прокладку.
Подключение газа возможно с помощью как жесткой, так и гибкой подводки.
Жесткое подсоединение
- Перед подключением еще раз убедитесь, что давление газа в сети соответствует ука-
занному на табличке плиты.
Подсоединение плиты к газовому стояку или баллону следует проводить в соответ-
ствии с существующими стандартами.
- Жесткое подсоединение к газовому стояку (рис.3) производится с помощью переход-
ной муфты (в комплект поставки не входит).
Рис. 3
Рис. 4













