Плита Flama L FK 1412 B - инструкция пользователя по применению, эксплуатации и установке на русском языке. Мы надеемся, она поможет вам решить возникшие у вас вопросы при эксплуатации техники.
Если остались вопросы, задайте их в комментариях после инструкции.
"Загружаем инструкцию", означает, что нужно подождать пока файл загрузится и можно будет его читать онлайн. Некоторые инструкции очень большие и время их появления зависит от вашей скорости интернета.

6
5. УСТРОЙСТВО ПЛИТЫ
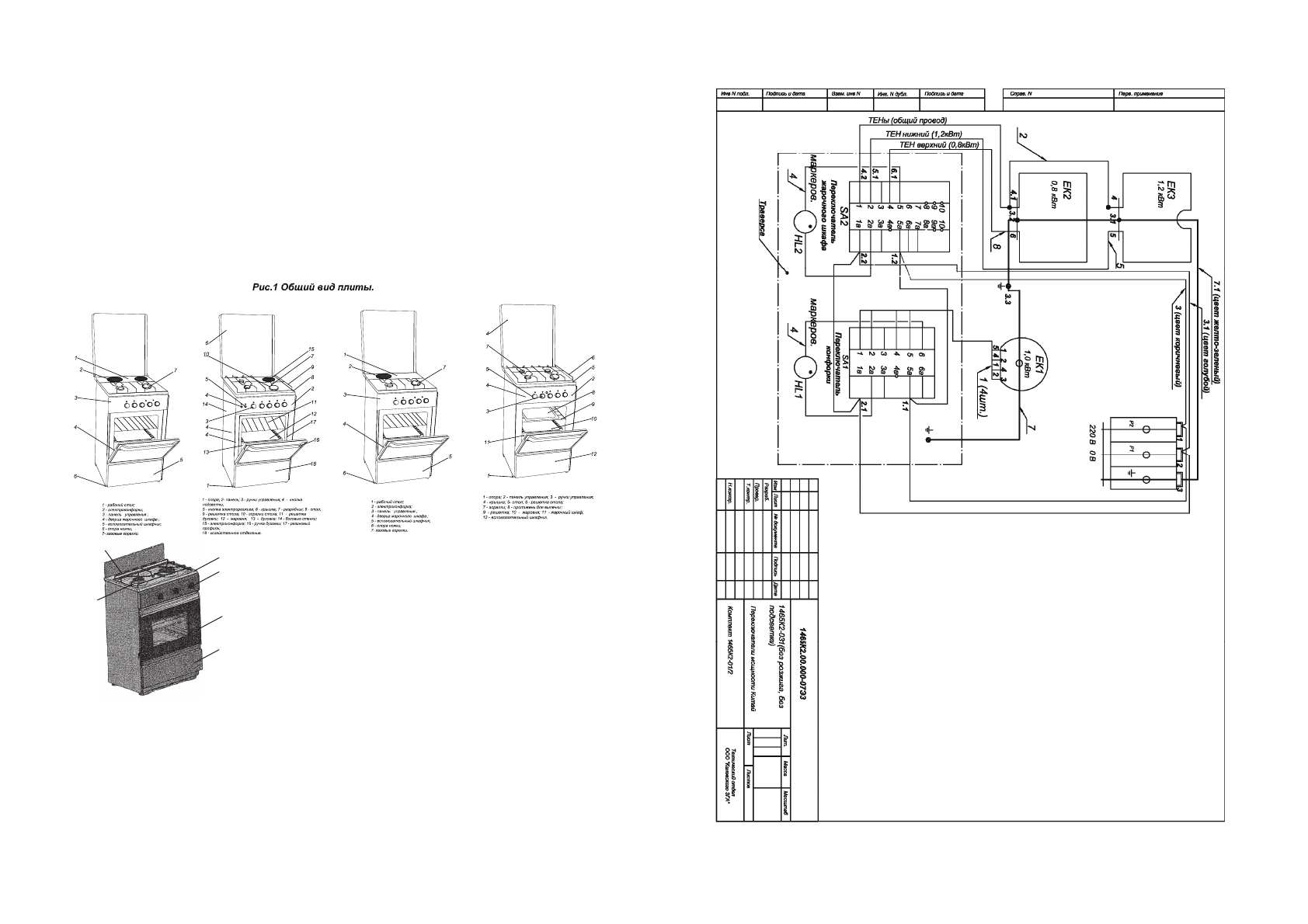
5.1 .Общий вид плиты с указанием основных частей показан на рис.1.
5.2. Так как плита газоэлектрическая стол плиты может иметь разное коли чество газо-
вых горелок и электроконфорок, в зависимости от модели плиты.
5.3. В средней части плиты расположен жарочный шкаф. Нагрев рабо чего простран-
ства жарочного шкафа осуществляется двумя трубчатыми электронагревателями, один из
которых, расположен в верхней части шкафа, второй – под днищем шкафа.
Жарочный шкаф имеет пять пар направляющих пазов, предназначенных для установки
на желаемом уровне жаровни или решетки.
Жаровня
служит для сбора жира и сока, выделяющихся при приготовлении мясных
блюд на решетке, а также для приготовления мясных, рыбных, картофельных и овощных
блюд.
Жаровня не предназначена для выпечки.
Решетка
духовки используется как полка для установки форм для выпечки на различ-
ных уровнях. На ней можно непосредственно готовить мясо, птицу, шашлык и т.д.
Максимально допустимая нагрузка металлической решетки и жаровни-8 кг.
ВНИМАНИЕ
! Доступные части жарочного шкафа могут нагреваться во время эксплуа-
тации. Не допускайте близко детей.
5.4 Регулирование мощности электронагревателей жарочного шкафа производится
ручкой переключателя мощности, которая расположена на панели управления плиты.
5.5. Сигнальная лампочка жарочного шкафа загорается при его включении на любую
ступень мощности.
5.6. Регулировка мощности электроконфорок осуществляется ручками переключате-
лей мощности, которые расположены на панели управления плиты.
5.7. Сигнальная лампочка конфорок загорается при их включении на любую ступень
мощности.
5.8. Освещение рабочего пространства жарочного шкафа осуществляется лампой,
установленной на корпусе каркаса плиты.
5.9. Дверца жарочного шкафа застеклена двойным термостойким стеклом, что по-
зволяет визуально контролировать приготовление пищи.
1 – рабочий стол
2 – горелки
3 – щиток
4 – панель управления
5 – дверца жарочного шкафа
6 – вспомогательный шкафчик
1
2
3
4
5
6
23













