Страница 2 - Определение; Русский
ВАЖНАЯ ИНФОРМАЦИЯ Определение : Термин система относится к совокупности самого прибора и необходимого оборудования, влияющего на его работу включая воздуховоды , всю систему вывода дымовых газов ( дымоотводный канал, дымоход, трубу), местонахождение, другие источники тепла, устройства распространени...
Страница 3 - ОГЛАВЛЕНИЕ; ОБЩИЕ ПРАВИЛА; , гарантийные обязательства
ОГЛАВЛЕНИЕ Раздел Заголовок Страница 1.0 ОБЩИЕ ПРАВИЛА 4 1.1 Одиночная труба или дымоход 5 1.2 Проверка сажи 5 1.3 Дымовая труба над крышей 6 1.4 Воздухозаборник 7 1.5 Место установки 7 1.6 Несущая способность пола 8 1.7 Тепловая мощность 8 1.8 Подходящие термоизолирующие материалы 8 1.9 Минимальные...
Страница 5 - У каждого прибора; приспособлен; установить; НЕТ; ОДИНОЧНАЯ
МАКС. 45° НЕТ X МИН. 3,5 м У каждого прибора должна быть вертикальная дымовая труба, функционирующая на естественной тяге, для вывода дымовых газов наружу. Дымоход должен : - соответствовать нормативам, действующим в регионе установки прибора ; - быть устойчивым к продуктам сгорания , непромокаемым ...
Страница 6 - ДЫМОВАЯ ТРУБА НАД КРЫШЕЙ; ПЛОСКАЯ; обратного потока
На вершине дымовой трубы должен быть наконечник, способствующий рассеиванию продуктов гор е ния в атмосфере. Наконечник трубы должен соответствовать следующим требованиям: - его внутреннее сечение и форма должны быть такими же, как у дымохода (A); - полезное сечение его выпускного отверстия (B) долж...
Страница 7 - приспособления; Прибор должен быть установлен в таком месте, где; ЗАБОРНИК
Для обеспечения бесперебойной работы печи / топки необходим приток свежего воздуха для горения, осуществляемый через воздухозаборник . Воздухозаборник должен: - иметь полностью свободное сечение, размер которого, как минимум, равен указанному в разделе “ ТЕХНИЧЕСКИЕ ДАННЫЕ ”; - быть защищен ным реше...
Страница 8 - тива; Проверить несущую способность пола можно, суммируя:; БАЗОВЫЕ СТАНДАРТЫ; Материалы, имеющие коды; НЕСУЩАЯ СПОСОБНОСТЬ
d Не разрешается использование газовых приборов типа B (обратитесь к действующим законам и норма тива м в регионе установки). d Печь или топка не должны использоваться одновременно с вентиляционными трубами объединенного типа с вытяжным вентилятором или без него, другими приборами, такими как: систе...
Страница 9 - Положение
DT2011906-00 1.9 МИНИМАЛЬНЫЕ БЕЗОПАСНЫЕ РАССТОЯНИЯ Положение изделия внутри комнаты должно учитывать не только нормы, требования к отоплению, форму установки и смежные помещения, но также доступность и удобство обслуживания. Таким образом, рекомендуется, чтобы площадь, превышающая указанную, оставал...
Страница 10 - СОЕДИНЕНИЕ; ДЫМОХОД; Облицовка
a Минимальное расстояние (F) до термочувствительных строительных элементов или воспламеняемых материалов должно соблюдаться по всей длине дымовой трубы (например, облицовка, стены, балки или деревянные потолки и т.д.), при этом, если труба проходит через стену или потолок, должны применяться определ...
Страница 11 - ВЕНТИЛЯЦИОННЫЕ ОТВЕРСТИЯ; см
Горячий воздух выходит через естественную конвекционную систему вентиляционных отверстий, расположенных в верхней части опорной стены или козырька. Таким образом, необходимо, чтобы эти отверстия находились на безопасном расстоянии от воспламеняемых материалов стен или потолка, деревянных балок, мебе...
Страница 12 - ТЕХНИЧЕСКИЕ; ПРИБОРА; Эмалированная; БЫТОВЫХ ВОЗГОРАНИЙ
Топки MA SL являются наиболее усовершенствованной версией традиционной печи. Они имеют прочную стальную структуру, топка состоит из пластин из огнеупорного материала, запатентованного Piazzetta (ALUKER), чугунного колосника и решетки . Топки MA SL являются инновационной формой традиционных версий за...
Страница 16 - ТЕХНИЧЕСКИЕ ДАННЫЕ; Возможно использование с отводящим дымоходом (если разрешено; ТОПЛИВО; окрашенная сталь
DT2012383-03 2.3 ТЕХНИЧЕСКИЕ ДАННЫЕ Модель MA 260 B SL MA 260 SL MA 261 SL MA 262 SL MA 263 B SL Тип изделия MA 260 B SL MA 260 SL MA 261 SL MA 262 SL MA 263 B SL Описание Единица измерения номинальная тепл. мощ-сть номинальная тепл. мощ-сть номинальная тепл. мощ-сть номинальная тепл. мощ-сть номина...
Страница 17 - “ТОПЛИВО”; Нерегулярная эксплуатация прибора.
Модель MA 263 SL MA 264 SL MA 265 SL MA 266 SL MA 267 SL Тип изделия MA 263 SL MA 264 SL MA 265 SL MA 266 SL MA 267 SL Описание Единица измерения номинальная тепл. мощ-сть номинальная тепл. мощ-сть номинальная тепл. мощ-сть номинальная тепл. мощ-сть номинальная тепл. мощ-сть Топливо дрова дрова дров...
Страница 18 - Клапан; АКСЕССУАРЫ И ОБОРУДОВАНИЕ; Данные о каждом изделии содержатся на паспортной
Описание Аэрозоль с силиконовой краской В комплекте Клапан с регулятором шиберной заслонки В комплекте Зольник В комплекте Вентиляционная решетка 145x390 В комплекте Решетка наружного воздухозаборника 175x325 В комплекте Инструмент для открытия/закрытия дверцы В комплекте Трубы и отводы для соединен...
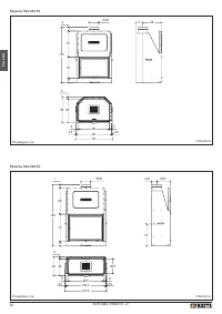
Страница 19 - Размеры в см
DT2010603-00 17 36 12 135 53 5 70 5 Ø 20 80 51 65 7 48 5 2.6 РАЗМЕРЫ Модель MA 260 SL 5,7 70 5,7 81,4 2,5 2,5 86,3 43,3 53 12,5 51 65 7 135,5 Ø 20 26,5 26,7 43 131,5 Модель MA 260 B SL H072144UK0 / DT2002732 – 01 19 Русский Размеры в см DT2032799-00 Размеры в см DT2033948-00
Страница 24 - ПОДГОТОВКА
- Внимательно прочитайте всю информацию в разделе “ ОБЩИЕ ПРАВИЛА ” перед установкой топки. - Распакуйте печь . - Разблокируйте противовес, ослабив соответствующий винт, находящийся внутри верхней части дверцы (Рис. 36 и 37). a Только у модели MA 265 SL противовес закреплен 2 винтами . ТОЛЬКО ДЛЯ МО...
Страница 26 - УСТАНОВКА; должны быть; ПОМЕЩЕНИЕ УСТАНОВКИ
4.0 УСТАНОВКА a Облицовка, опорная стена или помещение установки : • должны быть самонесущими, несмотря на строительный материал, и при любых обстоятельствах, не должны вступать в контакт с прибором; • должны допускать нормальное термическое расширение во время работы прибора; • должны быть построен...
Страница 28 - УСТАНОВКА ДАТЧИКА ДЫМА; Топка; Если фасадная стена
DT2010328-00 4.2 УСТАНОВКА ДАТЧИКА ДЫМА Топка оборудован а датчиком дыма с шарнирной тягой, выполняющей функцию следования углу наклона, под которым установлена вытяжка. Установка выполняется следующим образом: - Установите датчик (2) в гнезде и держите его в вертикальном положении. - Вставьте тягу ...
Страница 29 - Приблизительное значение указано для ОДНОГО кубического; ИСПОЛЬЗОВАНИЕ; первостепенную важность.
0 0,5 1,0 1,5 2,0 2,5 3,0 Тепловая мощность (кВт.ч/дм3 вода=20%) ЕЛЬ ПИХТА ИВА СОСНАТОПОЛЬОЛЬХА ЛИСТВЕННИЦА БЕРЕЗА БУК ЯСЕНЬ ДУБ АКАЦИЯ БЕЛЫЙ БУК Приблизительное значение указано для ОДНОГО кубического дециметра дров одинаковой формы, с содержанием влаги около 20%. Рис . 46 5.0 ИСПОЛЬЗОВАНИЕ DT20100...
Страница 30 - ШИБЕРНОЙ; Разжигая топку, оставьте заслонку в положении
Размер полена Размер полена также может повлиять на КПД изделия: - Важно расположить дрова на колоснике, поверх слоя углей. - Поленья не должны касаться покрытия Aluker или стеклянного окна, их также не следует складывать одно на другое , если это не входит в пределы нормального потребления (см. ...
Страница 31 - ПРИТОКА; Перед розжигом извлеките; Эксплуатационное испытание; ОБЩИЕ; не открывайте дверцу печи; Не тушите огонь водой, так как это может повредить колосник.; Запуск; На данном этапе происходит; Избыток топлива и чрезмерное открытие шиберной заслонки; Номинальный термический КПД определяется с помощью; РЕГУЛИРОВКА; Сжигаемый материал; Положение возд
ОТКРЫТО ЗАКРЫТО Рис. 49 DT2012386-02 5.3 РЕГУЛИРОВКА ПРИТОКА ВОЗДУХА ДЛЯ ГОРЕНИЯ DT2010045-03 5.4 ПЕРВЫЙ РОЗЖИГ a Перед розжигом извлеките имеющиеся аксессуары (см. раздел “ АКСЕССУАРЫ ” ) и воспламеняемые элементы из колосника или зольника и снимите защитные элементы, используемые для перевозки топ...
Страница 32 - ДВЕРЦЫ; При розжиге; Всегда используйте шестигранную дверную ручку; Положите дрова на колосник так, как показано ниже:; ОТКРЫТО; положите растопочный материал; “РЕГУЛИРОВКА ПРИТОКА ВОЗДУХА ДЛЯ ГОРЕНИЯ”; МИНИМАЛЬНАЯ; Необходимое количество дров и; Чтобы не допустить этого,; колосника и дымохода.
DT2010617-01 5.5 РОЗЖИГ DT2010046-00 5.6 ОТКРЫТИЕ ДВЕРЦЫ При розжиге необходимо, чтобы колосник быстро достиг рабочей температуры. Если это произойдет медленно, на нем неизбежно образуется конденсат, что приведет к почернению колосника и стекла. Дверца должна оставаться закрытой, пока горит огонь, в...
Страница 33 - небольшим количеством; В случае возгорания
DT2010048-00 5.8 ЭКСПЛУАТАЦИЯ ПРИ НЕБЛАГОПРИЯТНЫХ ПОГОДНЫХ УСЛОВИЯХ DT2010051-00 5.9 ПЕРЕГРЕВ И ТУШЕНИЕ В межсезонье при неблагоприятной погоде, или когда температура внешней среды повышается, из-за внезапных изменений может произойти нарушение тяги, в свою очередь, ухудшающее отход дыма. В этом слу...
Страница 34 - КОНТРОЛЬ; го сезона; Креозот; Используйте только рекомендованные виды топлива (см. раздел; Следующие детали должны быть свободными и проходить проверку; не реже, чем каждые два месяца; Стальные части облицовки; УХОД ЗА; мягкую; другие; Если обслуживание не проводится с рекомендуемой
6.0 УХОД И ОБСЛУЖИВАНИЕ DT2010058-00 6.1 ПЕРИОДИЧЕСКИЙ КОНТРОЛЬ DT2010059-03 6.2 УХОД ЗА КЕРАМИЧЕСКОЙ ОБЛИЦОВКОЙ DT2010060-00 6.3 УХОД ЗА СТАЛЬНЫМИ ДЕТАЛЯМИ Проверяйте наличие отложений креозота в трубах, соединяющихся с дымоходом, и в самом дымоходе в течение отопительно - го сезона , не реже, чем ...
Страница 35 - Поэтому; температуры до 750°C.; Контроль; ОТКРЫТИЕ; Модели; Только для того, чтобы почистить стекло; Модель; ЗА КОЛОСНИКОМ; накоплению золы или остаточных продуктов горения.
DT2010700-00 6.5 УХОД ЗА СТЕКЛОМ (ПОВСЕДНЕВНЫЙ) Если прибор разогревается медленно во время горения дров из-за того, что они не вполне сухие, это может привести к образованию смолистого налета на стекле. Постепенно он исчезнет под воздействием сильного огня, когда прибор будет работать на полную мощ...
Страница 36 - состоит, в основном из оксидов; пока тлеющие; Советы по оптимальному использованию кирпичей из; ДЕФЛЕКТОРОВ; Прибор оснащен дефлектором, предназначенным для; ПРЕКРАЩЕНИЕ РАБОТЫ; Перед длительным перерывом в работе топки рекомендуется; ПЕРИОДИЧЕСКИЙ; Также не следует; Данную операцию могут проводить только специалисты; при этом
DT2010049-04 6.8 УБОРКА ЗОЛЫ DT2010064-0 6.9 УХОД ЗА МАТЕРИАЛОМ ALUKER Зола натурального (необработанного) дерева, сжигаемого в печах или в открытых топках, состоит, в основном из оксидов кальция, кремния, калия и магния. Поэтому золу можно использовать в качестве удобрения для растений или в саду, ...
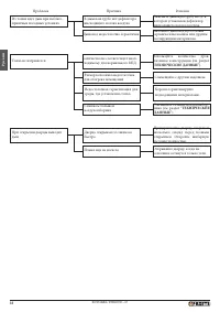
Страница 37 - ВЫЯВЛЕНИЕ И УСТРАНЕНИЕ НЕИСПРАВНОСТЕЙ; Проверьте дымовую/газовую
a Некоторые из этих проблем можно решить, следуя инструкции. Все работы с топкой проводятся только квалифици- рованными специалистами, при условии, что она остыла и отсоединена от электросети (штепсель вынут из розетки). a Несанкционированное вмешательство в работу устройства или использование неори...
Страница 38 - Слишком большой; Недостаточная герметизация для
Проблема Причина Решение Из топки идет дым при неблаго- приятных погодных условиях В дымовой трубе нет дефлектора нисходящего потока воздуха Замените дымовую трубу на ту, в которой установлен дефлектор нисходящего потока воздуха. Дымоход недостаточно герметичен Выложите дымоход пустотелым керамическ...
Страница 39 - изменения без уведомления.; Country of application: The European Union; Глиняные/керамические блоки; Установка
БАЗОВЫЕ СТАНДАРТЫ Сведения об условиях, ограничениях и исключениях содержатся в гарантийном сертификате, прилагающемся к изделию. В соответствии со своей политикой постоянного совершенствования продукции, производитель может вносить изменения без уведомления. Настоящий документ является собственност...