Philips AWH1622/51(80YC) - Инструкция по эксплуатации

Philips AWH1622/51(80YC)

Водонагреватель Philips AWH1622/51(80YC) - инструкция пользователя по применению, эксплуатации и установке на русском языке. Мы надеемся, она поможет вам решить возникшие у вас вопросы при эксплуатации техники.

Если остались дополнительные вопросы — свяжитесь с нами через контактную форму.

1 Страница 1
2 Страница 2
3 Страница 3
4 Страница 4
5 Страница 5
6 Страница 6
7 Страница 7
8 Страница 8
9 Страница 9
10 Страница 10
11 Страница 11
12 Страница 12
13 Страница 13
14 Страница 14
15 Страница 15
16 Страница 16
17 Страница 17
18 Страница 18
19 Страница 19
20 Страница 20
21 Страница 21
22 Страница 22
23 Страница 23
24 Страница 24
25 Страница 25
26 Страница 26
27 Страница 27
28 Страница 28
29 Страница 29
30 Страница 30
31 Страница 31
32 Страница 32
33 Страница 33
34 Страница 34
35 Страница 35
36 Страница 36
37 Страница 37
38 Страница 38
39 Страница 39
40 Страница 40
41 Страница 41
42 Страница 42
43 Страница 43
44 Страница 44
45 Страница 45
46 Страница 46
Страница: / 46

Содержание:

  • Страница 4 – СОДЕРЖАНИЕ
  • Страница 26 – Используемые обозначения
  • Страница 27 – Правила безопасности
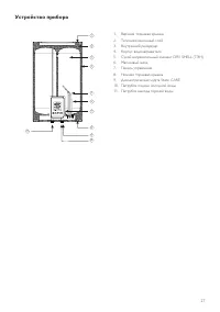
  • Страница 29 – Устройство прибора
  • Страница 30 – Технические характеристики
  • Страница 31 – Установка; Способы монтажа водонагревателя
  • Страница 33 – Монтаж
  • Страница 34 – Подключение к электрической сети; УЗО
  • Страница 35 – Эксплуатация; Включение водонагревателя
  • Страница 36 – Выключение
  • Страница 37 – Обслуживание
  • Страница 40 – Сертификация продукции; Товар соответствует требованиям:; ИНФОРМАЦИЯ О ПРОВЕДЕНИИ
  • Страница 42 – ГАРАНТИЙНЫЕ ОБЯЗАТЕЛЬСТВА
Загрузка инструкции

AWH1620/51(30YC)

AWH1621/51(50YC)

AWH1622/51(80YC)

AWH1623/51(100YC)

"Загрузка инструкции" означает, что нужно подождать пока файл загрузится и можно будет его читать онлайн. Некоторые инструкции очень большие и время их появления зависит от вашей скорости интернета.

Краткое содержание

Страница 4 - СОДЕРЖАНИЕ

2 СОДЕРЖАНИЕ RU ИСПОЛЬЗУЕМЫЕ ОБОЗНАЧЕНИЯ 24 ПРАВИЛА БЕЗОПАСНОСТИ 25 НАЗНАЧЕНИЕ 26 ПРИНЦИП РАБОТЫ 26 УСТРОЙСТВО ПРИБОРА 27 ТЕХНИЧЕСКИЕ ХАРАКТЕРИСТИКИ 28 УСТАНОВКА 29 МОНТАЖ 31 УЗО (устройство защитного отключения ) 32 ЭКСПЛУАТАЦИЯ 33 ОБСЛУЖИВАНИЕ 35 ПОИСК И УСТРАНЕНИЕ НЕИСПРАВНОСТЕЙ 36 ЭЛЕКТРИЧЕСКАЯ ...

Страница 26 - Используемые обозначения

24 Благодарим вас за приобретение и удачный выбор водонагревателя PHILIPS! Просим вас внимательно ознакомиться с руководством и условиями эксплуатации перед использованием устройства После прочтения сохраните данное руководство в надежном месте для дальнейшего применения Требования, несоблюдение кот...

Страница 27 - Правила безопасности

25 • Внимательно прочитайте данное руководство по экс - плуатации перед установкой и эксплуатацией Если у вас возникнут вопросы, обращайтесь к официальному дилеру производителя • Используйте прибор только по назначению, указанно - му в руководстве по эксплуатации • Не храните бензин и другие летучие...

Характеристики

Другие модели - Водонагреватели Philips

Все водонагреватели Philips