Страница 4 - СОДЕРЖАНИЕ
2 СОДЕРЖАНИЕ RU ИСПОЛЬЗУЕМЫЕ ОБОЗНАЧЕНИЯ 24 ПРАВИЛА БЕЗОПАСНОСТИ 25 НАЗНАЧЕНИЕ 26 ПРИНЦИП РАБОТЫ 26 УСТРОЙСТВО ПРИБОРА 27 ТЕХНИЧЕСКИЕ ХАРАКТЕРИСТИКИ 28 УСТАНОВКА 29 МОНТАЖ 31 УЗО (устройство защитного отключения ) 32 ЭКСПЛУАТАЦИЯ 33 ОБСЛУЖИВАНИЕ 35 ПОИСК И УСТРАНЕНИЕ НЕИСПРАВНОСТЕЙ 36 ЭЛЕКТРИЧЕСКАЯ ...
Страница 26 - Используемые обозначения
24 Благодарим вас за приобретение и удачный выбор водонагревателя PHILIPS! Просим вас внимательно ознакомиться с руководством и условиями эксплуатации перед использованием устройства После прочтения сохраните данное руководство в надежном месте для дальнейшего применения Требования, несоблюдение кот...
Страница 27 - Правила безопасности
25 • Внимательно прочитайте данное руководство по экс - плуатации перед установкой и эксплуатацией Если у вас возникнут вопросы, обращайтесь к официальному дилеру производителя • Используйте прибор только по назначению, указанно - му в руководстве по эксплуатации • Не храните бензин и другие летучие...
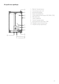
Страница 29 - Устройство прибора
27 Устройство прибора 1 Верхняя торцевая крышка2 Теплоизоляционный слой3 Внутренний резервуар4 Корпус водонагревателя5 Сухой нагревательный элемент DRY SHELL (ТЭН)6 Магниевый анод7 Панель управления8 Нижняя торцевая крышка9 Диэлектрическая муфта Static CARE10 Патрубок подачи холодной воды11 Патрубок...
Страница 30 - Технические характеристики
28 Технические характеристики Основные размеры Рис 2 Модель / Размеры, мм A B C D E F G AWH1620/51(30YC) 256 236 92 433 550 240 216 AWH1621/51(50YC) 256 236 92 433 850 500 216 AWH1622/51(80YC) 290 270 110 493 1005 450 267 AWH1623/51(100YC) 290 270 110 493 1200 550 267 , - * + ( ' ) , - * + ( ' ) Пар...
Страница 31 - Установка; Способы монтажа водонагревателя
29 Установка 1 Водонагреватель следует устанавливать на прочной стене Стена, на которой устанавливается электри - ческий водонагреватель, должна выдерживать как минимум двойной вес водонагревателя, полностью заполненного водой, на стене должны отсутство - вать трещины и другие повреждения В противно...
Страница 33 - Монтаж
31 1 Водонагреватель подключается к водопроводной сети с давлением минимум 0,02 МПа, максимум 0,7 МПа 2 Для подключения водонагревателя к водопроводу применяются трубы диаметром G1/2 3 Чтобы предотвратить протечки, при подсоединении труб используйте резиновые уплотнительные про - кладки на резьбовых...
Страница 34 - Подключение к электрической сети; УЗО
32 Подключение к электрической сети Внимание! 1 Между предохранительным клапаном и входным патрубком нельзя монтировать дополни - тельные приспособления, например, отсечной кран 2 Если вода в месте установки содержит большое коли - чество солей кальция, марганца или железа, то необхо - димо в подвод...
Страница 35 - Эксплуатация; Включение водонагревателя
33 Эксплуатация Включение водонагревателя 1 Откройте один из кранов выхода горячей воды, затем откройте кран подачи холодной воды Электрический водонагреватель начнёт заполняться водой Когда из крана горячей воды свободно вытекает вода, это оз - начает, что водонагреватель полностью заполнился водой...
Страница 36 - Выключение
34 Во время нагревания может начать капать вода из отверстия предохранительного клапана Избежать подтекания воды невозможно и нельзя препятствовать этому, так как блокировка клапана может привести к разрыву внутреннего резервуара (в случае аварии оборудования) Внимание! Индикаторы: Водонагреватель а...
Страница 37 - Обслуживание
35 лампочка - индика тор работы УЗО (1) кнопка TEST (2) кнопка перезапуска (3) отверстие сброса давления винт ручка слива Рис 7 1 Никогда не сливайте воду, если её температура выше 50 °С, т к это может привести к ожогам 2 Если вода не потечет, то клапан испорчен В этом случае нельзя пользоваться наг...
Страница 40 - Сертификация продукции; Товар соответствует требованиям:; ИНФОРМАЦИЯ О ПРОВЕДЕНИИ
38 Сертификация продукции Товар соответствует требованиям: ТР ТС 004/2011 «О безопасности низковольтного оборудования» ТР ТС 020/2011 «Электромагнитная совместимость технических средств» ТР ЕАЭС 037/2016 «Об ограничении применения опасных веществ в изделиях электротехники и радиоэлектроники» Изготов...
Страница 42 - ГАРАНТИЙНЫЕ ОБЯЗАТЕЛЬСТВА
40 ГАРАНТИЙНЫЕ ОБЯЗАТЕЛЬСТВА Модель Серийный номер Дата изготовления Срок гарантии Дата продажи* Дата монтажа** Покупатель Продавец Организация, осуществившая монтаж оборудования * дата подписания товарно-транспортной накладной ** дата подписания Акта приемки оборудования в эксплуатацию