Обогреватели Kalashnikov KVC-D15W33-11 4010500037 - инструкция пользователя по применению, эксплуатации и установке на русском языке. Мы надеемся, она поможет вам решить возникшие у вас вопросы при эксплуатации техники.
Если остались вопросы, задайте их в комментариях после инструкции.
"Загружаем инструкцию", означает, что нужно подождать пока файл загрузится и можно будет его читать онлайн. Некоторые инструкции очень большие и время их появления зависит от вашей скорости интернета.

13
а6
а2
Ш
b1
b2
а7
В
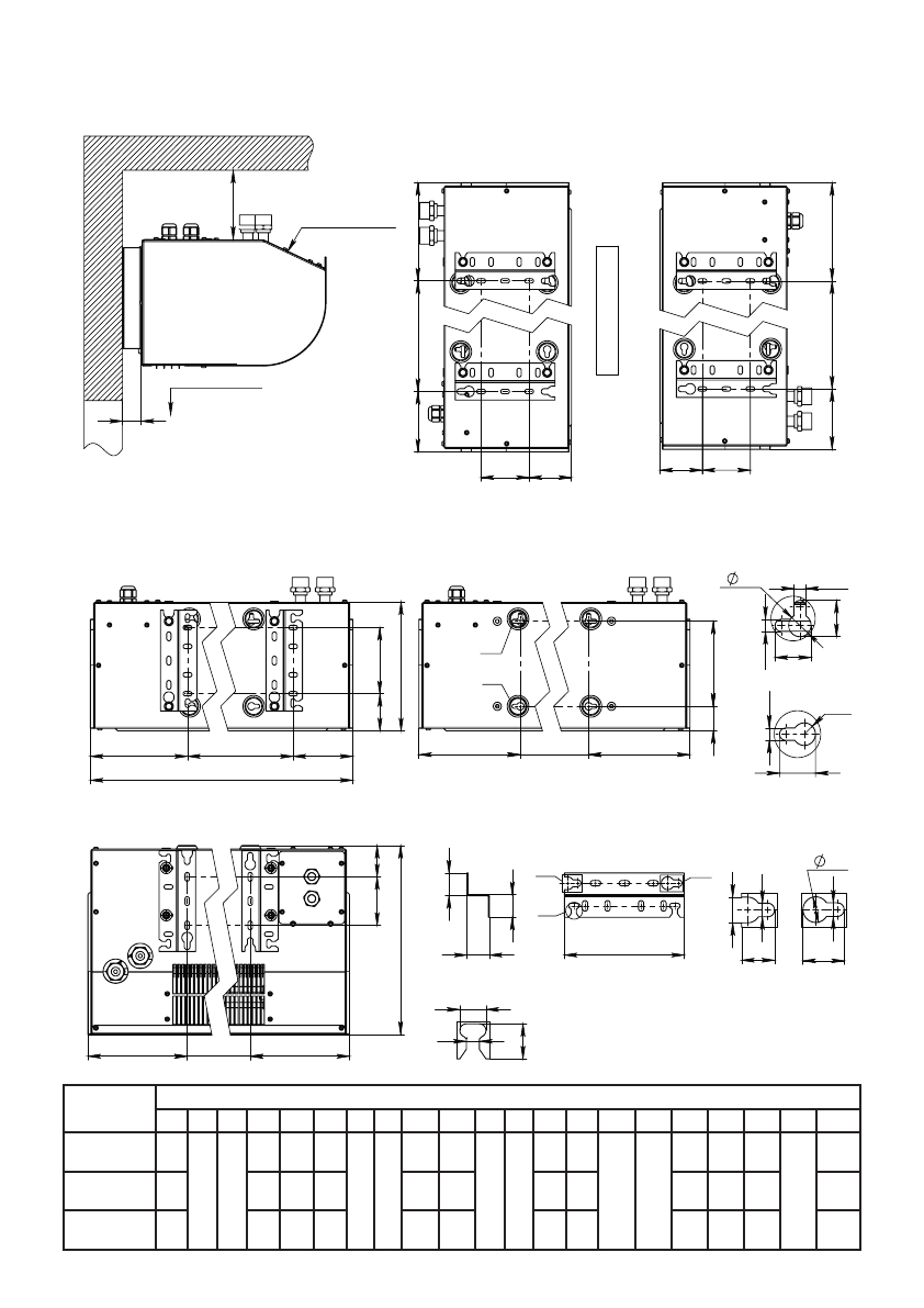
ГОРИЗОНТАЛЬНАЯ УСТАНОВКА
к стене с помощью кронтштейнов
c3
c4
c1
c2
c5
A
B
ГОРИЗОНТАЛЬНАЯ И ВЕРТИКАЛЬНАЯ
УСТАНОВКА
к стене с помощью отверстий на корпусе
РАЗМЕРЫ КРОНШТЕЙНА
Г
d3
a4
d1
d2
d4
ГОРИЗОНТАЛЬНАЯ УСТАНОВКА
к потолку на шпильки
a5
a4
a7
a2
a6
Дверной проем
а2
а3
a5
a4
а1
ВЕРТИКАЛЬНАЯ УСТАНОВКА
к стене с помощью кронштейнов
300 min
30
Всасывание
Нагнетание
205
C
D
E
30
30
30
12
6,5
6,5
19,3
19,3
A
6,5
19,3
R6
B
17
9
22
C
17
9
27,5
D
14
7
18,5
E
Рисунок 9.
Габаритные и крепежные размеры
Таблица 6. Габаритные и крепежные размеры
Модель завесы
Размеры, мм
Ш
В
Г
а1
а2
а3
а4 а5
a6
a7
b1 b2
c1
c2
c3
c4
с5
d1
d2
d3
d4
KVC-
D10W20-11
1120
300 415
165.5 829 125.5
122 93
185.5 105.5
84 150
195.5 749
64
180
175.5 169
762
49
189
KVC-
D15W33-11
1520
165.5 1231 123.5
183.5 105.5
193.5 1151
175.5 169 1164
187
KVC-
D20W50-11
2095
192 1672 231
291
132
202 1691
202
189 1617
288













