Обогреватели FRICO AG5020A - инструкция пользователя по применению, эксплуатации и установке на русском языке. Мы надеемся, она поможет вам решить возникшие у вас вопросы при эксплуатации техники.
Если остались вопросы, задайте их в комментариях после инструкции.
"Загружаем инструкцию", означает, что нужно подождать пока файл загрузится и можно будет его читать онлайн. Некоторые инструкции очень большие и время их появления зависит от вашей скорости интернета.

2
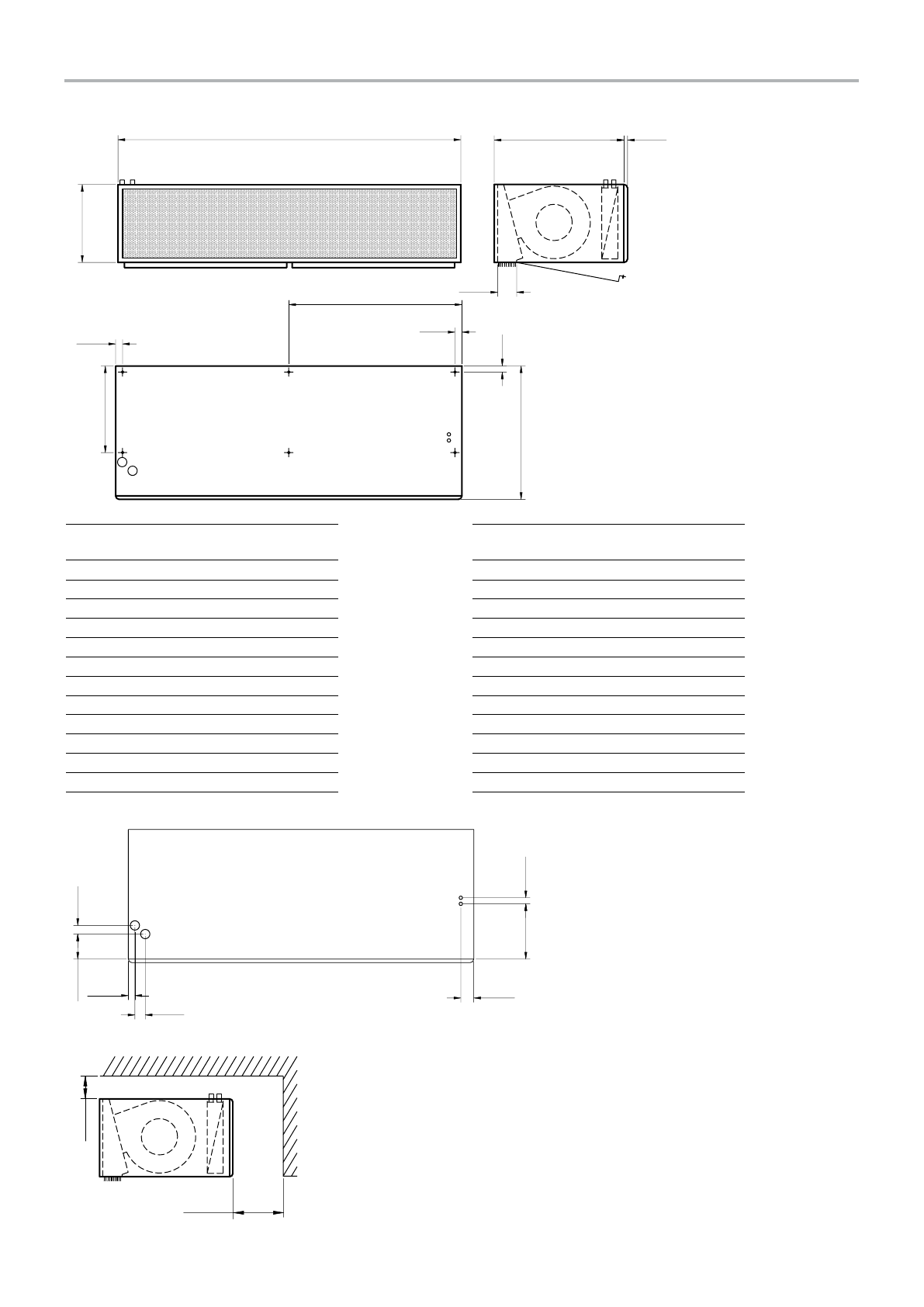
Thermozone AG 4500/5000 A/W
Connections
Type
L
[mm]
AG4515A
1500
AG4520A
2000
AG5010A
1000
AG5015A
1500
AG5020A
2000
AG4515WL/WH
1500
AG4520WL/WH
2000
AG4525WL/WH
2500
AG5010WL/WH
1000
AG5015WL/WH
1500
AG5020WL/WH
2000
AG5025WL/WH
2500
Minimum distance
770
35
50
0
450
L/2
40
40
20
750
L
110
38
14
55
0
75
320
35
60
min 200
min 80
Type
Connection
AG4515WH
DN20
AG5015WH
DN20
AG4515WL
DN25
AG4520WH
DN25
AG5010WL
DN25
AG5015WL
DN25
AG5010WH
DN25
AG5020WH
DN25
AG4520WL
DN32
AG4525WH/WL
DN32
AG5020WL
DN32
AG5025WH/WL
DN32