Обогреватели FRICO AD310E09 - инструкция пользователя по применению, эксплуатации и установке на русском языке. Мы надеемся, она поможет вам решить возникшие у вас вопросы при эксплуатации техники.
Если остались вопросы, задайте их в комментариях после инструкции.
"Загружаем инструкцию", означает, что нужно подождать пока файл загрузится и можно будет его читать онлайн. Некоторые инструкции очень большие и время их появления зависит от вашей скорости интернета.

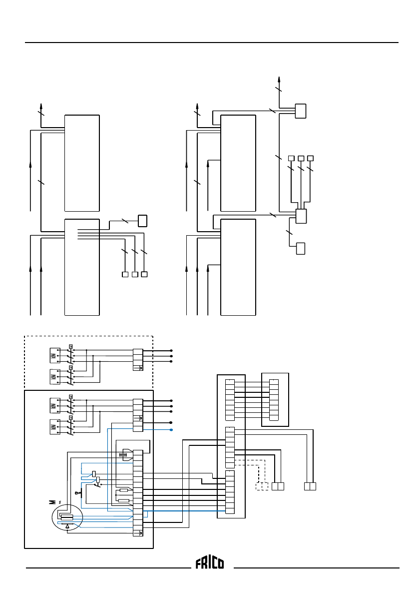
Thermozone AD300A/E, 400A/E
12
Level 3
AD 300 E
40
0V3~
AD31
0/315E
Green Yello
w
N
L
Tk
Tk
0
Orange
Blue
White
White
Brown
2
1
4
5
6
7
M
~
11
8
9
10
L1
L2
L3
k2
k1
kW
kW
C
C
230V~
k1
k2
40
0V3~
L1
L2
L3
k2
k1
kW
kW
AD320E
Blac k
9
L
5
4
6
8
N
ADEAIB
50
20
31
51
30
40
41
1
6
1
0
1
3
1
7
1
2
1
4
1
5
21
11
1
0
4
7
11
6
8
9
5
ADEAR
ADEA
OS
MDCDC
ADEAIS
230V ~, Motor and control
8+PE
8+PE
40
0V 3~, Heat
230V ~, Motor and control
40
0V 3~, Heat
2+PE
2+PE
40
0V 3~, Heat
40
0V 3~, Heat
40
0V 3~, Heat
40
0V 3~, Heat
ADEAEB
9+PE
ADEAR
8x0,5
mm2
ADEA
OS
MDCDC
ADEAIS
(ADEAIB)
8x0,5
mm2
ADEAR
2x0,5
mm2
ADEA
OS
MDCDC
ADEAIS
ADEAEB
9+PE
5
5
2x0,5
mm2
2x0,5
mm2
2x0,5
mm2
2x0,5
mm2
2x0,5
mm2
AD31
0/315E
AD31
0/315E
AD320E
AD320E













