MBS PG-301 - Инструкция по эксплуатации

MBS PG-301

Варочная панель MBS PG-301 - инструкция пользователя по применению, эксплуатации и установке на русском языке. Мы надеемся, она поможет вам решить возникшие у вас вопросы при эксплуатации техники.

Если остались дополнительные вопросы — свяжитесь с нами через контактную форму.

1 Страница 1
2 Страница 2
3 Страница 3
4 Страница 4
5 Страница 5
6 Страница 6
7 Страница 7
8 Страница 8
9 Страница 9
10 Страница 10
11 Страница 11
12 Страница 12
13 Страница 13
14 Страница 14
15 Страница 15
16 Страница 16
17 Страница 17
18 Страница 18
19 Страница 19
20 Страница 20
21 Страница 21
22 Страница 22
23 Страница 23
24 Страница 24
25 Страница 25
26 Страница 26
27 Страница 27
28 Страница 28
29 Страница 29
30 Страница 30
31 Страница 31
32 Страница 32
33 Страница 33
34 Страница 34
35 Страница 35
36 Страница 36
Страница: / 36

Содержание:

  • Страница 3 – Установка; Подключение, ремонт, техническое обслуживание; важно проверить, что прибор ОТКЛЮЧЕН от электрической сети.
  • Страница 5 – СОДЕРЖАНИЕ; Для пользователя
  • Страница 6 – ОПИСАНИЕ ВАРОЧНОЙ ПОВЕРХНОСТИ
  • Страница 7 – Розжиг конфорок; Правильное использование варочной панели.; Конфорка
  • Страница 9 – Входное газовое отверстие
  • Страница 10 – Помещения для установки; менее 2 м; Удаление продуктов горения; под различные типы газа”.
  • Страница 11 – Подключение газа; варочная поверхность устанавливается совместно с духовкой.; ЭЛЕКТРИЧЕСКИЕ ПОДКЛЮЧЕНИЯ; - сеть и автомат защиты способны выдержать нагрузку прибора
  • Страница 13 – Установка минимального уровня подачи газа
  • Страница 14 – На шкаф с дверью
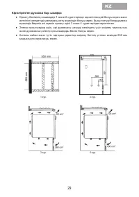
  • Страница 15 – На шкаф со встроенной духовкой; позволяющие избежать перегрева, показаны на рисунках 3 и 4.
  • Страница 18 – Импортер
  • Страница 35 – Модель; или электрического поражения.
Загрузка инструкции

"Загрузка инструкции" означает, что нужно подождать пока файл загрузится и можно будет его читать онлайн. Некоторые инструкции очень большие и время их появления зависит от вашей скорости интернета.

Краткое содержание

Страница 3 - Установка; Подключение, ремонт, техническое обслуживание; важно проверить, что прибор ОТКЛЮЧЕН от электрической сети.

1 RU Уважаемый, покупатель! Мы благодарим Вас за выбор газовой варочной поверхности торговой марки MBS. Пожалуйста, внимательно ознакомьтесь с настоящей Инструкцией перед началом пользования.Монтаж и подключение варочной поверхности должны быть произведены только квалифицированным специалистом в соо...

Страница 5 - СОДЕРЖАНИЕ; Для пользователя

3 RU СОДЕРЖАНИЕ Для пользователя 1. ОПИСАНИЕ ВАРОЧНОЙ ПОВЕРХНОСТИ 2. ИНСТРУКЦИЯ ПО ИСПОЛЬЗОВАНИЮ 3. ОЧИСТКА И ОБСЛУЖИВАНИЕ Для специалиста по установке 4. ТЕХНИЧЕСКИЕ ХАРАКТЕРИСТИКИ 5. ИНСТРУКЦИИ ДЛЯ СПЕЦИАЛИСТА ПО УСТАНОВКЕ 6. ЭЛЕКТРИЧЕСКИЕ ПОДКЛЮЧЕНИЯ 7. ПЕРЕНАЛАДКА ПОД РАЗЛИЧНЫЕ ТИПЫ ГАЗА 8. МОНТ...

Страница 6 - ОПИСАНИЕ ВАРОЧНОЙ ПОВЕРХНОСТИ

4 2. ИНСТРУКЦИЯ ПО ИСПОЛЬЗОВАНИЮРучки управления 2 Символы на ручках управления имеют следующее значение: 1 – Ваш прибор может иметь внешние и технические отлиичия от указанного на картинке, содержать лишь часть компонентов, обозначенных в пункте 2 - 5. 2 – Символы на ручках вашего прибора могут нез...

Характеристики

Другие модели - Варочные панели MBS

Все варочные панели MBS