Магнитолы Kenwood KRC-791 - инструкция пользователя по применению, эксплуатации и установке на русском языке. Мы надеемся, она поможет вам решить возникшие у вас вопросы при эксплуатации техники.
Если остались вопросы, задайте их в комментариях после инструкции.
"Загружаем инструкцию", означает, что нужно подождать пока файл загрузится и можно будет его читать онлайн. Некоторые инструкции очень большие и время их появления зависит от вашей скорости интернета.

— 74 —
Polski
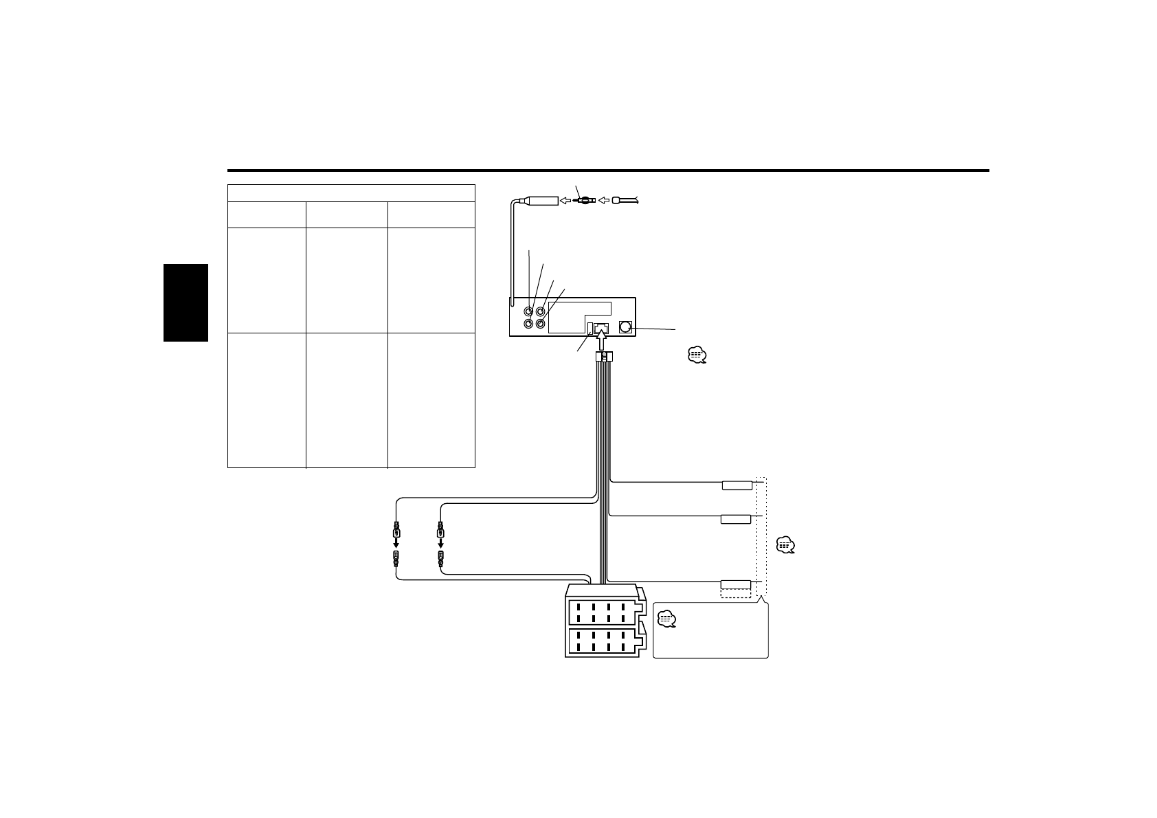
TEL MUTE
EXT.CONT.
P.CONT.OUT
ANT.CONT
1
2
3
4
5
6
7
8
1
2
3
4
5
6
7
8
REAR
FRONT
R
L
Wyjście przednie lewe (Biały)
14
Wyjście przednie prawe (Czerwony)
13
Wyjście tylne prawe (Czerwony)
11
Wyjście tylne lewe (Biały)
12
Do zmieniacza płyt kompaktowych KENWOOD/wejście
sterowania DAB/KPA-SD100/KPA-HD100/KPA-SS100
16
Przewód akumulatora (Żółty)
6
Przewód zapłonu (Czerwony)
7
Wejście anteny
FM/AM
2
Przewód antenowy (ISO)
3
Adapter antenowy (ISO-JASO) (Akcesoria poz.
3
)
1
W celu połączenia tych przewodów, zapoznaj
się z odpowiednią instrukcją.
17
Jeżeli nie dokonano
połączenia, nie
należy dopuścić aby
kabel wysunął się z
osłonki.
27
Podłącz do końcówki, która jest
uziemiona, gdy dzwoni telefon lub
porczas rozmowy.
24
Przewód sterowania zasilaniem/
Silnikiem anteny
(Niebiesko/biały)
Podłącz albo do końcówki
sterowania zasilaniem, gdy
korzysta się z opcyjnego
wzmacniacza zasilania, albo do
końcówki sterowania anteną w
samochodzie.
26
Kołek A-7 (Czerwony)
8
Kołek A-4 (Żółty)
9
Kostka połączeniowa B
Kostka połączeniowa A
Kabel wyłączania dęwińku
(mute) TEL (brózowy)
21
Przed podłączeniem systemu
nawigacji KENWOOD,
zapoznaj się z instrukcją
obsługi tego systemu.
25
Kabel sterujący
wzmacniacza zewnętrznego
(różowy/czarny)
20
Do końcówki "EXT.AMP.CONT."
wzmacniacza pełniącej rolę
funkcji sterowania wzmacniacza
zewnętrznego.
23
Wiązka przewodów
(Akcesoria poz.
1
)
5
Bezpiecznik(10A)
4
Mapa funkcji kostki
Numer szpilki dla
kostek ISO
Kolor przewodu
Funkcje
Kostka zasilania
zewnętrznego
A–4
A–5
A–6
A–7
A–8
Kostka głośników
B–1
B–2
B–3
B–4
B–5
B–6
B–7
B–8
Żółty
Niebiesko/biały
Pomarańczowy/biały
Czerwony
Czarny
Purpurowy
Purpurowo/czarny
Szary
Szaroczarny
Biały
Białoczarny
Zielony
Zielonoczarny
Akumulator
Sterowanie zasilaniem
Ściemniacz
Zapłon (ACC)
Połączenie
Ziemia (masa)
Tylny prawy (
+
)
Tylny prawy (
–
)
Przedni prawy (
+
)
Przedni prawy (
–
)
Przedni lewy (
+
)
Przedni lewy (
–
)
Tylny lewy (
+
)
Tylny lewy (
–
)
Podłączanie przewodów do końcówek
Содержание
- 2 Cодержание; Cвойства кассетного проигрывателя
- 3 ПРEДУПРEЖДEHИE; BHИMAHИE; ВАЖНЫE ИНФОРМАЦИИ; Меры предосторожности
- 4 • Если устройство работает со сбоями,; ПРИМEЧАНИE; Kнопку Cброс; Очистка выводов передней панели
- 5 приклейте её обратно.; Экстренные сообщения; O RDS
- 6 Тюнер; Как выбрать источник; Включение питания; Питание; Общие характеристики; Py; Индикатор SYSTEM Q
- 7 System Q; Быстрое уменьшение громкости.; Аттенуатор; Увеличение громкости; Громкость
- 8 Установка акустической системы; Фактор Q НЧ; Управление аудио
- 9 Переключение дисплея часов; Исходное название диска; Пераключение дисплея
- 10 Снятие лицевой пластинки; Придерживая лицевую пластинку посередине, выньте её.; Лицевая пластинка, предотвращающая кражу; Выберите дополнительный входящий источник; Установка диспля дополнитльного входа
- 11 Cвойства тюнера; Закрытие панели управления; Установка лицевой пластинки; SRC; Индикатор ST
- 12 Отмена настройки непосредственным доступом; Настройка непосредственным доступом
- 13 Cвойства RDS; Настройка на предварительную установку; FM; Индикатор TI
- 14 Просмотр радио текста; Осуществите приём станции.; Приём других станций, передающих дорожную информацию; Дорожная информация
- 15 Предварительная установка типа программы
- 16 Изменение языка для функции PTY; Сторона проигрывания
- 17 CrO; Выбор типа магнитной ленты; Сдвиньте и откройте лицевую пластинку; Выброс кассеты; Проигрывание магнитофонных кассет
- 18 Повтор проигрываемой песни.; Повторение музыки; Отмена функции DPSS; Обозначение песни, которую нужно пропустить; Функция DPSS с пульта дистанционного управления; Пропуск следующей песни
- 19 Проигрыватель CD; Пауза и проигрывание; Проигрывание внешнего диска; Функции управления внешним диском; FM SRC; Номер дорожки
- 20 Непосредственный поиск дорожки; Ускоренное передвижение вперёд; Ускоренное передвижение назад; Нажмите и держите кнопку [; Ускоренное передвижение вперёд и назад
- 21 Произвольное проигрывание магазина; Начните просмотр дорожек; Просмотр дорожек; Повторное проигрывание; Повтор дорожки; Повтор дорожки/альбома; Произвольное проигрывание
- 22 Повторите последовательности 3 – 5 и введите название.
- 23 Система меню; Если на дисплее показывается желаемый диск; Дисплей меню
- 24 Mask Key
- 25 Синхронизация часов; Дисплей часов мигает.; Регулировка часов в ручном режиме; Слышится звуковой сигнал.; Тон с датчиком прикосновения
- 26 Функция модели KRC-V791; Установка цвета подсветки; Регулировка контраста
- 27 Уровень усиления НЧ плоский.
- 28 Установка бюллетеня новостей с тайм-аутом
- 29 Просмотр текста
- 30 Ocнoвные операции пульта дистанционного управления; Дисплей; Отключает питание через 20 минут.; Таймер отключения питания; ATT
- 31 Настраивают диапазон вверх или вниз.; При источнике тюнер; Регулировка громкости.; Основные операции; Вставление и замена батарейки
- 32 При источнике диск; Проигрывает обратную сторону кассеты.; При источнике магнитофон
- 33 Внешний вид; Принадлежности
- 34 Taблица функций разеъема; Разъем B; Подсоединение кабелей к гнездам для подключения
- 35 Установка
- 36 Устрaнeниe aппaрaтa
- 37 Поиск и устранение неисправностей
- 38 Источник тюнера
- 39 Не работает функция перескакивания пустых мест.; Источник диска; Не происходит проигрывание определенной дорожки.
- 40 Eod
- 41 Технические характеристики