Магнитолы Hyundai Electronics H-CMD4027 - инструкция пользователя по применению, эксплуатации и установке на русском языке. Мы надеемся, она поможет вам решить возникшие у вас вопросы при эксплуатации техники.
Если остались вопросы, задайте их в комментариях после инструкции.
"Загружаем инструкцию", означает, что нужно подождать пока файл загрузится и можно будет его читать онлайн. Некоторые инструкции очень большие и время их появления зависит от вашей скорости интернета.

28
29
Установка/Подключение
Установка/Подключение
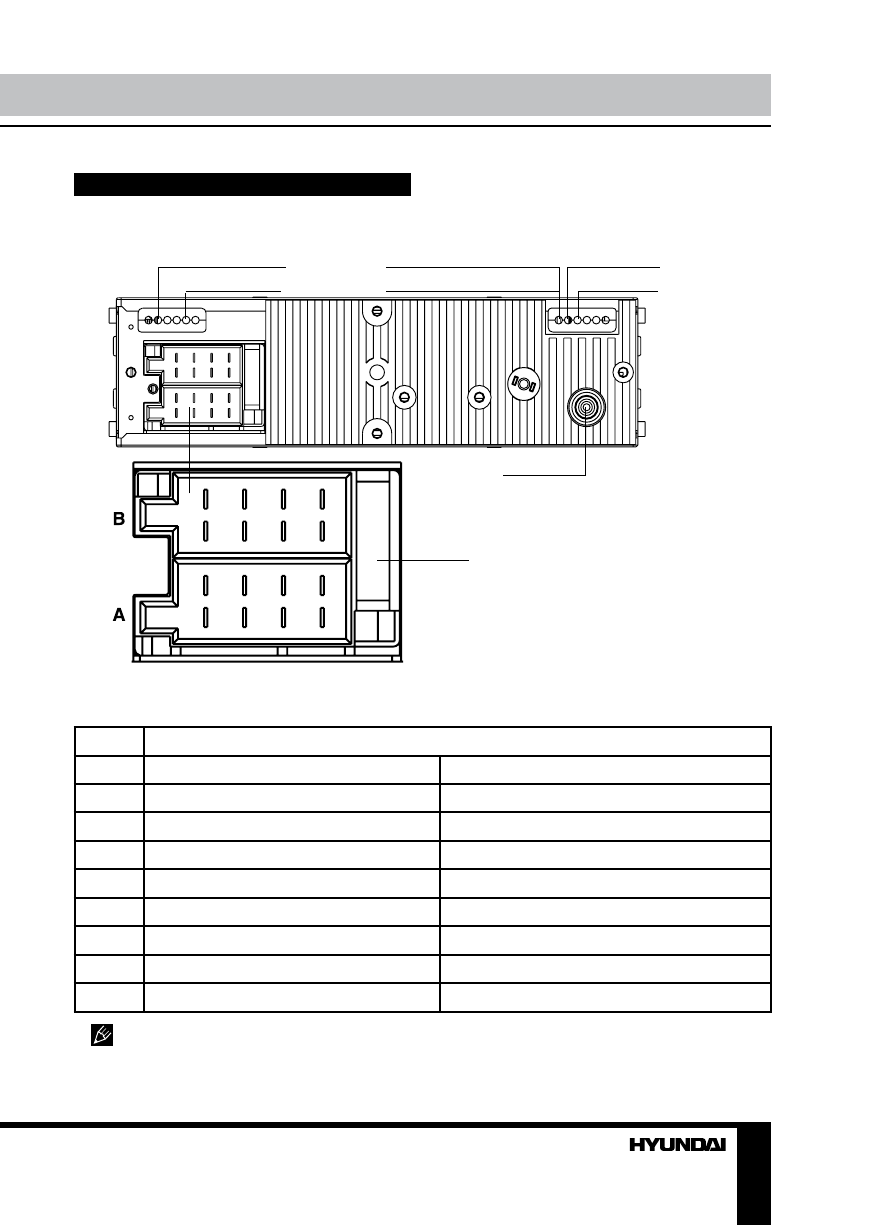
Подключение
Схема электрических соединений
1
1
3
3
5
5
7
7
2
2
4
4
6
6
8
8
Парковочный (коричн.)
Видевыход (желтый)
Выход для сабвуфера
ТВ-антенна
ISO-коннектор
Линейный выход RCA (красн=правый)
Разъем для антенны
Предохранитель 15 A
Линейный выход RCA (белый=левый)
Таблица проводов ISO-коннектора
Номер
Функция
Разъем A
Разъем B
1
-
Тыловой правый(+) - Фиолетовый
2
-
Тыловой правый(-) - Фиолетовый/Черный
3
-
Фронтальный правый(+) - Серый
4
Питание 12В (+)/желтый
Фронтальн. правый(-) - Серый/Черный
5
Питание антенны/синий
Фронтальный левый(+) - Белый
6
-
Фронт. левый((-) - Белый/Черный
7
Зажигание/красный
Тыловой левый(+) - Зеленый
8
Земля/черный
Тыловой левый(-) - Зеленый/Черный
Провод питания антенны предназначен для подачи питания на антенну и для удален-
ного управления дополнительным усилителем.
Содержание
- 22 Уважаемый покупатель!; Установка/Подключение
- 23 параметрам; Общая информация; Обращение с компакт-дисками
- 24 Утилизация изделия
- 25 • Убедитесь, что источник питания и
- 26 Установка; Установка устройства
- 27 Снятие устройства; Установка декоративной рамки
- 28 Операции со съемной панелью
- 29 Подключение; Таблица проводов ISO-коннектора; Номер; Разъем A
- 30 Использование разъема ISO; Для подключений без разъемов ISO; Подключение парковочного провода
- 31 Элементы управления; При нажатии кнопки RESET все выполненные
- 32 Пульт дистанционного управления
- 33 Основные операции
- 34 Сабвуфер
- 36 Другие функции
- 37 Операции с ТВ-тюнером
- 38 Воспроизведение/пауза
- 40 Изменение масштаба
- 41 Системные настройки; Установка языка; Аудио настройки
- 42 Настройки видео; Настройте нужный параметр изображе-; Цифровые настройки; Динамический диапазон; При просмотре в ночное время программ; Режим звука
- 44 Руководство по устранению; Неисправность
- 45 Технические характеристики; Общие