Страница 2 - Содержание; Электрические соединения
2 Содержание 1. Меры предосторожности ................................................................................................................... 3 2. Назначение .....................................................................................................................................
Страница 3 - Меры предосторожности; При установке
3 1. Меры предосторожности Чтобы избежать получения травм и нанесения ущерба другим людям и имуществу, вниматель- но прочтите и соблюдайте следующие инструк- ции. Данное оборудование не предназначено для использования маленькими детьми и людьми с ограниченной подвижностью, находящимися без надлежаще...
Страница 5 - Правила электробезопасности
5 • не препятствуйте прямому воздушному по- току. Кондиционер может выключиться рань- ше, чем охладит все помещение; • регулярно очищайте фильтры. Загрязнен- ные фильтры ведут к снижению эффектив- ности работы оборудования. Правила электробезопасности • Все подключения должны проводиться ква- лифици...
Страница 6 - Прочтите внимательно перед началом работы; Никогда не делайте этого!
6 Прочтите внимательно перед началом работы Никогда не делайте этого! Всегда делайте так! Удостоверьтесь в правиль- ности электрического напря- жения в сети. Слишком вы- сокое напряжение может привести к выходу из строя электронной платы, слишком низкое — к поломке компрес- сора и вентиляторов. Нико...
Страница 10 - Назначение; ется электронным блоком управления.; Принцип работы кондиционера в режиме охлаждения; температуре может привести к неисправности оборудования.; Функция защиты от обмерзания; нимется до определенного значения.
10 2. Назначение Сплит-система состоит из внутреннего и наружного блоков, предназначена для изменения, регу- лирования и поддержания заданной температуры воздуха в помещении. Принцип действия осно- ван на переносе тепла из помещения на улицу (и наоборот). Перенос тепла достигается за счет изменения ...
Страница 11 - Авторестарт
11 Принцип работы системы оттаивания кондиционера в режиме обогрева При работе кондиционера в режиме обогрева при отрицательных температурах наружного воз- духа кондиционер может автоматически останавливаться для оттаивания теплообменника наруж- ного блока. При этом останавливаются вентиляторы наруж...
Страница 12 - Комплектность сплит-системы; вида аксессуаров, представленных в настоящем руководстве.
12 3. Комплектность сплит-системы Сплит-система поставляется в комплекте с аксессуарами указанными ниже. Для установки конди- ционера воздуха используйте аксессуары, входящие в комплект поставки. Неправильный монтаж может привести к протечке конденсата, поражению электрическим током и возгоранию, а ...
Страница 13 - Технические характеристики
13 4. Технические характеристики Внутренний блок LS-HE09KAE2A LS-HE12KAE2A Наружный блок LU-HE09KAE2A LU-HE12KAE2A Производительность Охлаждение Втu 9000(3500–11250) 12000(4700-14700) Обогрев Втu 10000(2800–12700) 13000(3640-14950) Сезонная энергоэффек тивность в режиме охлаждения Полная нагрузка кВ...
Страница 15 - Расположение элементов
15 5. Расположение элементов Монтажная пластина Кабель питания (в зависимости от модели) Трубопровод Межблочная связь Пульт управления Дренажный шланг Жалюзи Держатель пульта управления(в зависимости от модели) Дополнительный фильтр(опция) Лицевая панель Питание наружного блока(в зависимости от моде...
Страница 16 - Дистанционный инфракрасный пульт; пульта управление не будет иметь никакого эффекта.; Кнопки управления
16 6. Дистанционный инфракрасный пульт Внимание: не оставляйте пульт управления под прямыми солнечными лучами, не нагревай - те, не мойте пульт жидкими моющими средствами, не бросайте пульт управления. FRESH Эффективное устранение бактерии, вирусов, микробов и других вредных веществ и освежает возду...
Страница 17 - MODE; AUTO
17 MODE Кнопка выбора режимов работы. AUTO COOL DRY HEAT FAN FAN/SILENCE Используйте эту кнопку для выбора комфортной скорости работы вентилятора. Всего в кондици- онере 4 режима работы вентилятора: • — низкая скорость • — средняя скорость • — высокая скорость • — авто Удерживайте кнопку «FAN» более...
Страница 18 - люзи. В этом случае их настройка возможна только вручную!; TURBO
18 Таймер работает в течении следующих 24 часов. Для сброса времени снова нажмите на кнопку TIMER OFF. SLEEP Функция SLEEP используется для экономии энергии во время сна (не требует таких же темпера- турных настроек, чтобы поддерживать комфортную температуру). Эта функция может быть акти- вирована т...
Страница 19 - функция может быть опциональной.
19 Примечание: когда в помещении темно, вы можете нажать кнопку LED на пульте дистанционного управления, чтобы включить/выключить окно дисплея, V-образное освещение и зуммер. LOCK Нажмите кнопку Clean и кнопку Turbo одновременно более 5 секунд, чтобы активировать функцию Lock. Все кнопки перестанут ...
Страница 20 - Индикация на дисплее; Авто
20 Индикация на дисплее Информация отображается при включенном пульте. Transmission MODE выбор режимов работы: TIMER ON FAN SPEED TIMER OFF Silence режим ECO GEAR LOCK Temperature/Timer/Fan speed Режим снаРежим Follow me Режим wi-fi Низкий уроверь заряда элементов питания (если мигает) Низк. Средн. ...
Страница 21 - Управление режимами работы; Автоматическая работа; Примечание
21 Управление режимами работы При выборе режима работы все настройки сохраняются в памяти блока. Поэтому, если вы хотите, чтобы кондиционер работал при таких же условиях, что и раньше, просто включите его кнопкой ON/OFF. Автоматическая работа 1 3 2 Убедитесь, что кондиционер включен в розетку, и под...
Страница 22 - Осушение; Таймер; Примечания
22 вать этот кондиционер вместе с другими отопительными приборами. Осушение 1 3 2 Перед началом работы убедитесь в наличии электропитания. 1. Нажмите кнопку MODE для выбора режима работы. • DRY для режима осушения. 2. Кнопкой TEMP задайте необходимую тем- пературу. 3. Включите кондиционер кнопкой ON...
Страница 23 - Пример настройки таймера
23 Пример настройки таймера Таймер включения (TIMER ON) Выключен Начало работы 6 часов спустя Настройка Функция TIMER ON очень удобна, если Вам нужно включить кондиционер автоматически (например, перед возвращением домой). Кондиционер автоматически включится через заданный промежуток времени. Для за...
Страница 25 - Изменение положения жалюзи; новлен с помощью пульта дистанционного управления.
25 Изменение положения жалюзи При включенном кондиционере используйте кнопку SWING. На пульте дистанционного управле- ния установить направление (горизонтальный угол) воздушного потока. Внимание! При использовании режимов COOL или DRY не устанавливайте горизонтальные жалюзи под слишком большим углом...
Страница 26 - Ручной запуск кондиционера; вентилятора автоматически.; Для включения кондиционера:
26 Ручной запуск кондиционера При утере или повреждении пульта управления кондиционер можно запустить в ручном режиме работы. Внимание! Выбор режима работы, корректировка температуры и скорости работы вентилятора в таком случае невозможна, кондиционер выбирает режим работы, температуру и скорость ве...
Страница 27 - Замена элементов питания
27 Замена элементов питания Беспроводной пульт управления для работы требует два элемента питания типа R03/LR03. Всегда используйте элементы питания одинакового типа, при замене соблюдайте полярность. • После замены элементов питания не используйте старые элементы питания вместе с новыми. • Если пул...
Страница 28 - Дисплей передней панели; о работе кондиционера прямо через переднюю панель.
28 7. Дисплей передней панели Внутренний блок оснащен дисплеем скрытого типа, позволяющим проецировать индикацию о работе кондиционера прямо через переднюю панель. В рабочем режиме отображаются настройки температуры. В режиме вентиляции (FAN) отображается текущая температура в помещении. При необход...
Страница 29 - Обслуживание и чистка кондиционера; Очистка фильтра; живанием. Маленькие фильтры очищаются только пылесосом!
29 8. Обслуживание и чистка кондиционера Внимание! Перед любыми работами кондиционер необходимо выключить и обесточить. Мойка вклю - ченного кондиционера может привести к поражению электрическим током! Внимание! Если ваш кондиционер оборудован плазменным фильтром, запрещается прикасаться к кор - пус...
Страница 30 - на место до тех пор, пока он не высохнет.; Установите дополнительные фильтры на свои места.; Очистка жалюзи
30 Очистите поверхность фильтров. Воспользуйтесь пылесосом или положите фильтр под струю холодной воды. Не пользуйтесь моющими средствами для мойки фильтров, пользуйтесь только холодной водой. Встряхните фильтр после мойки, чтобы убрать лишнюю воду. Не устанавливайте мокрый фильтр на место до тех по...
Страница 31 - Очистка передней панели; Снимите переднюю панель кондиционера:; Разъём платы индикации; Отсоедините фиксатор лицевой панели и снимете её.
31 Очистка передней панели 1. Снимите переднюю панель кондиционера: Отсоедините разъем платы индикации. Разъём платы индикации 2. Отсоедините фиксатор лицевой панели и снимете её. Фиксатор
Страница 34 - Поиск и устранение неисправностей; Не пытайтесь самостоятельно ремонтировать кондиционер.
34 9. Поиск и устранение неисправностей Внимание! • Не пытайтесь самостоятельно ремонтировать кондиционер. • Обращайтесь в авторизованный сервисный центр или к вашему дилеру. Неисправность Причина Что делать? Кондиционер не запускается Отключено электроснабжение Ждите восстановления питания Установк...
Страница 35 - Не пытайтесь устранять эти поломки самостоятельно:
35 Шум во внутреннем и наруж- ном блоке Шум во время работы: вызвано движением хладагента в системе.Шум при запуске системы: блок только что перестал работать или размора- живается, шум является нормальным и вызван остановкой или изменением направления движения хладагента.Скрипучий звук: расширение ...
Страница 36 - Коды ошибок; житесь с ближайшим сервисным центром или вашим дилером.
36 10. Коды ошибок RUN (Operation) TIMER Индикация на дисплее Неисправность или защита 1 раз × E0 Ошибка EEPROM внутреннего блока 2 раза × Е1 Ошибка связи между блоками 4 раза × Е3 Нет контроля скорости вентилятора внутреннего блока 5 раз × Е4 Ошибка датчика температуры воздуха внутреннего б...
Страница 39 - Монтаж внутреннего блока; Порядок монтажа (краткое описание этапов монтажа)
39 12. Монтаж внутреннего блока Порядок монтажа (краткое описание этапов монтажа) Закрепите монтажную пластину внутреннего блока 1 2 3 12 см 2,3 м 12 см 15 см Выберите место монтажа внутреннего блока Определите положение отверстий для трубопроводов 5 6 Подключите трубопроводы Подключите провода 4 Сд...
Страница 40 - НЕ устанавливайте блок в следующих местах:; Этап 3. Крепление монтажной пластины к стене.
40 Перед установкой внутреннего блока проверьте этикетку на коробке изделия, чтобы убедиться, что модель внутреннего блока совпадает с моделью наружного блока. Этап 1. Выбор места установки. Перед установкой внутреннего блока необходимо выбрать подходящее место. При этом оно долж- но соответствовать...
Страница 41 - Правильное расположение монтажной пластины; Этап 4. Сверление отверстия в стене для коммуникаций.; Просверлите отверстие
41 Правильное расположение монтажной пластины Этап 4. Сверление отверстия в стене для коммуникаций. Определите расположение отверстия в стене в зависимости от положения монтажной панели. Просверлите отверстие ∅ 65 мм или ∅ 90 мм (в зависимости от модели). Убедитесь, что отверстие сверлится под небол...
Страница 42 - Этап 5. Подготовка к монтажу трубопроводов хладагента.; Шаг 1. Закрепите внутренний блок на монтажной пластине.; Сдвиньте вправо или влево
42 Если соединительная труба со стороны газа имеет ∅ 16 мм или более, отверстие в стене должно быть ∅ 90 мм. Этап 5. Подготовка к монтажу трубопроводов хладагента. Трубопровод хладагента находится внутри теплоизолирующего рукава, прикрепленного сзади блока. Перед прокладкой трубопровода через отверс...
Страница 43 - ратно и тщательно выполняйте подготовку труб.
43 Шаг 2. Подготовка блока к монтажу труб хладагента. 1. Используйте скобу или клин, чтобы поддержать устройство, тем самым предоставляя вам до- статочно места для подключения трубопроводов хладагента, сигнального кабеля и сливного шланга. Клин(скоба) 30° Шаг 3. Подсоедините трубопровод хладагента. ...
Страница 44 - штуцер потребует замены в условиях сервисного центра.; ПЕРЕД ВЫПОЛНЕНИЕМ ЛЮБЫХ ЭЛЕКТРИЧЕСКИХ РАБОТ; правилам и подключаться квалифицированным специалистом.
44 Плашка Медная труба Зажим Метка Конус Скоба Зажим Плашка «A» Гайка Медная труба Наружный диаметр, мм А, мм Максимально Минимально ∅ 6,35 1,3 0,7 ∅ 9,53 1,6 1,0 ∅ 12,7 1,8 1,0 ∅ 15,88 2,2 2,0 • Соедините соосно трубу и штуцер. Накрутите гайку рукой, без усилий. Если сразу же исполь- зовать гае...
Страница 46 - Подключите сигнальный кабель.; чивают большее пространство для подключения проводов.
46 Подключите сигнальный кабель. Сигнальный кабель обеспечивает связь между внутренним и внешним блоками. Перед подготов- кой кабеля к подключению необходимо выбрать правильный размер кабеля. • Откройте переднюю панель внутреннего блока, как показано на рисунке ниже, которые обеспе- чивают большее п...
Страница 47 - Подсоедините дренажный шланг.; допус кайте того, чтобы дренажная труба болталась.; Этап 9. Установка внутреннего блока
47 Этап 7. Подсоединение дренажного шланга. Подсоедините дренажный шланг. Внутренний блок имеет два отверстия для удаления конденсата. При необходимости изменить сторону выхода конденсата снимите заглушку с противоположной стороны дренажной ванночки, снимите дренажный шланг и установите его на место...
Страница 48 - Монтаж наружного блока
48 13. Монтаж наружного блока Установка блока осуществляется в соответствии с локальными нормами и правилами, которые могут несколько отличаться в разных регионах. • Устанавливайте наружный блок на дополнительные кронштейны для предотвращения вибра- ции и шумов. Опоры не поставляются в комплекте (оп...
Страница 49 - ЗАПРЕЩАЕТСЯ устанавливать агрегат в следующих местах:; будет мешать окружающим; Установка ветрозащитного экрана; Неверно; каждые 10 м вертикального расстояния.
49 ЗАПРЕЩАЕТСЯ устанавливать агрегат в следующих местах: • рядом с препятствиями, которые будут блокировать воздухозаборники и розетки; • вблизи улицы общего пользования, переполненных районов или там, где шум от оборудования будет мешать окружающим; • возле животных или растений, которые могут пост...
Страница 50 - При установке на крышу
50 Выясните, возможна ли установка на крышу или фасадные стены в вашем регионе. Установка в труднодоступном месте может затруднить дальнейшее обслуживание блока. Соединение между стеной и кронштейнами, а также между кронштейнами и кондиционером долж- но быть устойчивым, надежным и проверенным. При у...
Страница 51 - Электрические соединения; коквалифицированным персоналом.; ся к наружному блоку!
51 14. Электрические соединения Напряжение питания должно быть в диапазоне 90–110% от указанной в спецификации оборудо- вания. Все подключения должны выполняться согласно государственным и местным требованиям, высо- коквалифицированным персоналом. Оборудование должно быть подключено к индивидуальной...
Страница 52 - Заправка хладагентом; мы приведены в разделе «Удаление воздуха ваку умным насосом».; Удаление воздуха вакуумным насосом; му необходимо как минимум 2 часа.; Порядок действий; под давлением до 25 кг/см
52 15. Заправка хладагентом Внимание! Перед запуском кондиционера обязательно удалите воздух из кондиционера! В против ном случае воздух, оставшийся в системе, может вызвать сбои в работе кондиционера и при - вести к серьезным неисправностям! При работе с хладагентом R32 рекоменду ется исполь - зова...
Страница 53 - Извлеките заправочный шланг из сервисного порта.; длительное вакуумирование.
53 мается, откройте клапан на манометрическом коллекторе и продолжите вакуумирование еще 15 минут, закройте вентиль на манометрическом коллекторе. Подождите 5 минут, затем про- верьте, не изменилось ли давление в системе. При изменении давления в системе обратитесь к разделу «Проверка утечки газа» д...
Страница 54 - Дозаправка системы; Последовательность операций
54 Дозаправка системы Наружные блоки заправлены на заводе и рассчитаны на 5 м длины трассы. ДОПОЛНИТЕЛЬНОЕ КОЛИЧЕСТВО ХЛАДАГЕНТА В ЗАВИСИМОСТИ ОТ ДЛИНЫ ТРУБЫ Хладагент Жидкостная труба Ф6,35 > 5 м R32 12 г/м Произведите дозаправку системы расчетным количеством хладагента. Все вентили на манометри...
Страница 55 - Процедура проверки; Точки проверки обозначены на рисунке ниже.; более 20 минут, потребуется полная смена масла в компрессоре
55 Процедура проверки Порядок действий 1. Плотно закройте (завинтите) заглушки на всех портах наружного блока. 2. Проверьте с помощью течеискателя или мыльной пены отсутствие утечек в точках проверки. Точки проверки обозначены на рисунке ниже. • Точка проверки 1: место соединения трубопроводов с вну...
Страница 56 - Проверка утечек электроэнергии и хладагента; теме; Проверка электрических соединений перед тестовым запуском; Существует два способа проверки утечек хладагента:
56 16. Проверка утечек электроэнергии и хладагента Тестовый запуск выполняется только после выполнения следующих шагов: • проверка электробезопасности — проверьте все электрические соединения системы; • проверка утечки газа — проверьте все соединения фреонопроводов и убедитесь, что в сис теме отсутс...
Страница 57 - Тестовый запуск; Тестовый запуск должен выполняться 30 минут.; ЕСЛИ ТЕМПЕРАТУРА В ПОМЕЩЕНИИ НИЖЕ 17 °C
57 17. Тестовый запуск Тестовый запуск должен выполняться 30 минут. – Подключите питание к блоку. – Нажмите кнопку ON/OFF (ВКЛ/ВЫКЛ) на пульте дистанционного управления для включения кондиционера. – Нажмите кнопку MODE (режим) для просмотра следующих режимов: 1. COOL — установите на пульте наименьшу...
Страница 58 - оборудования и отказ в гарантийном ремонте!; Регламент технического обслуживания
58 18. Регламент технического обслуживания Каждый кондиционер нуждается в периодическом техническом обслуживании. Указанное обслу- живание может выполнить специально обученный персонал согласно данному регламенту. Внимание! Отсутствие периодического квалифицированного технического обслуживания либо ...
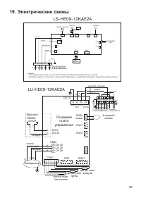
Страница 59 - Электрические схемы; Основная
59 19. Электрические схемы CN19 CN15 N_IN Красный Датчик температуры трубы CN12 Ýëåêòðîäâèãàòåëü Âíèìàíèå: 1. Ñõåìà ïðîâîäêè ïðåäíàçíà÷åíà òîëüêî äëÿ îáúÿñíåíèÿ. Ôàêòè÷åñêàÿ ôîðìà êîìïîíåíòîâ ìîæåò áûòü ðàçëè÷íîé. 2. Öâåò êàáåëÿ îòëè÷àåòñÿ â ñîîòâåòñòâèè ñî ñòàíäàðòàìè:IEC Ñòàíäàðò (êîðè÷í., ãîëóáîé...
Страница 60 - экологического законодательства.
60 20. Вывод из эксплуатации и утилизация оборудования Для вывода оборудования из эксплуатации необходимо его обесточить, произвести утилизацию хладагента с помощью специального оборудования и произвести демонтаж системы. Убедитесь, что выполнены все требования по технике безопасности. После разборк...
Страница 61 - Класс энергоэффективности оборудования; SEER
61 21. Класс энергоэффективности оборудования Для определения класса энергоэффективности инверторных систем является актуальным ис- пользование коэффициентов SEER и SCOP, приведенных ниже: Модель SEER / SCOP (класс энергоэффективности) LS/LU-HE09KAE2A 8,5 (A+++) / 4,6 (A++) LS/LU-HE12KAE2A 8,5 (A+++...
Страница 62 - Условия гарантии
62 22. Условия гарантии Принимая оборудование, заказчик (покупатель) должен убедиться в отсутствии явных поврежде- ний и в комплектности поставки. В случае повреждений или недоставки он должен немедленно уведомить об этом транспортную компанию, а также сделать соответствующую запись в транс- портной...
Страница 64 - Дата производства сплит-системы; зволяют определить дату производства и прочие данные.
64 23. Дата производства сплит-системы На внутреннем и наружном блоках под шильдой с наименованием и техническими параметрами блока имеется информация с серийным номером данного блока. Данные серийного номера по- зволяют определить дату производства и прочие данные. 2411321290793290165004 где xxxxxx...
Страница 65 - Место производства оборудования
65 24. Место производства оборудования Наименование изготовителя: GD Midea Air-Conditioning Equipment Co., Ltd Местонахождение изготовителя и информация для связи: Китай, Midea headquarter building, №6 Midea Avenue, Beijiao, Shunde, Foshan, Guangdong Импортер: ООО «ТРЕЙДКОН», ИНН 7838058932 Местонах...