Лемакс START-32 - Инструкция по эксплуатации

Лемакс START-32

Котел Лемакс START-32 - инструкция пользователя по применению, эксплуатации и установке на русском языке. Мы надеемся, она поможет вам решить возникшие у вас вопросы при эксплуатации техники.

Если остались дополнительные вопросы — свяжитесь с нами через контактную форму.

1 Страница 1
2 Страница 2
3 Страница 3
4 Страница 4
5 Страница 5
6 Страница 6
7 Страница 7
8 Страница 8
9 Страница 9
10 Страница 10
11 Страница 11
12 Страница 12
13 Страница 13
14 Страница 14
15 Страница 15
16 Страница 16
17 Страница 17
18 Страница 18
19 Страница 19
20 Страница 20
21 Страница 21
22 Страница 22
23 Страница 23
24 Страница 24
25 Страница 25
26 Страница 26
27 Страница 27
28 Страница 28
29 Страница 29
30 Страница 30
31 Страница 31
32 Страница 32
33 Страница 33
34 Страница 34
35 Страница 35
36 Страница 36
37 Страница 37
38 Страница 38
39 Страница 39
40 Страница 40
Страница: / 40

Содержание:

  • Страница 2 – УВАЖАЕМЫЙ ПОКУПАТЕЛЬ!; Мы благодарны Вам за то, что Вы выбрали продукцию торговой марки
  • Страница 3 – СОДЕРЖАНИЕ
  • Страница 4 – БЕЗОПАСНОСТЬ; Предупредительные знаки и сигнальные слова; Опасность для жизни в результате поражения током.; Внимание! Любое неправильное использование запрещено!; При наличии запаха газа в зданиях:
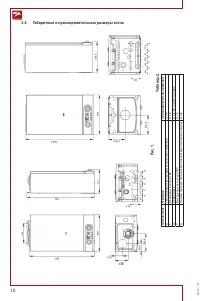
  • Страница 12 – Принципиальная схема циркуляции теплоносителя
  • Страница 16 – МОНТАЖ; правилами и прочими требованиями разрешительной документации.; рые должны соответствовать техническим характеристикам котла.; до них может дотянуться ребенок.; Наименование; струкции по технике безопасности:
  • Страница 21 – с минимальным расстоянием между контактами не менее 3 мм. Строго; ствует объему воды в контуре отопления.; ВНИМАНИЕ! Категорически запрещено включать котел в работу без; Особые указания при монтаже трубы дымоотвода:
  • Страница 28 – ОСМОТР И ТЕХНИЧЕСКОЕ ОБСЛУЖИВАНИЕ; Периодичность осмотра и обслуживания котла
  • Страница 31 – УСТРАНЕНИЕ НЕИСПРАВНОСТЕЙ; Коды ошибок; ГАРАНТИЙНЫЕ ОБЯЗАТЕЛЬСТВА
Загрузка инструкции

ПАСПОРТ И РУКОВОДСТВО ПО ЭКСПЛУАТАЦИИ

НАСТЕННЫЙ ГАЗОВЫЙ КОТЕЛ

«ЛЕМАКС» СЕРИИ START

"Загрузка инструкции" означает, что нужно подождать пока файл загрузится и можно будет его читать онлайн. Некоторые инструкции очень большие и время их появления зависит от вашей скорости интернета.

Краткое содержание

Страница 2 - УВАЖАЕМЫЙ ПОКУПАТЕЛЬ!; Мы благодарны Вам за то, что Вы выбрали продукцию торговой марки

2 Start В. 1.02 УВАЖАЕМЫЙ ПОКУПАТЕЛЬ! Мы благодарны Вам за то, что Вы выбрали продукцию торговой марки «Лемакс» . Теперь Вы являетесь счастливым обладателем высокоэффективного котла, который при правильной установке, эксплуатации и уходе снизит затраты на отопление Вашего жилья и прослужит Вам долги...

Страница 3 - СОДЕРЖАНИЕ

3 Start В. 1.02 СОДЕРЖАНИЕ 1. БЕЗОПАСНОСТЬ ..........................................................................................................................4 2. ДОК УМЕНТАЦИЯ .......................................................................................................................

Страница 4 - БЕЗОПАСНОСТЬ; Предупредительные знаки и сигнальные слова; Опасность для жизни в результате поражения током.; Внимание! Любое неправильное использование запрещено!; При наличии запаха газа в зданиях:

4 Start В. 1.02 1. БЕЗОПАСНОСТЬ 1.1. Предупредительные знаки Предупредительные указания классифицированы по степени возможной опасности с помощью предупредительных знаков и сигнальных слов следующим образом: Предупредительные знаки и сигнальные слова ОПАСНОСТЬ! Непосредственная опасность для жизни и...

Характеристики

Другие модели - Котлы Лемакс

Все котлы Лемакс