Лемакс Лидер-40 - Инструкция по эксплуатации

Лемакс Лидер-40

Котел Лемакс Лидер-40 - инструкция пользователя по применению, эксплуатации и установке на русском языке. Мы надеемся, она поможет вам решить возникшие у вас вопросы при эксплуатации техники.

Если остались дополнительные вопросы — свяжитесь с нами через контактную форму.

1 Страница 1
2 Страница 2
3 Страница 3
4 Страница 4
5 Страница 5
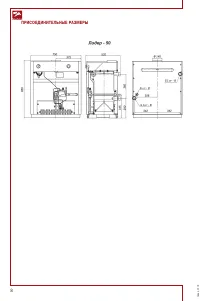
6 Страница 6
7 Страница 7
8 Страница 8
9 Страница 9
10 Страница 10
11 Страница 11
12 Страница 12
13 Страница 13
14 Страница 14
15 Страница 15
16 Страница 16
17 Страница 17
18 Страница 18
19 Страница 19
20 Страница 20
21 Страница 21
22 Страница 22
23 Страница 23
24 Страница 24
25 Страница 25
26 Страница 26
27 Страница 27
28 Страница 28
Страница: / 28

Содержание:

  • Страница 2 – УВАЖАЕМЫЙ ПОКУПАТЕЛЬ!; Мы благодарны Вам за то, что Вы выбрали продукцию торговой марки
  • Страница 3 – СОДЕРЖАНИЕ
  • Страница 4 – с газогорелочным устройством.; ТЕХНИЧЕСКИЕ ХАРАКТЕРИСТИКИ; – изменять конструкцию котла или его частей
  • Страница 9 – тяги зажигать газогорелочное устройство запрещается.; ПОРЯДОК РАБОТЫ; ручку управления против часовой стрелки в позицию розжига (
  • Страница 13 – ку управления по часовой стрелке в позицию «выключено» (; ) и только затем начинайте; Пьезорозжиг
  • Страница 15 – УКАЗАНИЯ ПО МОНТАЖУ И ТЕХНИЧЕСКОМУ ОБСЛУЖИВАНИЮ
  • Страница 16 – ПРИМЕРНАЯ СХЕМА МОНТАЖА СИСТЕМЫ ОТОПЛЕНИЯ *
  • Страница 18 – ства или организация, обслуживающая бытовые газовые приборы.; ГАРАНТИЙНЫЕ ОБЯЗАТЕЛЬСТВА; несоблюдения правил установки и эксплуатации; ПРАВИЛА УПАКОВКИ, ТРАНСПОРТИРОВКИ И ХРАНЕНИЯ
  • Страница 20 – ВОЗМОЖНЫЕ НЕИСПРАВНОСТИ И МЕТОДЫ ИХ УСТРАНЕНИЯ; Наименование
  • Страница 21 – И ПРОФИЛАКТИЧЕСКОГО ОБСЛУЖИВАНИЯ; Дата; При ежегодном техническом обслуживании котла необходимо:
  • Страница 22 – КОНТРОЛЬНЫЕ ТАЛОНЫ; КОНТРОЛЬНЫЙ ТАЛОН НА МОНТА Ж; СВЕДЕНИЯ ОБ УТИЛИЗАЦИИ
Загрузка инструкции

ЧУГУННЫЙ ГАЗОВЫЙ КОТЕЛ «ЛЕМАКС»

СЕРИИ «ЛИДЕР»

ПАСПОРТ И РУКОВОДСТВО ПО ЭКСПЛУАТАЦИИ

"Загрузка инструкции" означает, что нужно подождать пока файл загрузится и можно будет его читать онлайн. Некоторые инструкции очень большие и время их появления зависит от вашей скорости интернета.

Краткое содержание

Страница 2 - УВАЖАЕМЫЙ ПОКУПАТЕЛЬ!; Мы благодарны Вам за то, что Вы выбрали продукцию торговой марки

2 Лидер V 2.19 УВАЖАЕМЫЙ ПОКУПАТЕЛЬ! Мы благодарны Вам за то, что Вы выбрали продукцию торговой марки Лемакс . Теперь Вы являетесь счастливым обладателем высокоэффективного котла, который при правильной установке, эксплуатации и уходе снизит затраты на отопление Вашего жилья и про-служит Вам долгие ...

Страница 3 - СОДЕРЖАНИЕ

3 Лидер V 2.19 СОДЕРЖАНИЕ 1. КОМПЛЕКТНОСТЬ .......................................................................................................... 4 2. ОБЩИЕ УКАЗАНИЯ ......................................................................................................... 4 3. ТЕХНИЧЕСКИЕ ХАРАКТЕ...

Страница 4 - с газогорелочным устройством.; ТЕХНИЧЕСКИЕ ХАРАКТЕРИСТИКИ; – изменять конструкцию котла или его частей

4 Лидер V 2.19 1. КОМПЛЕКТНОСТЬ 1.1. Отопительный котел с установленным на нем газогорелочным устройством.1.2. Упаковочная тара.1.3. Руководство по эксплуатации котла. 2. ОБЩИЕ УКАЗАНИЯ 2.1. Котлы чуг унные отопительные типа «Лидер» предназначены д ля отопления квар- тир, жилых домов, кот тед жей, з...

Характеристики

Другие модели - Котлы Лемакс

Все котлы Лемакс