Страница 2 - УВАЖАЕМЫЙ ПОКУПАТЕЛЬ!; Мы благодарны Вам за то, что Вы выбрали продукцию торговой марки
2 Классик В. 1.03 УВАЖАЕМЫЙ ПОКУПАТЕЛЬ! Мы благодарны Вам за то, что Вы выбрали продукцию торговой марки Лемакс . Теперь Вы являетесь счастливым обладателем высокоэффективного котла, который при правильной установке, эксплуатации и уходе снизит затраты на отопление Вашего жилья и про-служит Вам долг...
Страница 3 - СОДЕРЖАНИЕ
3 СОДЕРЖАНИЕ 1. ОБЩИЕ УКАЗАНИЯ .......................................................................................................... 42. КОМПЛЕКТНОСТЬ ............................................................................................................ 43. ТЕХНИЧЕСКИЕ ХАРАКТЕРИСТИКИ .......
Страница 4 - серии Classic; предназначены для отопления и горя-; Котел соответствует всем требованиям без-; с газогорелочным устройством.
4 Классик В. 1.03 1. ОБЩИЕ УКАЗАНИЯ 1.1. Прежде чем пользоваться отопительным котлом, ознакомьтесь с настоящим руковод- ством. 1.2. Работы по монта ж у, инструк та ж по эксплуатации, запуск в работ у, про- филак тическое обслу живание и ремонт котла производятся специали-зированной организацией и ме...
Страница 11 - ТРЕБОВАНИЯ БЕЗОПАСНОСТИ; Категорически; запрещается самовольно устанавливать котел и запускать его в ра-
11 4. ТРЕБОВАНИЯ БЕЗОПАСНОСТИ 4.1. Никогда не используйте котел без подсоединения к дымоходу.4.2. Перед началом работ котла убедитесь в том, что дымоход не заблокирован.4.3. Необходимо обеспечить достаточную тягу в дымоходе. нет тяги (Не используйте котел!) слабая тяга (Не используйте котел!) недост...
Страница 12 - УСТРОЙСТВО КОТЛА; Котёл «Classic» с автоматикой 630 EUROSIT
12 Классик В. 1.03 5. УСТРОЙСТВО КОТЛА 5.1. Котел представляет собой сварную конструкцию, образующую по всему периметру водяную рубашку, в которую помещен контур горячего водоснабжения, изготовлен-ный из медной трубки. В нижней части котла, в проеме топочной камеры, установ-лено газогорелочное устро...
Страница 13 - МОНТАЖ, ПОДГОТОВКА К РАБОТЕ; Точное количество теплоносителя определяется в проекте на; тяги зажигать газогорелочное устройство запрещается.
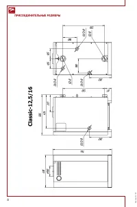
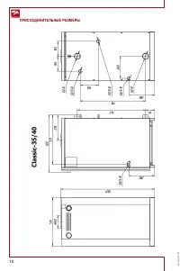
13 6. МОНТАЖ, ПОДГОТОВКА К РАБОТЕ 6.1. Объем помещения, в котором устанавливается котел, должен быть не менее 8 м 3 . Расстояние между облицовкой котла и стенами должно быть не менее:– 150 мм сзади;– 100 мм справа и слева;– 1000 мм спереди. 6.2. В помещении, в котором устанавливается котел, необходи...
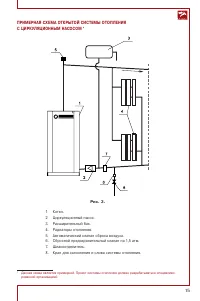
Страница 14 - ПРИМЕРНАЯ СХЕМА ОТКРЫТОЙ СИСТЕМЫ ОТОПЛЕНИЯ *; предохранительный клапан.
14 Классик В. 1.03 ПРИМЕРНАЯ СХЕМА ОТКРЫТОЙ СИСТЕМЫ ОТОПЛЕНИЯ * * Данная схема является примерной. Проект системы отопления должен разрабатываться специализи- рованной организацией Рис. 2. 1. Котел.2. Расширительный бачок.3. Радиатор отопления. 4. Кран для слива и заполнения отопительной системы. 5....
Страница 17 - ПОРЯДОК РАБОТЫ; нуть ручку управления против часовой стрелки в позицию розжига (
17 7. ПОРЯДОК РАБОТЫ Для включения котла необходимо проверить заполнение котла и системы отопления водой, проверить наличие тяги, проконтролировать давление газа в газопроводе – оно должно быть не более 5000 Па. Затем выбрать нужный порядок действий, опре-деляемый мощностью котла и применяемой автом...
Страница 18 - ) и только затем начинайте
18 Классик В. 1.03 Для котлов мощностью от 25 до 30 кВт с газогорелочным устройством на основе итальянской автоматики «710 MINISIT» и инжекционной горелки Polidoro (см. рис. 6)ВНИМАНИЕ! В любом случае, при включении газового клапана ВСЕГДА поворачивайте ручку ре-гулировки температуры в позицию «выкл...
Страница 20 - ПРАВИЛА ЭКСПЛУАТАЦИИ, ТЕХНИЧЕСКОЕ ОБСЛУЖИВАНИЕ; ная верхняя крышка облицовки.
20 Классик В. 1.03 СХЕМА ПОДКЛЮЧЕНИЯ КОМНАТНОГО РЕГУЛЯТОРА ТЕМПЕРАТУРЫ (ДЛЯ КОТЛОВ, ОСНАЩЁННЫХ АВТОМАТИКОЙ БЕЗОПАСНОСТИ 820NOVA) 8. ПРАВИЛА ЭКСПЛУАТАЦИИ, ТЕХНИЧЕСКОЕ ОБСЛУЖИВАНИЕ 8.1. Не сливайте воду из котла и системы отопления в неотопительный период, т. к. это приводит к ускоренному корродирован...
Страница 21 - ГАРАНТИЙНЫЕ ОБЯЗАТЕЛЬСТВА; тационных характеристик.
21 9. ГАРАНТИЙНЫЕ ОБЯЗАТЕЛЬСТВА 9.1. Гарантийный срок эксплуатации котла при выполнении обязательного ежегодного профилактического обслуживания и соблюдении потребителем условий транспор-тировки, хранения, монтажа и эксплуатации - 36 месяцев со дня продажи.* 9.2. В случае отказа в работе котла в теч...
Страница 23 - ВОЗМОЖНЫЕ НЕИСПРАВНОСТИ И МЕТОДЫ ИХ УСТРАНЕНИЯ; Наименование
23 12. ВОЗМОЖНЫЕ НЕИСПРАВНОСТИ И МЕТОДЫ ИХ УСТРАНЕНИЯ Наименование неисправностей Вероятная причина Метод устранения 1. Отключается основная горелка А. Недостаточное разрежение в дымоходе, забит дымоходБ. Нарушена регулировка исхо-дящего давления газа с газовой автоматики на основную и пилот-ную гор...
Страница 24 - И ПРОФИЛАКТИЧЕСКОГО ОБСЛУЖИВАНИЯ; Дата; При ежегодном техническом обслуживании котла необходимо:; Проверить состояние дымохода и силу тяги в нем
24 Классик В. 1.03 13. ОТМЕТКИ О ПРОВЕДЕНИИ ЕЖЕГОДНОГО ТЕХНИЧЕСКОГО И ПРОФИЛАКТИЧЕСКОГО ОБСЛУЖИВАНИЯ Дата Наименование организации Подпись, штамп При ежегодном техническом обслуживании котла необходимо: 1. Проверить состояние дымохода и силу тяги в нем; 2. Проверить и при необходимости очистить от с...
Страница 25 - КОНТРОЛЬНЫЕ ТАЛОНЫ; КОНТРОЛЬНЫЙ ТАЛОН НА МОНТА Ж
25 14. КОНТРОЛЬНЫЕ ТАЛОНЫ КОНТРОЛЬНЫЙ ТАЛОН НА МОНТА Ж 1. Дата монтажа __________________________________________________________________________ 2. Кем произведен монтаж ________________________________________________________________ ________________________________________________________________...
Страница 26 - СВЕДЕНИЯ ОБ УТИЛИЗАЦИИ
26 Классик В. 1.03 15. СВЕДЕНИЯ ОБ УТИЛИЗАЦИИ После завершения эксплуатации котёл необходимо демонтировать, выполнив следу-ющие операции:– перекрыть запорные краны на трубопроводах системы отопления, слить воду из котла (при отсутствии запорных кранов слить воду из всей системы отопления); – перекры...
Страница 28 - СЕРВИСНЫЕ ЦЕНТРЫ
28 Классик В. 1.03 16. СЕРВИСНЫЕ ЦЕНТРЫ Регион Населённый пункт Сервисный центр Телефонный номер Алтайский край Барнаул Баранаулгоргаз (3854) 30-44-04 Барнаул Газпром газораспред. Барнаул (3852) 28-20-00 Барнаул Единая Служба Газа 8-800-700-18-32, 8-800-250-18-32 Бийск Баранаулгоргаз (3852) 28-40-00...