Котел ZOTA Енисей 23кВт - инструкция пользователя по применению, эксплуатации и установке на русском языке. Мы надеемся, она поможет вам решить возникшие у вас вопросы при эксплуатации техники.
Если остались вопросы, задайте их в комментариях после инструкции.
"Загружаем инструкцию", означает, что нужно подождать пока файл загрузится и можно будет его читать онлайн. Некоторые инструкции очень большие и время их появления зависит от вашей скорости интернета.

стр. 7
5.3. В нижней части аппарата вместо заглушки (поз.10) может
устанавливаться блок ТЭН 3…9 кВт. В случае установки блока ТЭН его
подключают к электрической сети через панель управления ПУ ЭВТ-И1,
которая позволяет изменять мощность нагревательного элемента тремя
ступенями и поддерживать заданную температуру теплоносителя в
системе отопления и воздуха в помещении. Возможно подключение панели
управления как от однофазной, так и от трехфазной сети переменного тока.
Датчик температуры панели управления устанавливается в гнездо (поз.
17) на задней стенке аппарата.
Термометр, тягорегулятор, блок-ТЭН и панель управления не входят в
комплект аппарата и поставляются по отдельному заказу.
6. Требования к дымовой трубе и помещению котельной
6.1. Требования к помещению котельной
6.1.1. Аппарат должен размещаться в отдельном помещении котельной.
6.1.2. Входная дверь в котельную должна открываться наружу, быть изготовлена
из негорючих материалов и иметь минимальную ширину проема 0,8 м.
6.1.3. Помещение котельной должно освещаться искусственным и дневным
светом. Наличие естественного освещения рекомендуется.
6.1.4. Помещение котельной обязательно должно быть оборудовано
приточной и вытяжной вентиляцией с естественным притоком свежего воздуха,
с производительностью, способной как минимум восполнить на 10% больший
расход воздуха, чем при Q
N
устанавливаемого аппарата (табл. 1 п.п.15).
6.1.5. Минимальная допустимая высота потолков в помещении котельной
2,2 м. Допускается снижение высоты потолков в помещении котельной до
1,8 м при наличии функционирующей принудительной приточно-вытяжной
вентиляции.
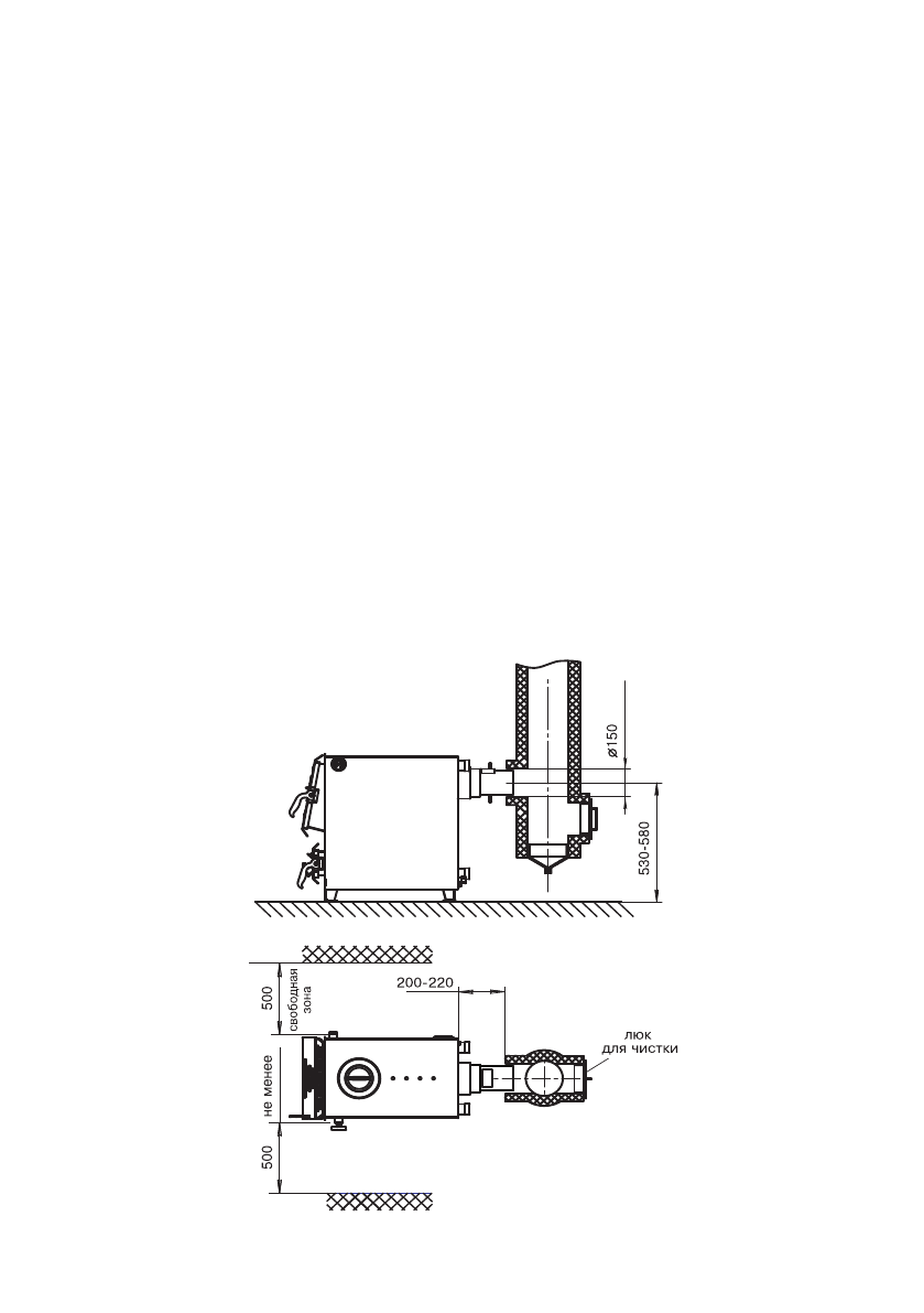
Рис.2 Схема установки аппарата
Содержание
- 8 Рис.1 Конструкция отопительного аппарата
 - 10 Рис.3 Варианты установки дымовой трубы
 - 19 Характерные неисправности и методы их устранения.
 - 21 Свидетельство о приемке и продаже; признан годным для эксплуатации.; Сведения об установке; Документ, подтверждающий право проведения работ:
 - 22 Учет технического обслуживания аппарата.
 

 
 
 
 
 
 
 
 
 
 
 
 
 
 
 
 
 
 
 
 
 
 
 
 



