Котел Zerten SE-7,5 - инструкция пользователя по применению, эксплуатации и установке на русском языке. Мы надеемся, она поможет вам решить возникшие у вас вопросы при эксплуатации техники.
Если остались вопросы, задайте их в комментариях после инструкции.
"Загружаем инструкцию", означает, что нужно подождать пока файл загрузится и можно будет его читать онлайн. Некоторые инструкции очень большие и время их появления зависит от вашей скорости интернета.

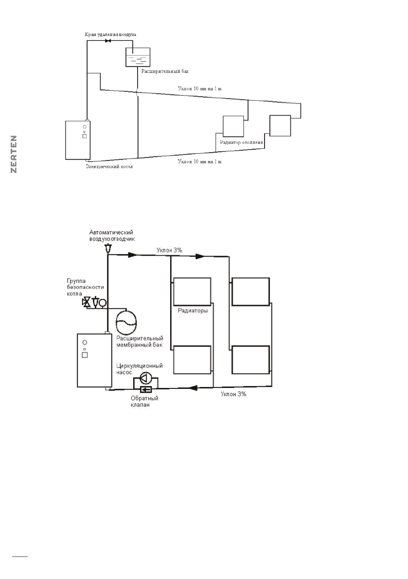
Для улучшения циркуляции теплоносителя в системе отопления входной патрубок должен
быть нижней точкой отопительной системы.
Для лучшей циркуляции воды при использовании электрического котла в открытой системе
отопления желательно установить в систему циркуляционный насос.
Трубопроводы выполняются из водопроводных труб. Соединение труб может производиться на
резьбе и сварке.
Рекомендуемые диаметры трубопроводов систем отопления с естественной циркуляцией:
- главного стояка……………………………………..........….1 1/2” ..2”
- разводящие и сборные магистрали………………….1 1/4”..1 1/2”
- разводка к радиаторам……………………….....………..3/4”..1”
Рекомендуемые установочные размеры для радиаторов при монтаже систем отопления:
-от стен до радиатора не менее………………...………..3 см
-от пола до низа радиатора не менее………………….10см
-от верха радиатора до подоконника…………..………10см
При разводке труб стояки должны устанавливаться вертикально, а горизонтальные
трубопроводы прокладываться с уклоном для выпуска воздуха из системы. Величина уклона
должна быть не менее 10 мм на 1 погонный метр трубопровода в сторону нагревательного
прибора.
Предварительно промытую систему заполнить водой и проверить герметичность всех
соединений, при необходимости произвести подтяжку резьбовых соединений.
7. ПОРЯДОК РАБОТЫ
Проверьте заполнение системы водой, открыв кран удаления воздуха. При этом в
расширительном баке должна находиться вода. Включить выключатели на требуемую
мощность. Установить ручкой терморегулятора необходимую температуру воды. После
достижения заданной температуры произойдет автоматическое отключение нагрева.
Включение нагрева после снижения температуры ниже заданной – автоматическое. Для
увеличения нагрева поверните ручку терморегулятора по часовой стрелке, для уменьшения –
против часовой стрелки.
8. ТЕХНИЧЕСКОЕ ОБСЛУЖИВАНИЕ
Работы по техническому обслуживанию должны выполняться специалистом, имеющим
квалификационную группу по электробезопасности не менее третьей при отключенном от сети
электрическом котле.
При эксплуатации электрического котла необходимо ежедневно наблюдать за его работой.
Уровень воды в расширительном баке не должен опускаться до дна, его необходимо
поддерживать, периодически пополняя водой.
В зимнее время, если потребуется прекратить обогрев на срок более суток, необходимо, во
избежание замерзания, слить воду из отопительной системы. Слитую воду целесообразно
использовать повторно, особенно при повышенной жесткости воды.
Перед началом эксплуатации снимите нижнюю крышку, проверьте целостность контактных
соединений и заземления, при необходимости подтяните гайки, винты и разъемы, убедитесь в
надежности кабельного зажима.
Перед отопительным сезоном необходимо произвести техническое обслуживание
электрического котла. Проверьте состояние и крепление проводников и зажимов, состояние
электрооборудования, очистить его от загрязнения. Для удаления накипи следует
периодически проводить очистку блока ТЭНов, используя препарат «Антинакипин» или ему
подобные моющие средства.
9. ПРАВИЛА ХРАНЕНИЯ И ТРАНСПОРТИРОВКИ
Электрический котел должен храниться в упаковке производителя в закрытых помещениях
при температуре от +5
0
С до +40
0
С и относительной влажности до 80%.
7
6
Р
УК
ОВО
ДС
ТВО ПО ЭК
СПЛУ
АТ
АЦИИ
Р
УК
ОВО
ДС
ТВО ПО ЭК
СПЛУ
АТ
АЦИИ
Рис. 4 – Установка электрического котла с открытой системой отопления
Рис. 5 – Установка электрического котла с закрытой системой отопления