Котел sunsystem WBS-N AC 40 KW с интеллектуальным контроллером и вентилятором - инструкция пользователя по применению, эксплуатации и установке на русском языке. Мы надеемся, она поможет вам решить возникшие у вас вопросы при эксплуатации техники.
Если остались вопросы, задайте их в комментариях после инструкции.
"Загружаем инструкцию", означает, что нужно подождать пока файл загрузится и можно будет его читать онлайн. Некоторые инструкции очень большие и время их появления зависит от вашей скорости интернета.

14
Ру
сск
ий
Технический паспорт. Руководство пользователя
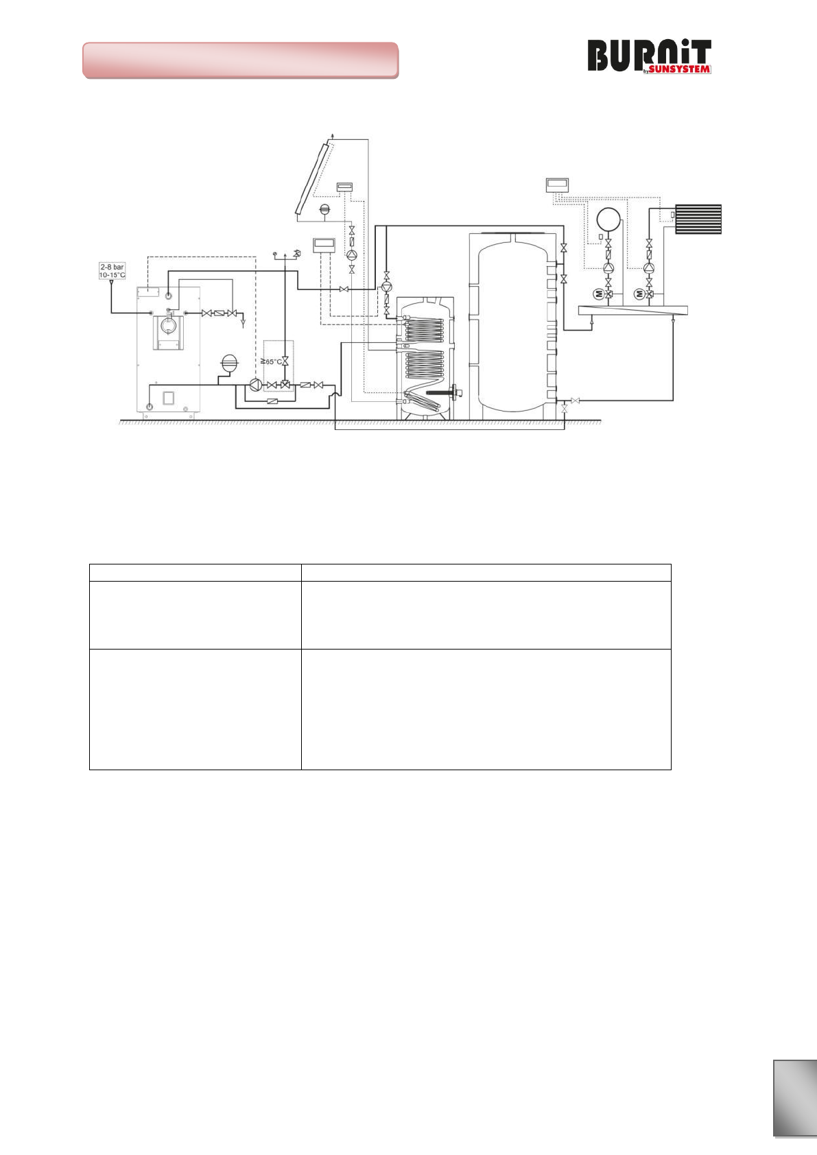
Диаграмма 9. Соединение BURNiT WBS Activeкотла с солнечным резервуаром SON,
резервуарным отсеком P, плоским коллектором PK и 3-ходвым клапаном.
8. Заполнение отопительной установки
Таблица
6
Проблема
Предотвращение
Возможные
повреждения
установки из-за деформаций в
материале вызваны перепады
температур
Заполните отопительный прибор только в холодных
условиях (температура на входе не должна превышать 40 °
C).
Опасность
повреждения
установки
из-за
накопления
отложений
Образование конденсата и
отложение смол может привести
к сокращению срока службы
котла.
Не используйте отопительный котел в течение
длительного периода времени в щадящем режиме
- Температура на входе в котел должна быть не менее 65
°C, температура воды в котле должна быть от 80 до 85
°C.
- Использование котла на короткий период для нагрева
горячей воды в летний период.
9. Эксплуатация котла
9.1. Загрузка и розжиг котла
При первоначальном зажигании котла образуется конденсат, который впоследствие вытекает
(в этом случае не идет речь о повреждении котла).
Топливо заряжается через верхнюю камеру сгорания. Рекомендуется, чтобы длина кусков
дерева была равна длине камеры сгорания. Куски необходимо располагать рядышком так,
чтобы между ними почти не было воздушных промежутков. Обе дверцы котла должны быть
закрытыми и уплотненными. Включается контроллер, задается максимальная температура
котла и в зависимости от применяемого топлива, посредством газо-анализатора, регулируются
мощность вентилятора и тяга дымохода.
При сгорании влажного древесного материала котел работает неэффективно, в результате чего
проявляются следующие последствия:
Содержание
- 2 Sunsystem Ekaterinburg
- 3 - Важные рекомендации и предупреждения, касающиеся условий; ИНФОРМАЦИЯ; – Важная информация о надлежащей эксплуатации данного продукта.; Используйте только оригинальные запасные части Burnit; при горении горючих материалов и жидкостей
- 4 ОПАСНОСТЬ интоксикации или взрыва; инструкцией по эксплуатации.
- 5 Составной диспетчер; Эффективность; Надежность и безопасность.; Высокая температура, обменивающая трубчатый; Предназначен для сжигания древесного топлива с возможностью; Устройство безопасности теплообменника
- 7 Проверьте целостность упаковки при доставке.; Монтаж отопительного котла
- 8 Снимите упаковку, не загрязняя окружающую среду; Проверьте герметичность дверей; Подключение котла к дымоходу
- 9 Диаграмма 4. Размер котла и параметры дымохода
- 10 Безопасное соединение с теплообменником
- 11 Устранение неисправностей; В связи с открытыми соединениями; Слишком низкий выход
- 13 Соединение; BURNiT WBS Active котла с комбинированным баком KSC2, плоским
- 15 Поддерживайте рабочую температуру от 75 °C до 85 °C.; Важные рекомендации для длительной и правильной работы котла; уполномоченным установщиком
- 16 ЭЛЕКТРООБОРУДОВАНИЕ,; находящеесяпод напряжением; Навигационная клавиша вверх/плюс
- 17 . Цикл начинается, когда вы активируете функцию «запустить» в меню; Режим надзора; – если температура котла падает на 2 ̊С ниже порога разжигания и не в
- 18 Ручной режим; Нажатие OPTIONS Включение / выключение водяного насоса CH.
- 19 случае насос
- 21 до 62 ̊С, для предотвращения перегрева котла. Функция приоритета
- 23 Эта функция позволяет пользователю изменять языковую версию; Теплозащита
- 24 Автоматический проверяющий датчик.; Функции регулятора дополнительной защиты в случае повреждения; Защита котла; Эта защитная функция используется только в режиме приоритета
- 25 Основные характеристики
- 28 ПЕРЕРАБОТКА И УТИЛИЗАЦИЯ ОТХОДОВ