Котел sunsystem WBS-N AC 40 KW с интеллектуальным контроллером и вентилятором - инструкция пользователя по применению, эксплуатации и установке на русском языке. Мы надеемся, она поможет вам решить возникшие у вас вопросы при эксплуатации техники.
Если остались вопросы, задайте их в комментариях после инструкции.
"Загружаем инструкцию", означает, что нужно подождать пока файл загрузится и можно будет его читать онлайн. Некоторые инструкции очень большие и время их появления зависит от вашей скорости интернета.

13
Ру
сск
ий
Технический паспорт. Руководство пользователя
Такие подключения должен выполнять техник / сервис магазин, уполномоченный для
таких операций
.
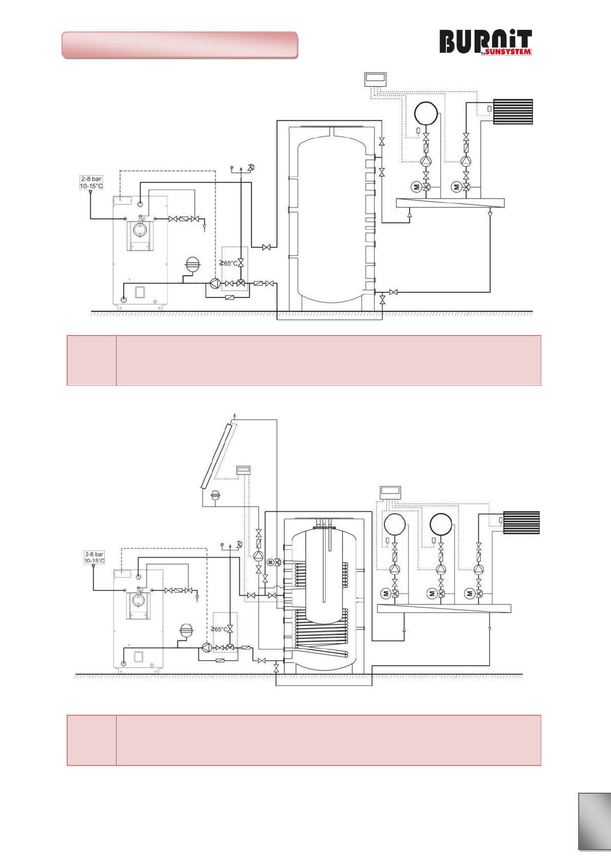
Диаграмма 8.
Соединение
BURNiT WBS Active котла с комбинированным баком KSC2, плоским
коллектором PK и трехходовым клапаном
Такие подключения должен выполнять техник / сервис магазин, уполномоченный для
таких операций
.
Sunsystem Ekaterinburg
+7 (343) 269-35-37
www.sunsystemburnit.ru
Содержание
- 2 Sunsystem Ekaterinburg
- 3 - Важные рекомендации и предупреждения, касающиеся условий; ИНФОРМАЦИЯ; – Важная информация о надлежащей эксплуатации данного продукта.; Используйте только оригинальные запасные части Burnit; при горении горючих материалов и жидкостей
- 4 ОПАСНОСТЬ интоксикации или взрыва; инструкцией по эксплуатации.
- 5 Составной диспетчер; Эффективность; Надежность и безопасность.; Высокая температура, обменивающая трубчатый; Предназначен для сжигания древесного топлива с возможностью; Устройство безопасности теплообменника
- 7 Проверьте целостность упаковки при доставке.; Монтаж отопительного котла
- 8 Снимите упаковку, не загрязняя окружающую среду; Проверьте герметичность дверей; Подключение котла к дымоходу
- 9 Диаграмма 4. Размер котла и параметры дымохода
- 10 Безопасное соединение с теплообменником
- 11 Устранение неисправностей; В связи с открытыми соединениями; Слишком низкий выход
- 13 Соединение; BURNiT WBS Active котла с комбинированным баком KSC2, плоским
- 15 Поддерживайте рабочую температуру от 75 °C до 85 °C.; Важные рекомендации для длительной и правильной работы котла; уполномоченным установщиком
- 16 ЭЛЕКТРООБОРУДОВАНИЕ,; находящеесяпод напряжением; Навигационная клавиша вверх/плюс
- 17 . Цикл начинается, когда вы активируете функцию «запустить» в меню; Режим надзора; – если температура котла падает на 2 ̊С ниже порога разжигания и не в
- 18 Ручной режим; Нажатие OPTIONS Включение / выключение водяного насоса CH.
- 19 случае насос
- 21 до 62 ̊С, для предотвращения перегрева котла. Функция приоритета
- 23 Эта функция позволяет пользователю изменять языковую версию; Теплозащита
- 24 Автоматический проверяющий датчик.; Функции регулятора дополнительной защиты в случае повреждения; Защита котла; Эта защитная функция используется только в режиме приоритета
- 25 Основные характеристики
- 28 ПЕРЕРАБОТКА И УТИЛИЗАЦИЯ ОТХОДОВ