STOUT 9 кВт - Инструкция по эксплуатации - Страница 19

Котел STOUT 9 кВт - инструкция пользователя по применению, эксплуатации и установке на русском языке. Мы надеемся, она поможет вам решить возникшие у вас вопросы при эксплуатации техники.

Если остались вопросы, задайте их в комментариях после инструкции.

"Загружаем инструкцию", означает, что нужно подождать пока файл загрузится и можно будет его читать онлайн. Некоторые инструкции очень большие и время их появления зависит от вашей скорости интернета.
Страница:
/ 36
Загружаем инструкцию
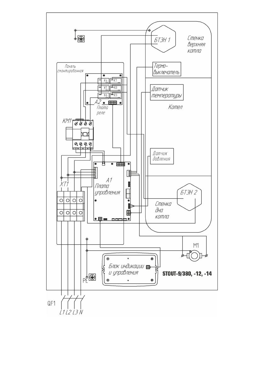
background image

Рисунок 13

Схема подключения 

SEB-0001-0000

09 к сети 220 В.

Рисунок 14

Схема подключения 

SEB-0001-000009÷SEB-0001-0000

14 к сети 380 В.

- 16 -

- 17 -

Полезные видео

Характеристики

Оцените статью
tehnopanorama.ru
Остались вопросы?

Не нашли свой ответ в руководстве или возникли другие проблемы? Задайте свой вопрос в форме ниже с подробным описанием вашей ситуации, чтобы другие люди и специалисты смогли дать на него ответ. Если вы знаете как решить проблему другого человека, пожалуйста, подскажите ему :)

Задать вопрос

  1. Геннадий

    котел STOUT 9 кВт не подымает температуру более 42 градусов

    Ответить
Часто задаваемые вопросы
Как посмотреть инструкцию к STOUT 9 кВт?
Необходимо подождать полной загрузки инструкции в сером окне на данной странице
Руководство на русском языке?
Все наши руководства представлены на русском языке или схематично, поэтому вы без труда сможете разобраться с вашей моделью
Как скопировать текст из PDF?
Чтобы скопировать текст со страницы инструкции воспользуйтесь вкладкой "HTML"