Котел STOUT 12 кВт - инструкция пользователя по применению, эксплуатации и установке на русском языке. Мы надеемся, она поможет вам решить возникшие у вас вопросы при эксплуатации техники.
Если остались вопросы, задайте их в комментариях после инструкции.
"Загружаем инструкцию", означает, что нужно подождать пока файл загрузится и можно будет его читать онлайн. Некоторые инструкции очень большие и время их появления зависит от вашей скорости интернета.
Загружаем инструкцию

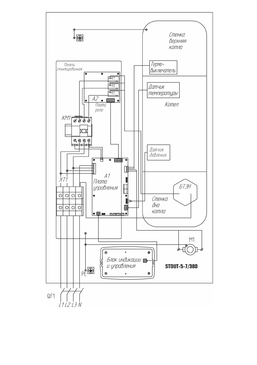
Рисунок 12
Схема подключения
SEB-0001-000005÷SEB-0001-0000
07 к сети 380 В.
Рисунок 15
Схема подключения
SEB-0001-0000
18
÷SEB-0001-0000
27.
- 18 -
- 15 -
Содержание
- 4 IEK; Сведения о сертификации
- 5 TERMOSET
- 6 Рисунок 2
- 7 Рисунок 3
- 8 Расположение на плате управления разъёмов для подключения; светодиоды индикации:; Гарантии изготовителя
- 9 XT; Правила хранения и транспортирования
- 10 Окончание работы; Техническое обслуживание; Рисунок 5; «ESC
- 11 NTC —; Тгвс; Версия ПО; НИЗКОЕ ДАВЛЕНИЕ; ДАТЧ; ведомый; комнатный
- 12 Графики динамики уличной и комнатной температур воздуха.; Требования безопасности; Т воды; ТЭНов; Туличн; МЕНЮ УСТАНОВКИ; СЕРВИСНОЕ МЕНЮ; OK
- 13 ВКЛ; Подготовка к работе; Монтаж и подключение
- 14 Габаритные и присоединительные размеры прибора.
- 15 согласно ПУЭ и ППБ; Заполнение отопительной системы.; Название прибора; Структура и содержание меню установок.; Отображение на экране режимов работы прибора.
- 16 Схема подключения; Порядок работы; Характеристика режимов работы: