Котел SIME SOLIDA 3 на твердом топливе - инструкция пользователя по применению, эксплуатации и установке на русском языке. Мы надеемся, она поможет вам решить возникшие у вас вопросы при эксплуатации техники.
Если остались вопросы, задайте их в комментариях после инструкции.
"Загружаем инструкцию", означает, что нужно подождать пока файл загрузится и можно будет его читать онлайн. Некоторые инструкции очень большие и время их появления зависит от вашей скорости интернета.

44
IT
PT
GB
SL
DK
RO
RUS
FR
BE
ES
DE
HU
3.1
КОНТРОЛЬ ПЕРЕД ЗАПУСКОМ
Перед
включением
котла
необходимо
предусмотреть нижеследующее:
– Система, к которой подключен котел,
должна иметь расширительный бак
открытого типа (Чертеж 10).
– Труба,
соединяющая
котел
с
расширительным баком, по диаметру
должна соответствовать нормам.
– При включенном котле насос нагрева
должен непрерывно работать.
– Работа насоса не должна прерываться по
причине срабатывания климатического
термостата.
– Если система оборудована смесительным
тройным или четверным клапаном, то этот
клапан должен быть постоянно открыт по
отношению к оборудованию.
– Убедитесь в том, что регулятор тяги
работает правильно, и что ничто не создает
помех для автоматического открытия
шибера подачи воздуха.
3.2
ЧИСТКА
Чистка должна проводиться довольно часто.
Она заключается в чистке дымовых проходов
и зольника, из которого нужно вынимать золу,
собравшуюся в небольшом баке. Для чистки
дымоходов
следует
использовать
специальную щетку (Чертеж 11).
3.3
ТЕХНИЧЕСКОЕ ОБСЛУЖИВАНИЕ
Не
выполнять
никаких
операций
по
обслуживанию, демонтажу и перемещению,
не слив перед этим должным образом воду из
котла.
Операции
слива
не
должны
осуществляться
при
повышенной
температуре воды.
ВНИМАНИЕ! Предохранительный клапан
должен проверяться каждые пять лет
квалифицированным специалистом.
В случае если вода будет полностью слита
из
системы,
которая
не
будет
использоваться продолжительное время,
в
обязательном
порядке
следует
выполнить проверку предохранительного
клапана.
В
случае
выхода
из
строя
предохранительного
клапана
и
при
невозможности его ремонта, необходимо
заменить его новым предохранительным
клапаном 1/2”, 3 бара, соответствующим
требованиям Директивы PED 97/23/CEE.
3
ИСПОЛЬЗОВАНИЕ И УХОД
Чертеж 11
2.8.2
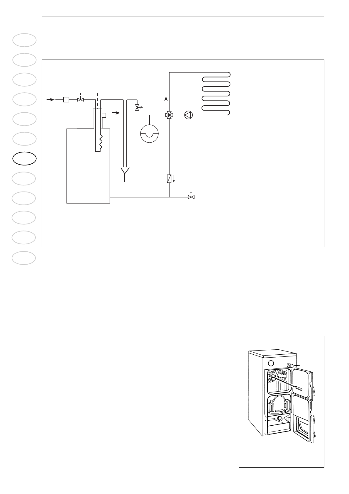
Система с расширительным бачком закрытого типа и термостатическим клапаном, поставляемым по отдельному заказу
Чертеж 10/a
VE
VS
VM
PI
VR
VT
F
SOLIDA
SC
ОБОЗНАЧЕНИЯ
VE
Расширительный бачок
VS
Предохранительный клапан 3 BAR - 1/2”
VM
Распределительный клапан
VR
Запорный клапан
PI
Циркуляционный насос
IR
Отопительная система
VT
Термостатический клапан
SC
Предохранительный теплообменник
F
Фильтр
ВНИМАНИЕ! Предохранительный теплообменник
поставляется в дополнительном комплекте, код
8105200.
Температура воды на подаче в предохранительный
теплообменник: 10°C.
Давление воды на подаче в предохранительный
теплообменник: 2 бар.
Содержание
- 2 SOLID
- 3 RUS; ОПИСАНИЕ ОБОРУДОВАНИЯ
- 4 УСТАНОВКА
- 7 ИСПОЛЬЗОВАНИЕ И УХОД