Котел SIME SOLIDA 3 на твердом топливе - инструкция пользователя по применению, эксплуатации и установке на русском языке. Мы надеемся, она поможет вам решить возникшие у вас вопросы при эксплуатации техники.
Если остались вопросы, задайте их в комментариях после инструкции.
"Загружаем инструкцию", означает, что нужно подождать пока файл загрузится и можно будет его читать онлайн. Некоторые инструкции очень большие и время их появления зависит от вашей скорости интернета.

43
IT
PT
GB
SL
DK
RO
RUS
FR
BE
ES
DE
HU
"Thermomat" заключается в изменении длины
цепочки. Действуйте следующим образом:
– Установите ручку на 60°С.
– Оставив шибер подачи воздуха открытым,
включите котел.
– Когда вода достигнет 60°С, установите
цепочку на рычаг шибера, образуя щель
размером в 1 мм.
– Теперь регулятор откалиброван, рабочую
температуру можно менять, поворачивая
ручку.
2.7.2
Регулятор "REGULUS RT2"
Диапазон регулирования – от 30 до 90°С
(Чертеж 8).
Для установки и запуска регулятора следуйте
инструкциям регулятора "Thermomat".
Терморегулятор “REGULUS RT2”
Терморегулятор “THERMOMAT RT-C”
Чертеж 7
Чертеж 8
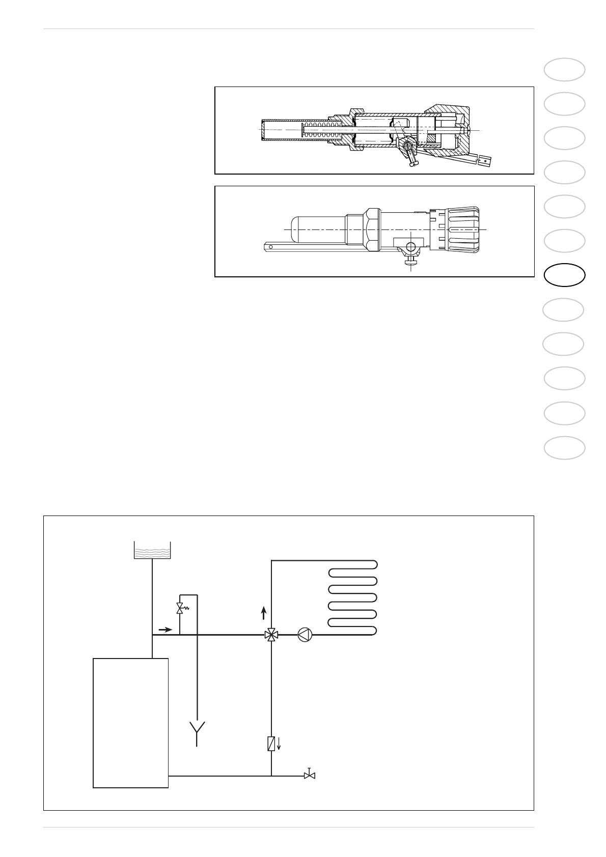
2.8
СХЕМА ГИДРАВЛИЧЕСКИХ СОЕДИНЕНИЙ
2.8.1
Система с расширительным бачком открытого типа
Чертеж 10
VE
VS
VM
PI
IR
VR
SOLIDA
ОБОЗНАЧЕНИЯ
VE
Расширительный бачок открытого типа
VS
Предохранительный клапан 3 BAR - 1/2”
VM Распределительный клапан
VR Запорный клапан
PI
Циркуляционный насос
IR
Отопительная система