Котел Protherm Медведь 50 KLZ - инструкция пользователя по применению, эксплуатации и установке на русском языке. Мы надеемся, она поможет вам решить возникшие у вас вопросы при эксплуатации техники.
Если остались вопросы, задайте их в комментариях после инструкции.
"Загружаем инструкцию", означает, что нужно подождать пока файл загрузится и можно будет его читать онлайн. Некоторые инструкции очень большие и время их появления зависит от вашей скорости интернета.

29
Переналадку котла на другой вид топлива
может проводить только аттестованный
фирмой Protherm специалист
специализированной организации.
Переналадка котла осуществляется
следующим способом:
1. Демонтируйте горелку котла;
2. Замените все форсунки горелки на иной
тип (в зависимости от вида топлива).
3. Замените горелочные трубы горелки на
иной тип (в зависимости от вида топлива).
4. При переходе с природного газа на
пропан на горелочные трубы установите
охлаждающие стержни вместе с
держателями – на каждую трубу три
стержня. Стержень, устанавливаемый
напротив электрода розжига, укорачивается
приблизительно на 35 мм.
5. Установите горелку обратно.
6. Выполните настройку предписанного
давления газа в зависимости от мощности
котла (см. главу „Подготовка и запуск
котла“). Далее выполните:
– настройку стартовой мощности котла
Перестройка на иной вид топлива
(параметр n) установите значение „n6“ при
переходе с природного газа на пропан
– настройку стартовой мощности котла
(параметр n) установите значение „ n-“ при
переходе с пропана на природный газ .
Порядок установки стартовой мощности
котла (параметр n) описан в главе „
Сервисные (дополнительные) режимы“.
7. Проверьте на герметичность места
соединений газовой арматуры и примите
следующие меры безопасности:
– укажите на котле вид используемого
топлива;
– информацию о произведенной
переналадке, дате и лице, выполнившем
переналадку, необходимо внести
в сопроводительную техническую
документацию к котлу.
Предупреждение:
Для переналадки на
иной вид топлива используются только
оригинальные детали, поставленные
изготовителем, или иным, уполномоченным
изготовителем, лицом. Переналадку может
проводить только аттестованный фирмой
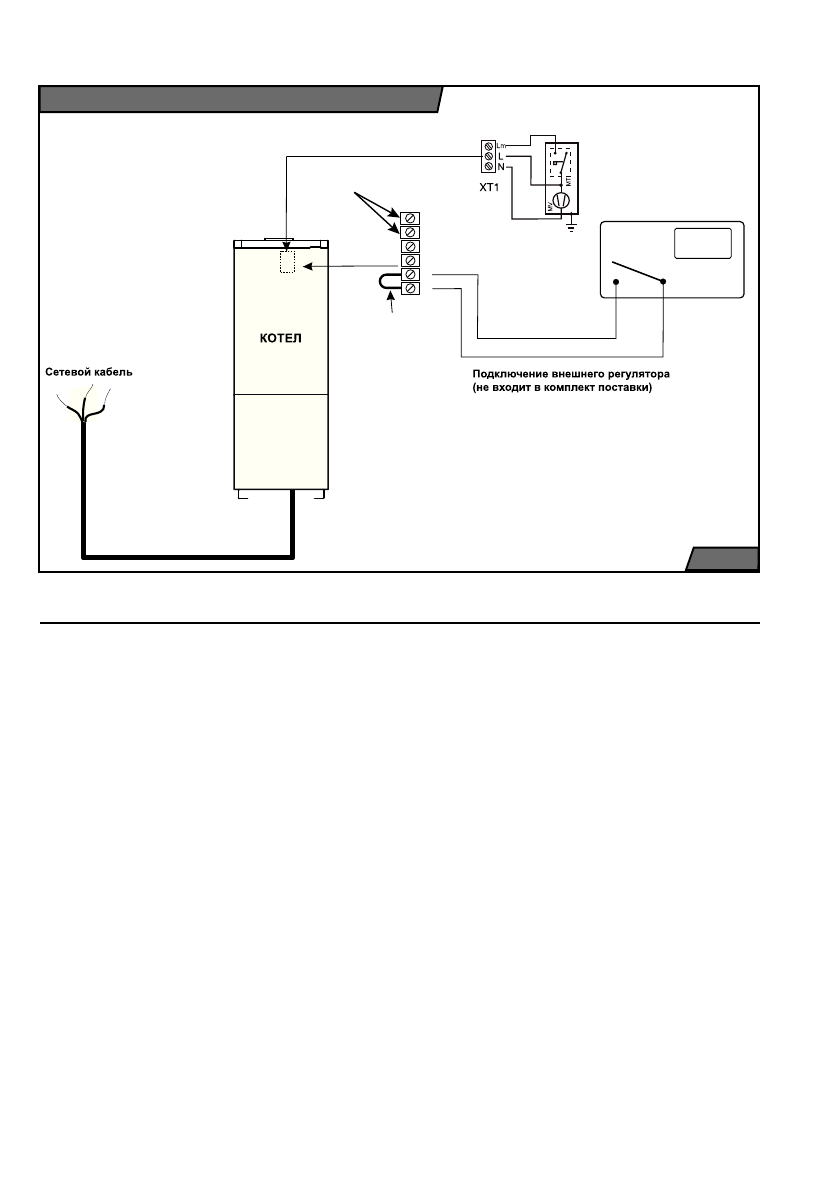
Рис
. 9
Схема подключения внешнего оснащения
1
2
3
4
5
6
Данное соединение
выбирается в случае
подключения
комнатного регулятора
Комнатный
регулятор
Датчик
наружной
температуры
Турбо-надставка
Содержание
- 2 Плавная модуляция мощности; М Е Д В Е Д Ь; Руководство по монтажу; Напольный чугунный котел
- 4 Медведь; Obsah; Содержание
- 5 Введение
- 7 Управление и сигнализация; Главный выключатель
- 8 Установка температуры отопления
- 9 Эквитермический режим; Установка крутизны кривой; Параллельное смещение кривой; Рис
- 11 Сообщения об ошибках; Таймер
- 12 Пуск и отключение котла
- 13 Защитные функции котла
- 14 Защита от перегрева; Сервис и уход
- 15 Гарантийные условия
- 16 Технические параметры
- 18 ød
- 23 Комплектность поставки
- 24 Подготовка к установке котла
- 26 Установка котла
- 28 Обслуживание котла; Регулирующая газовая арматура
- 30 Запуск насоса; Стартовая мощность котла
- 31 Электрическое подключение котла
- 32 Перестройка на иной вид топлива