Котел Protherm Медведь 20 KLZ - инструкция пользователя по применению, эксплуатации и установке на русском языке. Мы надеемся, она поможет вам решить возникшие у вас вопросы при эксплуатации техники.
Если остались вопросы, задайте их в комментариях после инструкции.
"Загружаем инструкцию", означает, что нужно подождать пока файл загрузится и можно будет его читать онлайн. Некоторые инструкции очень большие и время их появления зависит от вашей скорости интернета.

Переналадку котла на другой вид топлива
может проводить только аттестованный
фирмой
Protherm
специалист
специализированнойорганизации.
Переналадка
котла
осуществляется
следующимспособом:
1.Демонтируйтегорелкукотла;
2. Замените все форсунки горелки на иной
тип(взависимостиотвидатоплива).
3. Замените горелочные трубы горелки на
инойтип(взависимостиотвидатоплива).
4. При переходе с природного газа на
пропан на горелочные трубы установите
охлаждающие
стержни
вместе
с
держателями – на каждую трубу три
стержня.
Стержень,
устанавливаемый
напротивэлектродарозжига,укорачивается
приблизительнона35мм.
5.Установитегорелкуобратно.
6. Выполните настройку предписанного
давления газа в зависимости от мощности
котла (см. главу „Подготовка и запуск
котла“).Далеевыполните:
– настройку стартовой мощности котла
Переналадканаинойвидтоплива
(параметрn)установитезначение„n6“при
переходесприродногогазанапропан
– настройку стартовой мощности котла
(параметрn)установитезначение„n-“при
переходеспропананаприродныйгаз.
Порядок установки стартовой мощности
котла (параметр n) описан в главе „
Сервисные(дополнительные)режимы“.
7. Проверьте на герметичность места
соединений газовой арматуры и примите
следующиемерыбезопасности:
– укажите на котле вид используемого
топлива;
–
информацию
о
произведенной
переналадке, дате и лице, выполнившем
переналадку,
необходимо
внести
в
сопроводительную
техническую
документациюккотлу.
Предупреждение:
Для переналадки на
иной вид топлива используются только
оригинальные
детали,
поставленные
изготовителем,илииным,уполномоченным
изготовителем,лицом.Переналадкуможет
проводить только аттестованный фирмой
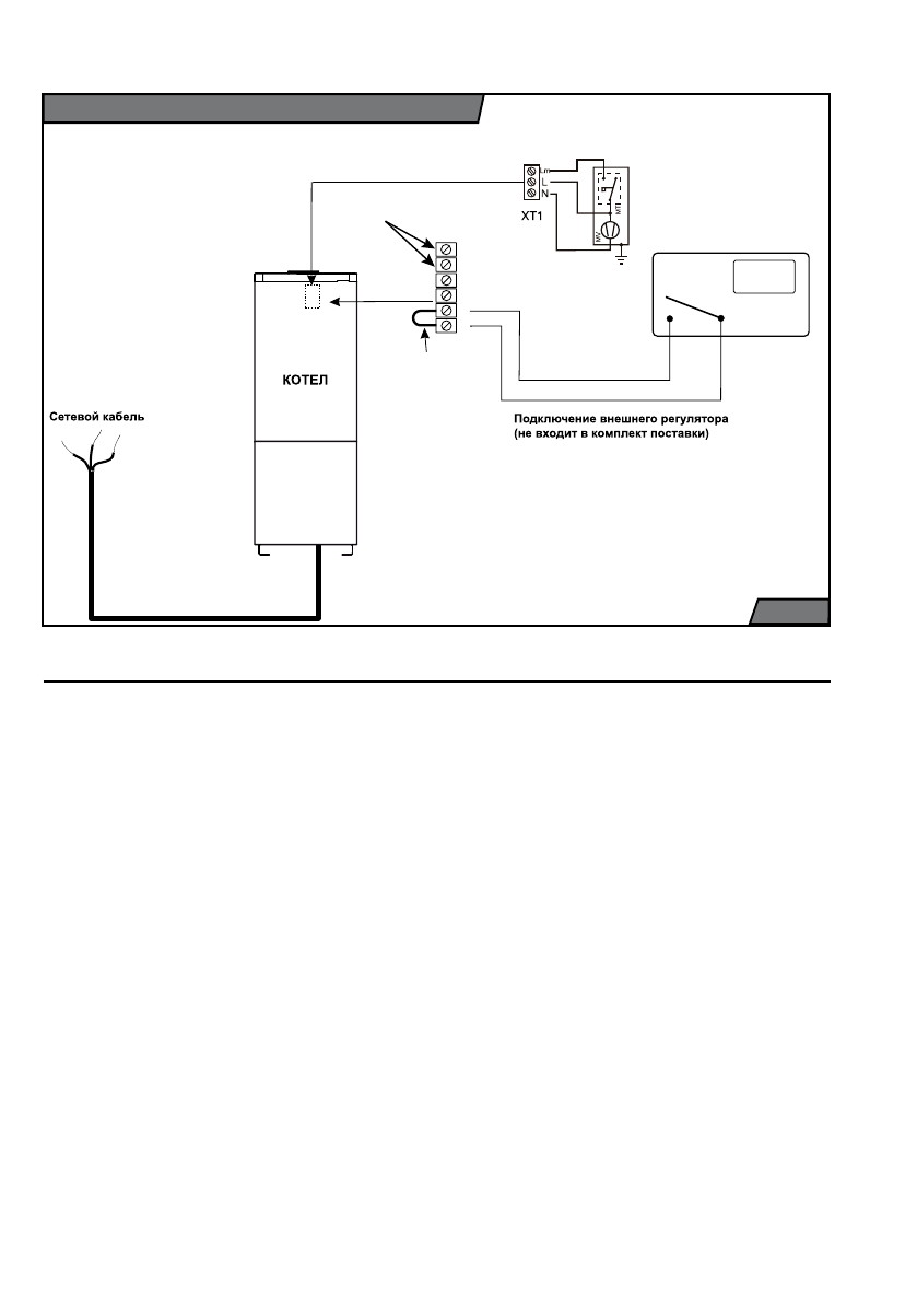
Рис
. 9
Схемаподключениявнешнегооснащения
1
2
3
4
5
6
Данное соединение
выбирается в случае
подключения
комнатного регулятора
Комнатный
регулятор
Датчик
наружной
температуры
Турбо-надставка
Содержание
- 2 Плавнаямодуляциямощности; МЕДВЕДЬ; Руководствопомонтажу; Напольныйчугунныйкотел
- 5 Медведь; Obsah; Содержание
- 6 Введение
- 8 РУКОВОДСТВОПОЭКСПЛУАТАЦИИ; Управлениеисигнализация; Главныйвыключатель
- 9 Установкатемпературыотопления
- 12 Сообщенияобошибках; Таймер
- 13 Пускиотключениекотла
- 14 Защитныефункциикотла
- 15 Сервисиобслуживание
- 16 Гарантийныеусловия
- 17 Техническиепараметры
- 21 Введение
- 24 Комплектностьпоставки
- 25 Подготовкакустановкекотла
- 27 Установкакотла
- 29 Обслуживаниекотла; Комбинированнаягазоваяарматура
- 31 Запускнасоса; Стартоваямощностькотла
- 32 Электрическоеподключениекотла
- 33 Переналадканаинойвидтоплива