Котел Лемакс Патриот-6 - инструкция пользователя по применению, эксплуатации и установке на русском языке. Мы надеемся, она поможет вам решить возникшие у вас вопросы при эксплуатации техники.
Если остались вопросы, задайте их в комментариях после инструкции.
"Загружаем инструкцию", означает, что нужно подождать пока файл загрузится и можно будет его читать онлайн. Некоторые инструкции очень большие и время их появления зависит от вашей скорости интернета.
Загружаем инструкцию

8
Патриот В. 1.13
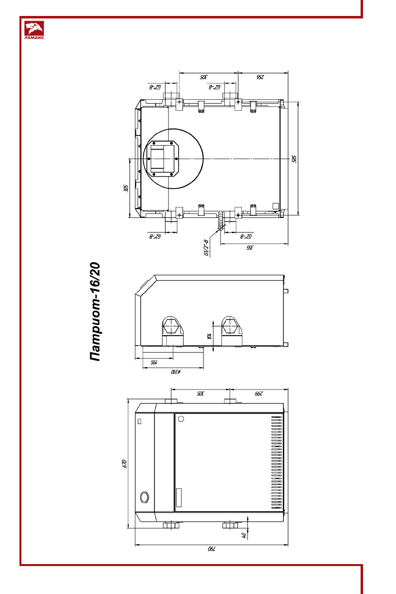
ПРИСОЕДИНИТЕЛЬНЫЕ РАЗМЕРЫ
Содержание
- 3 СОДЕРЖАНИЕ
- 4 ОБЩИЕ УКАЗАНИЯ; производятся владельцем котла.; КОМПЛЕКТНОСТЬ; ТЕХНИЧЕСКИЕ ХАРАКТЕРИСТИКИ; с газогорелочным устройством.
- 9 регулятора и термометра; ТРЕБОВАНИЯ БЕЗОПАСНОСТИ; – оставлять котел, работающий длительное время, без присмотра.
- 11 находится в отдельной упаковке.; Точное количество теплоноси-; чивая с усилием, не допускающим повреждение прокладки.
- 12 ЗАПРЕЩАЕТСЯ; отвод продуктов сгорания:; Таблица 3; Место отвода; котла использовать диэлектрическую вставку.; ПОРЯДОК РАБОТЫ
- 13 Рис 3. Примерная схема открытой системы отопления *; Рис. 4. Примерная схема открытой системы отопления
- 14 ку управления по часовой стрелке в позицию «выключено» (; ПРАВИЛА ЭКСПЛУАТАЦИИ, ТЕХНИЧЕСКОЕ ОБСЛУЖИВАНИЕ; и физическими свойствами отличными от нейтральных свойств
- 15 трена съемная верхняя крышка.; ГАРАНТИЙНЫЕ ОБЯЗАТЕЛЬСТВА; тационных характеристик.
- 16 ВОЗМОЖНЫЕ НЕИСПРАВНОСТИ И МЕТОДЫ ИХ УСТРАНЕНИЯ; Наименование; СВИДЕТЕЛЬСТВО О ПРИЕМКЕ
- 18 КОНТРОЛЬНЫЕ ТАЛОНЫ; КОНТРОЛЬНЫЙ ТАЛОН НА МОНТА Ж; СВЕДЕНИЯ ОБ УТИЛИЗАЦИИ
