Котел Лемакс Clever L180 - инструкция пользователя по применению, эксплуатации и установке на русском языке. Мы надеемся, она поможет вам решить возникшие у вас вопросы при эксплуатации техники.
Если остались вопросы, задайте их в комментариях после инструкции.
"Загружаем инструкцию", означает, что нужно подождать пока файл загрузится и можно будет его читать онлайн. Некоторые инструкции очень большие и время их появления зависит от вашей скорости интернета.

12
Clever L V1.15
5.
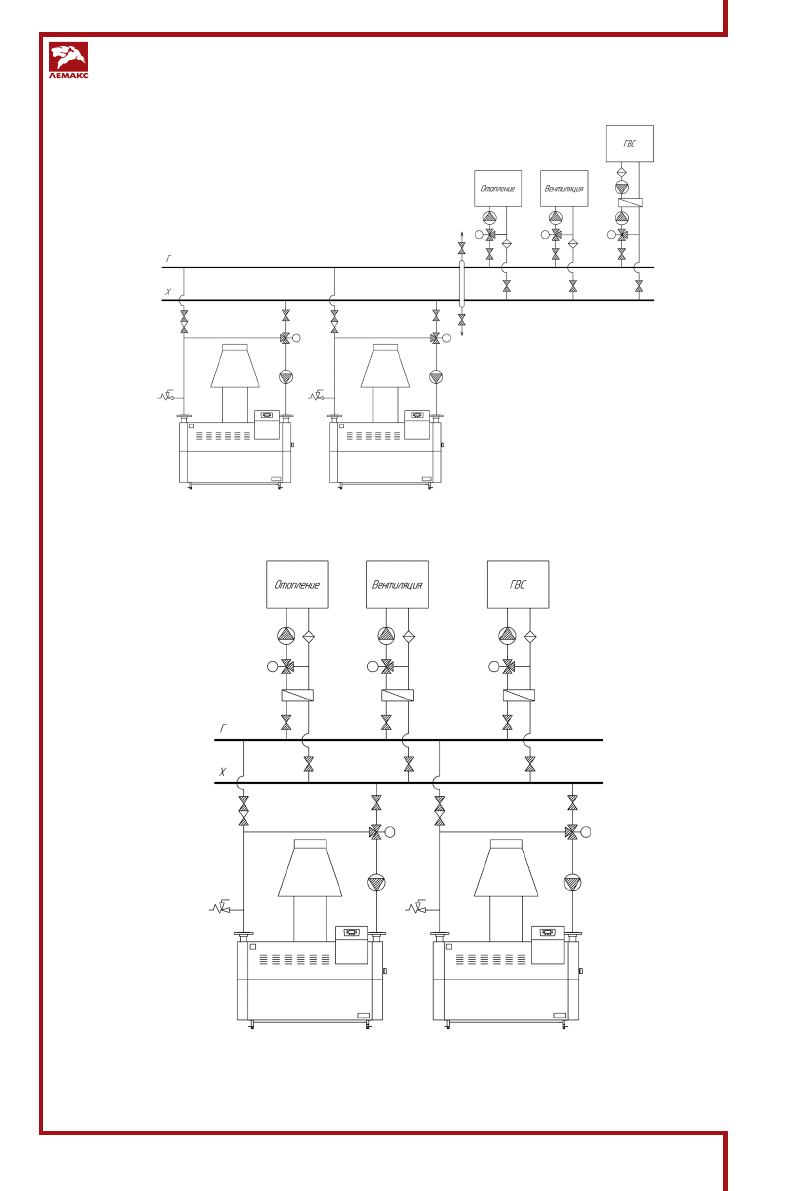
РЕКОМЕНДУЕМАЯ ГИДРАВЛИЧЕСКАЯ СХЕМА ПОДКЛЮЧЕНИЯ КОТЛА
Рис. 5.1. Гидравлическая схема подключения котла к системе отопления
с применением гидравлического разделителя динамических давлений
Рис. 5.2. Гидравлическая схема подключения котла к системе отопления
с независимым котловым контуром
Содержание
- 4 ОБЩИЕ ПОЛОЖЕНИЯ; означает, что приведена важная информация без
- 5 КОМПЛЕКТНОСТЬ; ством по эксплуатации.
- 6 ТЕХНИЧЕСКОЕ ОПИСАНИЕ
- 7 Таблица 1; Наименование параметра; мм
- 8 Габаритные и присоединительные размеры
- 9 – содержание растворенного кислорода – 20 мкг/дм
- 10 МОНТАЖ КОТЛА; же на вспомогательное оборудование согласно проекту котельной
- 12 РЕКОМЕНДУЕМАЯ ГИДРАВЛИЧЕСКАЯ СХЕМА ПОДКЛЮЧЕНИЯ КОТЛА; с независимым котловым контуром
- 13 ПУСК КОТЛА; – проверить наличие тяги
- 14 Нажимая кнопку; Таблица 3; Регулирование температуры в помещении; Регулирование температуры горячей санитарной воды; или
- 15 НАСТРОЙКА ПАРАМЕТРОВ КОТЛА; НАСТРОЙК А ПОГОДОЗАВИСИМОЙ АВТОМАТИКИ
- 16 Таблица 4
- 18 ЭЛЕКТРООБОРУДОВАНИЕ; Провода заземления условно не показаны.
- 19 СООБЩЕНИЯ ОБ ОШИБКАХ; Таблица 5; НАСТРОЙКА ГАЗОВОГО КЛАПАНА
- 20 Настройка давления газа при максимальной мощности; в течение 5 сек. для выхода из режима максимальной; Настройка давления газа при минимальной мощности; мерения давления на горелке; Таблица 6; УКАЗАНИЯ ПО УХОДУ
- 21 ГАРАНТИЙНЫЕ ОБЯЗАТЕЛЬСТВА; уведомления, не ухудшающие эксплуатационных характеристик.
- 23 ОТМЕТКИ О ПРОВЕДЕНИИ ЕЖЕГОДНОГО ТЕХНИЧЕСКОГО ОБСЛУЖИВАНИЯ; Перед отопительным сезоном необходимо:
- 25 ВОЗМОЖНЫЕ НЕИСПРАВНОСТИ И МЕТОДЫ ИХ УСТРАНЕНИЯ; Вероятная причина
- 26 ОСОБЫЕ ОТМЕТКИ
- 27 ГАРАНТИЙНЫЕ ТАЛОНЫ