Котел Ferroli Tantaqua NF - инструкция пользователя по применению, эксплуатации и установке на русском языке. Мы надеемся, она поможет вам решить возникшие у вас вопросы при эксплуатации техники.
Если остались вопросы, задайте их в комментариях после инструкции.
"Загружаем инструкцию", означает, что нужно подождать пока файл загрузится и можно будет его читать онлайн. Некоторые инструкции очень большие и время их появления зависит от вашей скорости интернета.

5BOU B RV B / '
qż»¿Ä¼Ä¿¼ÈÆÅÃÅÐÓÕÇ·¾»¼ÂÓÄÒÌÉÇʸ
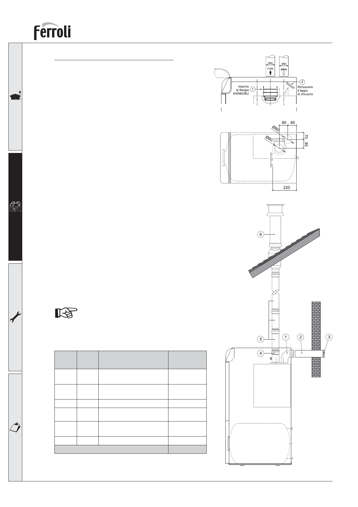
jÇ˾ÄÅÇ¿¾ËÈǽÃÄ×йËÕʸÃɹÀ½¾ÄÕÆÇÈÉÇÎǽ¸ÒÁÅ»ÇÀ
½ÌÎÇ Á ½ÔÅǻǽ¹Å ÃÇËÇÉÔ¾ »Ô»Ç½¸Ëʸ оɾÀ Ê˾ÆÌ ÁÄÁ
ƹ ÃÉÇ»Ä× Ã¹Ã ÈÇùÀ¹ÆÇ ƹ ÉÁÊÌÆÃ¾ oÇ Ç˽¾ÄÕÆÇ À¹¸»Ã¾
ÅÇ¿ÆÇ ÈÉÁǺɾÊËÁ ɹÀÄÁÐÆÔ¾ ͹ÊÇÆÆÔ¾ ÖľžÆËÔ ½Ä¸
ɾ¹ÄÁÀ¹ÏÁÁʹÅÔÎɹÀÆÇǺɹÀÆÔÎɾѾÆÁÂm¹ÁºÇľ¾Ð¹
ÊËÇÁÊÈÇÄÕÀ̾ÅÔ¾ÖľžÆËÔÌùÀ¹ÆÔ»Ë¹ºÄÁϹÎ
nÊ˹ÄÕÆÔ¾ ͹ÊÇÆÆÔ¾ ÖľžÆËÔ Èɾ½Ê˹»Ä¾ÆÔ » ÊÇÇË
»¾ËÊË»Ì×Ò¾Åù˹ÄǼ¾ÁÄÁÈɹÂÊÄÁÊ˾
dĸ ËÇ¼Ç ÐËÇºÔ Ì½ÇÊËÇ»¾ÉÁËÕʸ ÐËÇ ÇºÒ¹¸ ½ÄÁƹ ËÉÌ
ºÇÈÉǻǽǻ ƾ ºÌ½¾Ë Èɾ»ÔѹËÕ Èɾ½¾ÄÕÆÇ ½ÇÈÌÊËÁÅÔÎ
ÀƹоÆÁ ƾǺÎǽÁÅÇ È¾É¾½ ÅÇÆË¹¿ÇŠʽ¾Ä¹ËÕ ÈÉÇÊËÇÂ
ɹÊоË
dĸ ù¿½Ç¼Ç ͹ÊÇÆÆÇ¼Ç ÖľžÆË¹ » ˹ºÄÁϹÎ
ÈÉÁ»¾½¾ÆÇ ÀƹоÆÁ¾ ÈÇ˾ÉÁ ƹÈÇɹ » »ÇÀ½ÌÑÆÔÎ
ÖûÁ»¹Ä¾ÆËžËɹÎÃÇËÇÉǾÀ¹»ÁÊÁËÇËžÊ˹ÌÊ˹ÆÇ»ÃÁ
ʹÅǼÇÖľžÆË¹ ƹ»Ê¹ÊÔ»¹ÆÁÁ»ÇÀ½ÌιÁÄÁƹ»ÔºÉÇ
ʾ ½ÔÅÇ»ÔÎ ¼¹ÀÇ» » »¾ÉËÁùÄÕÆÇÅ ÁÄÁ ¼ÇÉÁÀÇÆË¹ÄÕÆÇÅ
ÈÇÄÇ¿¾ÆÁÁ
oÇ˾ɸ ƹÈÇɹ ÁÀžɸ¾Ëʸ » ¥»ÇÀ½ÌÑÆÔÎ ÖûÁ»¹Ä¾ÆË
žËɹΦ ÈÇÊÃÇÄÕÃÌ É¹ÊÊÐÁ˹ƹ ƹ ÇÊÆÇ»¾ »¾ÄÁÐÁÆÔ ÈÇ
˾ÉÁ ƹÈÇɹ ƹ ǽÆÇŠžËɾ ¹ÊÈÁɹÏÁÇÆÆÇ¼Ç »ÇÀ½ÌÎÇ
»Ç½¹ÃÇËÇɹ¸ÈÉÁÆÁʾËʸɹ»ÆÇ¾½ÁÆÁϾm¹ÈÉÁžÉ
ÈÇ˾ɸƹÈÇɹ»ÃÇľƾÈǽ½Á¹Å¾ËÉÇÅÅÅÌÊ˹
ÆÇ»Ä¾ÆÆÇÅ » ÃÇÆËÌɾ ½ÔÅÇ̽¹Ä¾ÆÁ¸ ÊÇÊ˹»ÁË »ÇÀ
½ÌÑÆÔÎÖûÁ»¹Ä¾ÆËžËɹ˾ɹ»Æ¸¾ËʸÈÇ˾ÉÁƹÈÇɹ
»ÈŹÊÈÁɹÏÁÇÆÆÇ¼Ç»ÇÀ½ÌÎǻǽ¹
oÇÊľËǼÇùÃËɹÊʹÈÉÇÃĹ½ÃÁɹÀ½¾ÄÕÆÔÎËÉ̺ÇÈÉÇ
»Ç½Ç»ÈÇÄÆÇÊËÕ×ÇÈɾ½¾Ä¾Æ¹Êľ½Ì¾ËÈÉÇÊÌÅÅÁÉÇ»¹ËÕ
ÈÇ˾Éׯ¹ÈÇɹ»ÖûÁ»¹Ä¾ÆËžËɹλʾÎÁÊÈÇÄÕÀ̾ÅÔÎ
ÖľžÆËÇ»
oÇÄÌÐ¾ÆÆ¹¸ » ɾÀÌÄÕ˹˾ ÊÇ»ÇÃÌÈÆ¹¸ ÈÇ˾ɸ ƹÈÇɹ ƾ
½ÇĿƹ Èɾ»ÔѹËÕ ÖûÁ»¹Ä¾ÆËžËÉÇ» ˾ Èɾ½¾ÄÕ
ÆÇ¼ÇÀƹоÆÁ¸½Ä¸½¹ÆÆÇÂÅǽ¾ÄÁÃÇËĹ
eÊÄÁ ÊǺÄ×ÊËÁ ÈÉÁ»¾½¾ÆÆÔ¾ ȹɹžËÉÔ Æ¾
»ÇÀÅÇ¿ÆÇ ƹ ƾÊÃÇÄÕÃÁÎ ÇËɾÀùΠËɹÊÊÔ É¾
ÃÇžƽ̾Ëʸ ÈÉÁžÆÁËÕ ËÉÌºÔ ºÇÄÕѾ¼Ç ½Á¹
žËɹ
oÉÁžÉɹÊо˹ ÊÅÉÁÊ
»¼É·ÂÓ
ÁŹÅ
ÏÉ
m·¿Ã¼ÄŹ·Ä¿¼
}Á¹¿¹·Â¼ÄÉ
Ä·¶ÆÅɼǶ
Ä·ÆÅÇ·
jÇľÆÇ»ÇÀ½ÌÎǻǽ¹
ø
ÅÅ
Å
cÇÉÁÀÇÆË¹ÄÕÆÔ»ÇÀ½ÌÎǻǽ
ø
ÅÅ
Å
b¾ËÉÇÀ¹ÒÁËÆÔÂǼÇÄÇ»ÇÃ
Å
p¹ÊËÉ̺ÆÔÂ
ÃÇÆ½¾ÆÊ¹ËÇʺÇÉÆÁÃ
Å
b¾ÉËÁùÄÕÆÔ½ÔÅÇÎǽ
ø
ÅÅ
Å
dÔÅÇÎǽÊȹËÉ̺ÃÇÅ
Å
hÉźÅ
Ã
pÁÊ
