Котел Ferroli Tantaqua NF - инструкция пользователя по применению, эксплуатации и установке на русском языке. Мы надеемся, она поможет вам решить возникшие у вас вопросы при эксплуатации техники.
Если остались вопросы, задайте их в комментариях после инструкции.
"Загружаем инструкцию", означает, что нужно подождать пока файл загрузится и можно будет его читать онлайн. Некоторые инструкции очень большие и время их появления зависит от вашей скорости интернета.

5BOU B RV B / '
qż»¿Ä¼Ä¿¼ÈÆÅÃÅÐÓÕÁÅÄͼÄÉǿμÈÁ¿ÌÉÇʸ
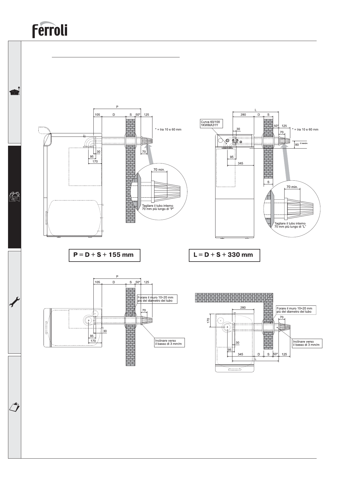
jÇË¾Ä ÅÇ¿¾Ë ÈǽÃÄ×йËÕʸ à ÃÇÆÏ¾ÆËÉÁоÊÃÁÅ »ÇÀ½ÌÎÇ Á ½ÔÅǻǽ¹Å ÃÇËÇÉÔ¾ »Ô»Ç½¸Ëʸ оɾÀ Ê˾ÆÌ
ÁÄÁƹÃÉÇ»Ä×ùÃÈÇùÀ¹ÆÇƹÊľ½Ì×ÒÁÎÉÁÊÌÆÃ¹ÎoÇÇ˽¾ÄÕÆÇÂÀ¹¸»Ã¾ÅÇ¿ÆÇÈÉÁǺɾÊËÁɹÀÄÁÐÆÔ¾
͹ÊÇÆÆÔ¾ÖľžÆËԽĸɾ¹ÄÁÀ¹ÏÁÁʹÅÔÎɹÀÆÇǺɹÀÆÔÎɾѾÆÁÂqÅù˹ÄǼÁÄÁÈɹÂÊÄÁÊË
bÒÌŻȾ·»¿
bÁ½ÊºÇÃÌ
bÁ½Ê»¾ÉÎÌ
pÁÊB
bÒÌŻȸÅÁÊ
bÁ½ÊȾɾ½Á
bÁ½Ê»¾ÉÎÌ
pÁÊC
