Котел Ferroli PegASUS F2 - инструкция пользователя по применению, эксплуатации и установке на русском языке. Мы надеемся, она поможет вам решить возникшие у вас вопросы при эксплуатации техники.
Если остались вопросы, задайте их в комментариях после инструкции.
"Загружаем инструкцию", означает, что нужно подождать пока файл загрузится и можно будет его читать онлайн. Некоторые инструкции очень большие и время их появления зависит от вашей скорости интернета.

Pegasus F2 N 2S
11
ˇÍÏ͈گÏÊÁÚÊˆÊ ÁÊÁÚ¯˙˝Óı ËÓ˜
–ÓÙÊ˚ÊÓ˝ÊÏÓËÍ˝Ê¯ ˆÓÚÔÓË Ë ˆÍÁˆÍ¯ Ê ÎÓˆÔ√¸¯˝Ê¯ ʉ ˆ ˆÓÔÔ¯ˆÚÓÏÈ ˜˙Ó˘‰ ˘ÍÙÓË
›ÁÔÊ ËÓÍ Ê˙¯¯Ú ≈¯ÁÚˆÓÁÚÒ Ë˜Ì¯ 25∞-30∞ Fr, ÚÓ ÁÔ¯È¯Ú ÎÏÊ˙¯˝˛ÚÒ ËÓÓÎÓ˘ÓÚÓˈÈ, Ú͈ ˆÍˆ ≈¯ÁÚˆÍ˛
ËÓÍ ˛ËÔ˛¯ÚÁ˛ ÎÏÊ¸Ê˝Óı Ó¬ÏÍÙÓËÍ˝Ê˛ ˝ÍˆÊÎÊ. fl˜ ˝ÍÁÚÓ˛Ú¯ÔÒ˝Ó Ï¯ˆÓ˙¯˝È¯˙ ÎÏʯÏ≈ÊËÍÚÒÁ˛
ùÚÓ˘Ó ÎÏÍËÊÔÍ, Ú͈ ˆÍˆ Í≈¯ ˝¯ÁˆÓÔÒˆÓ ˙ÊÔÔÊ˙¯ÚÏÓË ˝ÍˆÊÎÊ ÎÏÊËÓ˛Ú ˆ Ù˝Í¸ÊÚ¯ÔÒ˝Ó˙È Î¯Ï¯˘Ï¯ËÈ
ÁÚ¯˝Óˆ ˆÓÚÔÍ, Ê ˆÍˆ ϯÙÈÔÒÚÍÚ ˆ Á¯ÏÒ¯Ù˝˜˙ ÎÏÓ¬Ô¯˙Í˙.
À à – ” ‘ ÷ Ÿ Œ › fl œ „ Õ ” ’ œ ’ ” ‘ ƒ ‚ œ – ” ’ Õ › — fi œ ◊ ÷ à „ – — › ’ Õ œ — À ◊ › ‘ ÷ ‚ ” ⁄ – ” ’ fi ” ◊ ” Õ ¤ › Õ
Ñ›’Œ»ÿÀˇ ÑŒ·œ„ˇ:
œ) ∆ÓÔÒÌͲ ÁÊÁÚ¯˙Í (Á ¬ÓÔÒÌÊ˙ ÁÓ¯Ï≈Í˝Ê¯˙ ËÓ˜);
B ) · Í Á Ú Í ˛ Î Ó Î Ê Ú ˆ Í Á Ê Á Ú ¯ ˙ ˜ ; Ë Á Ô È ¸ Í ¯ ¸ Í Á Ú Ê ¸ ˝ Ó ˘ Ó Ê Ô Ê Î Ó Ô ˝ Ó ˘ Ó Ó Î Ó Ï Ó ≈ ˝ ¯ ˝ Ê ˛ Á Ê Á Ú ¯ ˙ ˜ ,
ϯˆÓ˙¯˝È¯ÚÁ˛ ÙÍÎÓÔ˝˛ÚÒ ¯¯ ÎÓ˘ÓÚÓËÔ¯˝˝Óı ËÓÓı.
¤ÍÁˆÍ ˙Ó≈¯Ú ÁÓ¯Ï≈ÍÚÒ Ó 4 ˆÓÚÔÓË; Ó˝Ê ˙Ó˘ÈÚ ˆÓ˙ÎÓ˝ÓËÍÚÒÁ˛ Ë ¬ÔÓˆ Á ÏÍÁÎÓÔÓ≈¯˝Ê¯˙ ˆÓÚÔÓË
ÏÈ˘ ˝ÍÎÏÓÚÊË ÏÈ˘Í ÊÔÊ Ë ÔÊ˝Ê√.
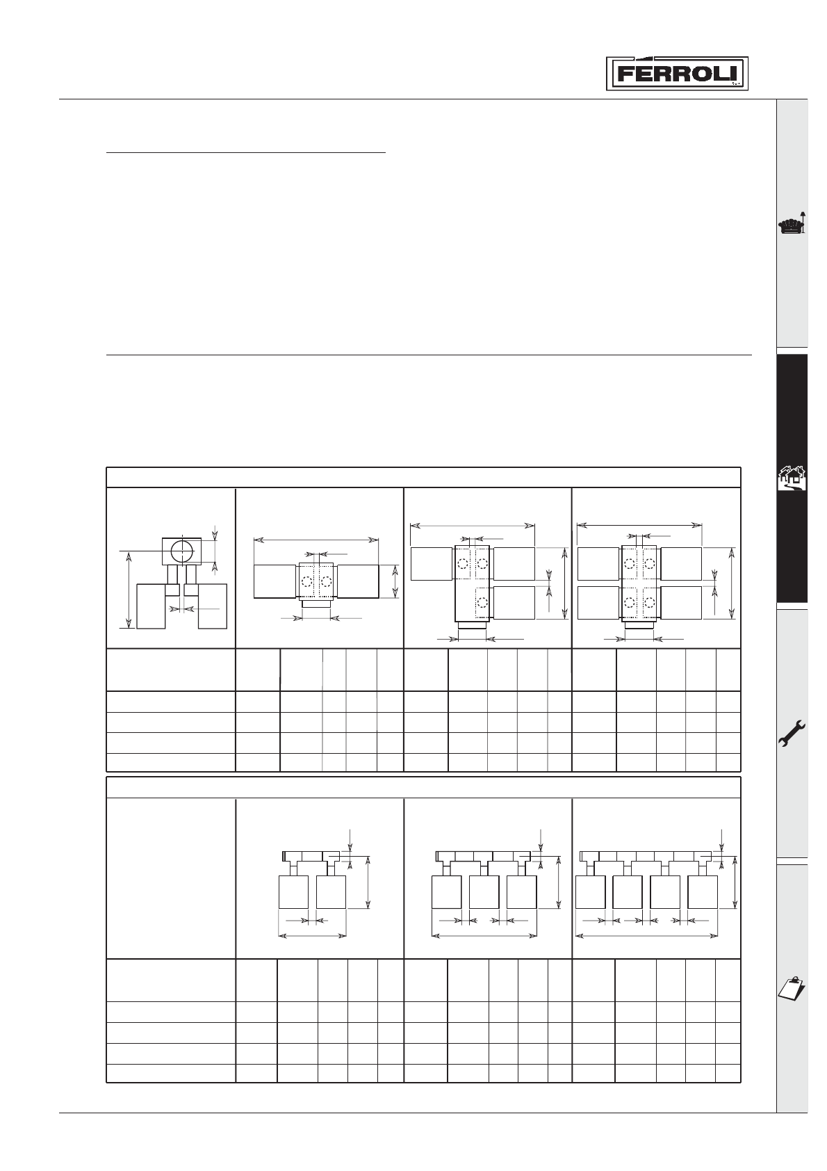
– Ó Ô Ó ≈ ¯ ˝ Ê ¯ ˆ Ó Ú Ô Ó Ë Ê Î Ó ˆ Ô √ ¸ ¯ ˝ Ê ¯ ˆ ˆ Ó Ô ¯ ˆ Ú Ó Ï È ˜ ˙ Ó Ë ˜ ‰ ˘ Í Ù Ó Ë Í ˝ Ó ˝ Í Á ‰ ¯ ˙ Í ‰ — Ê Á . 8 - 9 .
ÀÙÓÔÊÏÈıÚ¯ ËÁ¯ ÁÓ¯Ê˝¯˝Ê˛ ˜˙Ó‰ÓÓË.
ÕÀ’ Ã∆”¤Œ
ÕÀ’ ÃÕ›—ˇŒ 2 fl”’Œ‘„
ÕÀ’ ÃÕ›—ˇŒ 3 fl”’Œ‘„
ÕÀ’ ÃÕ›—ˇŒ 4 fl”’Œ‘„
Ã◊œ‚’œ—◊‚‹› ¤”◊‘‹
2 fl”’Œ‘„
3 fl”’Œ‘„
4 fl”’Œ‘„
◊›–‘”fi›‚›—œ◊”—‹ Õ ‘À‚ÀÀ à ¤”‘‘›¤◊”—”fl ’‹fl”Õ‹ˇ fiœŸ”Õ
1 0 0
Ø
Ø
H
±
40
1 0 0
Ø
1 0 0
100
1 9 0 0
L
1 0 0
Ø
1 9 0 0
100
L
L
1 9 0 0
P E G A S U S F 2 N 51 2S
P E G A S U S F 2 N 68 2S
P E G A S U S F 2 N 85 2S
P E G A S U S F 2 N 102 2S
1 0 2
1 3 6
1 7 0
2 0 4
112, 0
149, 6
187, 0
224, 0
550
640
720
800
1700
1700
1725
1725
250
250
300
300
–ÏÓÊÙËÓÊ-
Ú¯ÔÒ˝ÓÁÚÒ
ˆÕÚ
◊¯ÎÔÓËͲ
˙ÓÛ˝ÓÁÚÒ
ˆÕÚ
L
H
Ø
1 5 3
2 0 4
2 5 5
3 0 6
168, 0
224, 4
280, 5
336, 0
1200
1380
1540
1700
1725
1725
1750
1750
300
300
350
350
L
H
Ø
2 0 4
2 7 2
3 4 0
4 0 8
224, 0
299, 2
374, 0
448, 0
1200
1380
1540
1700
1750
1750
1775
1755
350
350
400
400
L
H
Ø
◊›–‘”fi›‚›—œ◊”—‹ Õ ∆‘”¤› à ¤”‘‘›¤◊”—”fl ’‹fl”Õ‹ˇ fiœŸ”Õ Õ …”—fl› ”∆ÿ›fi” ¤”—”∆œ
P E G A S U S F 2 N 51 2S
P E G A S U S F 2 N 68 2S
P E G A S U S F 2 N 85 2S
P E G A S U S F 2 N 102 2S
1 0 2
1 3 6
1 7 0
2 0 4
112, 0
149, 6
187, 0
224, 0
1200
1380
1540
1700
1690
1690
1715
1715
250
250
300
300
L
H
Ø
Ø
H
±
40
100
Ø
H
±
40
100
L
100
Ø
H
±
40
100
L
100
100
1 5 3
2 0 4
2 5 5
3 0 6
168, 0
224, 4
280, 5
336, 0
1850
2120
2360
2600
1715
1715
1740
1740
300
300
350
350
L
H
Ø
2 0 4
2 7 2
3 4 0
4 0 8
224, 0
299, 2
374, 0
448, 0
2500
2860
3180
3500
1740
1740
1765
1765
350
350
400
400
L
H
Ø
L
—ÊÁ. 8
—ÊÁ. 9
–ÏÓÊÙËÓÊ-
Ú¯ÔÒ˝ÓÁÚÒ
ˆÕÚ
◊¯ÎÔÓËͲ
˙ÓÛ˝ÓÁÚÒ
ˆÕÚ
–ÏÓÊÙËÓÊ-
Ú¯ÔÒ˝ÓÁÚÒ
ˆÕÚ
◊¯ÎÔÓËͲ
˙ÓÛ˝ÓÁÚÒ
ˆÕÚ
–ÏÓÊÙËÓÊ-
Ú¯ÔÒ˝ÓÁÚÒ
ˆÕÚ
◊¯ÎÔÓËͲ
˙ÓÛ˝ÓÁÚÒ
ˆÕÚ
–ÏÓÊÙËÓÊ-
Ú¯ÔÒ˝ÓÁÚÒ
ˆÕÚ
◊¯ÎÔÓËͲ
˙ÓÛ˝ÓÁÚÒ
ˆÕÚ
–ÏÓÊÙËÓÊ-
Ú¯ÔÒ˝ÓÁÚÒ
ˆÕÚ
◊¯ÎÔÓËͲ
˙ÓÛ˝ÓÁÚÒ
ˆÕÚ
Ã◊œ‚’œ—◊‚‹› ¤”◊‘‹