Котел Ferroli New Elite 60 F30 - инструкция пользователя по применению, эксплуатации и установке на русском языке. Мы надеемся, она поможет вам решить возникшие у вас вопросы при эксплуатации техники.
Если остались вопросы, задайте их в комментариях после инструкции.
"Загружаем инструкцию", означает, что нужно подождать пока файл загрузится и можно будет его читать онлайн. Некоторые инструкции очень большие и время их появления зависит от вашей скорости интернета.

96
New Elite 60 F 30
F
H
I
B A
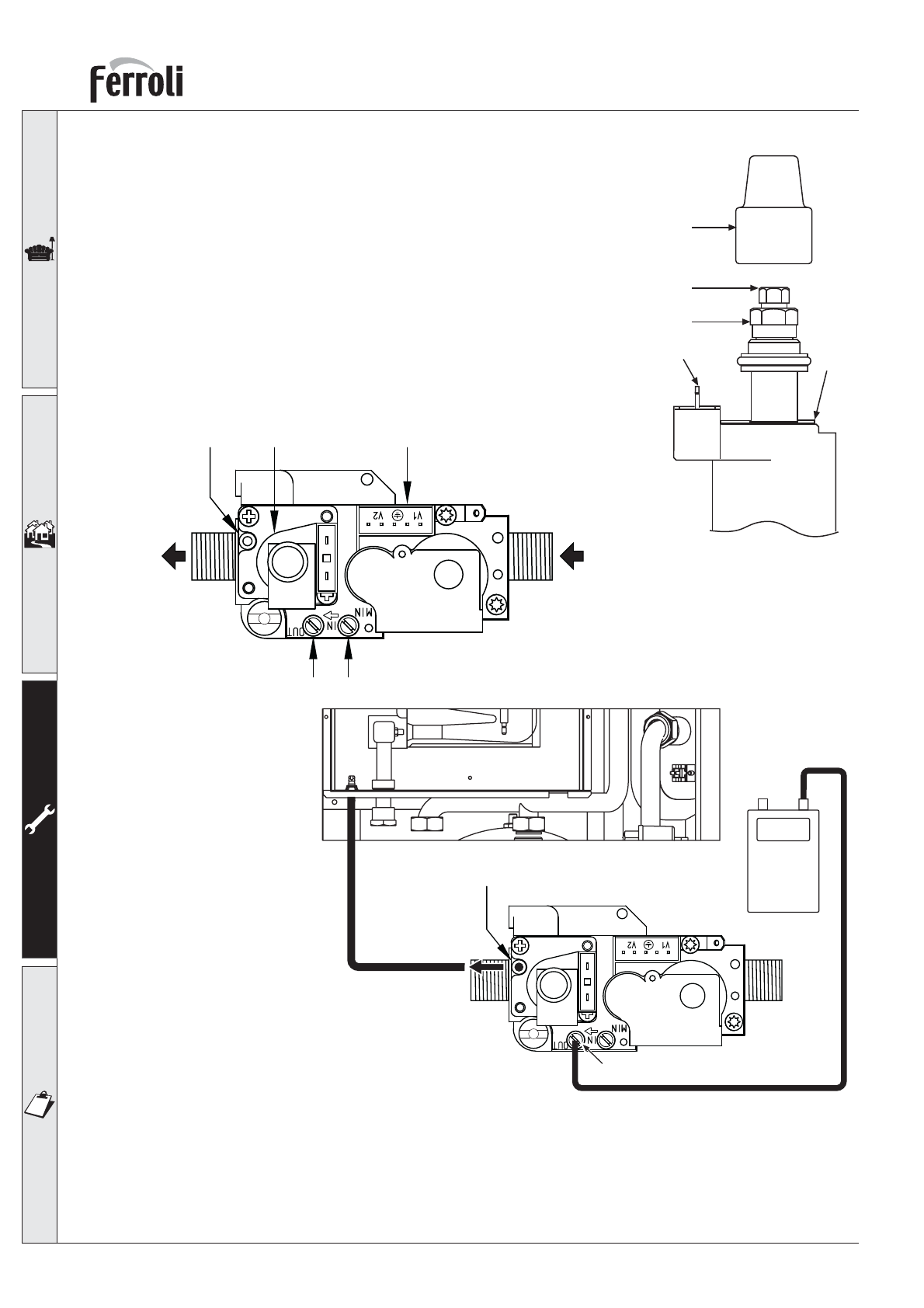
Ïîäâîä
ãàçà
Âûõîä
ãàçà
D
E
G
C
F
H
+
Òð
óáêà ê
îìïåíñàöèè
Ìàíîìåòð
B
Çàêðûòàÿ êàìåðà
. 13
• ' %B $ “
C
”
Modureg .
• ' , !
(! “
Q
”,
A .
• ! ! , % % ,
%.
• %B “
”
Modureg .
• /% , .
• % - “
H
”.
• / ( “
D
”.
• : $ &
TEST
! &
-, % , & 15
.
A
@ “B”,
& .
B
@ “B”,
&
C
! Modureg
D
K(
E
/
F
" Modureg
G
H
% -
I
@A +