Котел Ferroli New Elite 60 F30 - инструкция пользователя по применению, эксплуатации и установке на русском языке. Мы надеемся, она поможет вам решить возникшие у вас вопросы при эксплуатации техники.
Если остались вопросы, задайте их в комментариях после инструкции.
"Загружаем инструкцию", означает, что нужно подождать пока файл загрузится и можно будет его читать онлайн. Некоторые инструкции очень большие и время их появления зависит от вашей скорости интернета.

92
New Elite 60 F 30
1
2
3
4
5
6
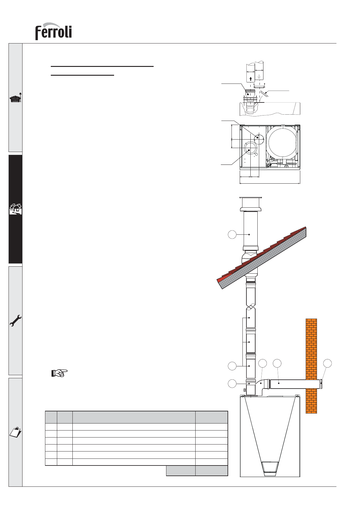
Ø80
ÏÐÎÄÓÊÒÛ
ÑÃÎÐÀÍÈß
Ø80
ÂÎÇÄÓÕ
Ñíèìèòå
çàãëóøêó
ÂÎÇÄÓÕ
ÏÐÎÄÓÊÒÛ
ÑÃÎÐÀÍÈß
148
84
600
107 85
010011X0
Ïîç.
1
2
3
4
5
6
×èñëî
øòóê
1
1
1
1
33
1
Êîëåíî äëÿ âîçäóõîâîäà äëÿ ïðèòîêà âîçäóõà äèàì. 80 ìì
Òðóáà ãîðèçîíòàëüíàÿ äëÿ âîçäóõîâîäà äëÿ ïðèòîêà âîçäóõà äèàì. 80 ìì
Íàêîíå÷íèê âåòðîçàùèòíûé
Íàñàäêà ñ ðàñòðóáîì äëÿ ñáîðà êîíäåíñàòà
Òðóáà âåðòèêàëüíàÿ äëÿ âîçäóõîâîäà óäàëåíèÿ ïðîäóêòîâ ãîðåíèÿ äèàì. 80 ìì
Âîçäóõîâîä óäàëåíèÿ ïðîäóêòîâ ñãîðàíèÿ + ñîåäèíèòåëüíûé ýëåìåíò
Íàèìåíîâàíèå
Ýêâèâàëåíòíûå
ïîòåðè
1,5 ì
1,0 ì
2,0 ì
3,0 ì
33,0 ì
4,0 ì
44,5 ì
Âñåãî
. 11
. 12
+$$ '=:<
$:% !
J & %
$ $ ( $/
) , $
A,
. 11 - 1 2 . ' &
, !(
% . %
%-$ . .
-
&.
: , % A
$,
& %$
:
1. : & %-$
“+ $
$ $”, ( &
+ ( $
,
).
* ! “+
$”
$
$ ( 1). ,
90° 80,
, 2,5 + $
$,
2,5 $ $ $
$.
2.
' $
$ $,
+ $ $ $ $
$ & .
3.
, %
% A
45
+
''
, . . ,
.
Y , %
$
! ,
& $
$ % %A .
+'