Котел Ferroli New Elite 60 C30 - инструкция пользователя по применению, эксплуатации и установке на русском языке. Мы надеемся, она поможет вам решить возникшие у вас вопросы при эксплуатации техники.
Если остались вопросы, задайте их в комментариях после инструкции.
"Загружаем инструкцию", означает, что нужно подождать пока файл загрузится и можно будет его читать онлайн. Некоторые инструкции очень большие и время их появления зависит от вашей скорости интернета.

117
New Elite 60 C 30
Cod. 3540D092 - 01/2007 (Rev. 00)
4.6
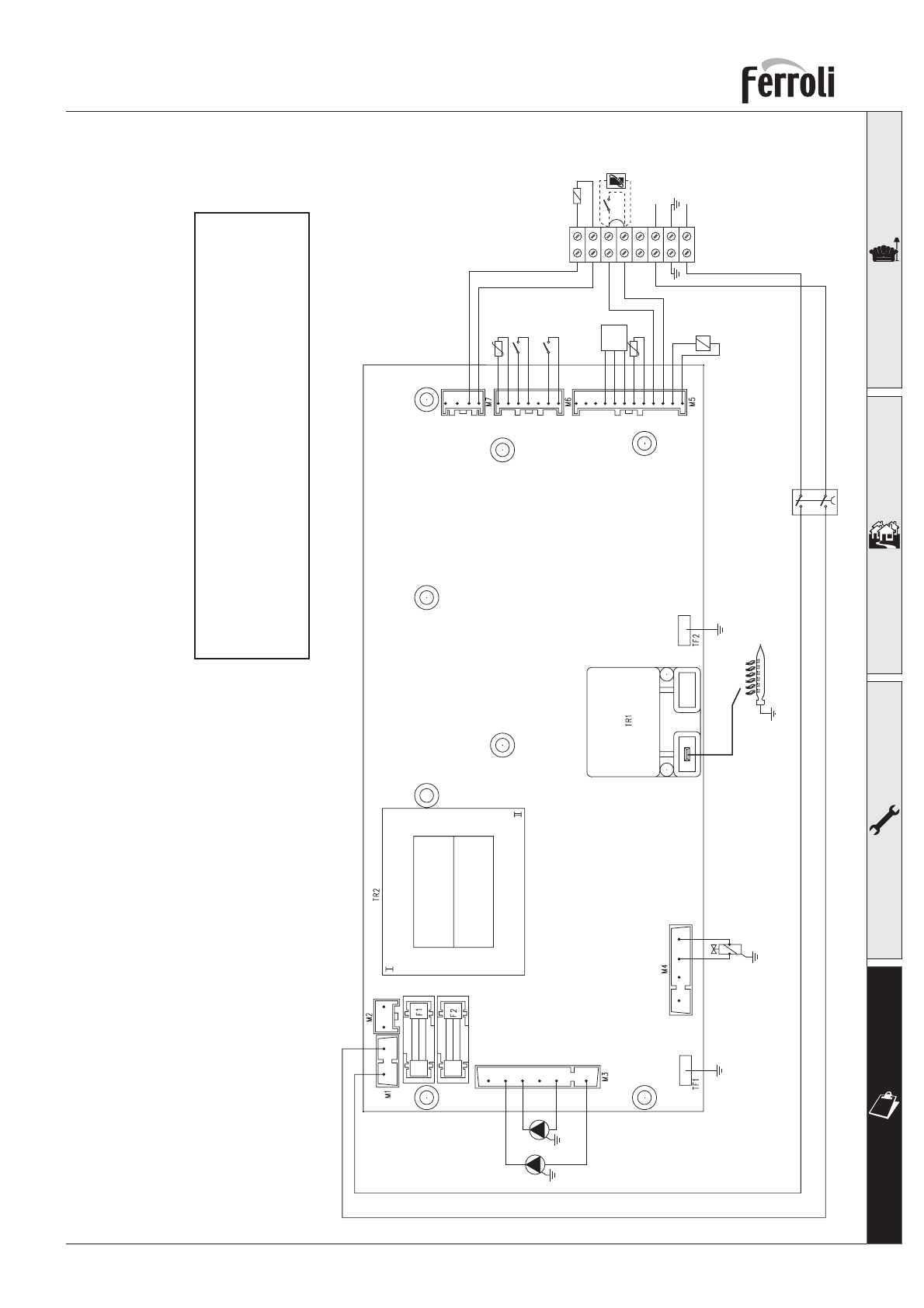
ɗɥɟɤɬɪɢɱɟɫɤɚɹ ɫɯɟɦɚ
ɪɢɫ
. 14
1
2
3
4
5
6
7
8
1
2
3
4
1
2
3
4
5
6
7
8
9
10
11
12
L
N
1
2
3
4
5
6
7
34
126
49
44
47
139
72
138
42
GND +5V OUT
246
1
2
3
4
5
6
32
81
PMF09F
12
3
4
130
98
230V 50Hz
1(L)
2(N)
1
2
F2A
F2A
Ɉɛɨ
ɡɧɚ
ɱɟɧɢɹ
32
ɐɢɪɤ
ɭɥɹɰɢɨɧɧɵɣ
ɧɚɫ
ɨɫ
ɫɢɫɬ
ɟɦɵ
ɨ
ɬɨɩɥɟɧɢɹ
34
Ⱦɚ
ɬɱɢɤ
ɬɟ
ɦɩɟɪɚ
ɬɭ
ɪɵ
ɜ
ɨ
ɞɵ
ɜ
ɫɢɫɬ
ɟɦɟ
ɨ
ɬɨɩɥɟɧɢɹ
42
Ⱦɚ
ɬɱɢɤ
ɬɟ
ɦɩɟɪɚ
ɬɭ
ɪɵ
ɜ
ɨ
ɞɵ
Ƚȼ
ɋ
44
Ƚɚ
ɡɨɜɵɣ
ɤɥɚɩɚɧ
47
Ʉɚɛ
ɟ
ɥ
ɶ
“Modureg”
49
ɉɪɟ
ɞɨ
ɯɪɚɧɢɬ
ɟ
ɥɶɧɵɣ
ɬɟɪɦɨɫɬ
ɚ
ɬ
72
Ɍ
ɟ
ɪɦɨɫɬ
ɚ
ɬ
ɬɟ
ɦɩɟɪɚ
ɬɭ
ɪɵ
ɜ
ɨ
ɡɞɭɯ
ɚ
ɜ
ɩɨɦɟɳ
ɟɧɢɢ
(
ɧɟ
ɜɯ
ɨ
ɞ
ɢɬ
ɜ
ɤɨɦɩɥɟɤ
ɬ
ɩɨɫɬ
ɚɜɤɢ
)
81
ɉɨ
ɞɠɢɝ
ɚɸɳɢɣ
/
ɫɥɟ
ɞɹɳɢɣ
ɷɥɟɤ
ɬɪɨ
ɞ
98
ȼ
ɵ
ɤɥ
ɸɱ
ɚɬ
ɟ
ɥ
ɶ
126
Ʉɨɧɬ
ɚɤ
ɬɧɵɣ
ɬɟɪɦɨɫɬ
ɚ
ɬ
ɬɟ
ɦɩɟɪɚ
ɬɭ
ɪɵ
ɩɪɨ
ɞɭɤ
ɬɨ
ɜ
ɫɝ
ɨɪɚɧɢɹ
130
ɐɢɪɤ
ɭɥɹɰɢɨɧɧɵɣ
ɧɚɫ
ɨɫ
ɛɨɣɥɟɪɚ
138
ȼɧɟɲɧɢɣ
ɞɚ
ɬɱɢɤ
139
ɉɭ
ɥɶ
ɬ
Ⱦ
ɍ
246
Ⱦɚ
ɬɱɢɤ
ɞɚɜ
ɥɟɧɢɹ
ȼɇɂɆȺɇɂȿ
ɉɟɪɟ
ɞ
ɩ
ɨ
ɞ
ɤɥ
ɸ
ɱ
ɟɧɢɟɦ
ɬɟɪɦɨɫɬ
ɚ
ɬɚ
ɬɟɦɩɟɪɚ
ɬɭ
ɪɵ
ɜ
ɩ
ɨɦɟɳ
ɟɧɢɢ
ɢɥɢ
ɭɫɬɪɨɣɫɬɜ
ɚ
Ⱦ
ɍ
ɫɧɢɦɢɬ
ɟ
ɩɟɪɟɦɵɱɤ
ɭ
ɧ
ɚ
ɤɥɟɦɦɧɢɰ
ɟ
.