Котел Ferroli New Elite 60 C30 - инструкция пользователя по применению, эксплуатации и установке на русском языке. Мы надеемся, она поможет вам решить возникшие у вас вопросы при эксплуатации техники.
Если остались вопросы, задайте их в комментариях после инструкции.
"Загружаем инструкцию", означает, что нужно подождать пока файл загрузится и можно будет его читать онлайн. Некоторые инструкции очень большие и время их появления зависит от вашей скорости интернета.

113
New Elite 60 C 30
Cod. 3540D092 - 01/2007 (Rev. 00)
4.2
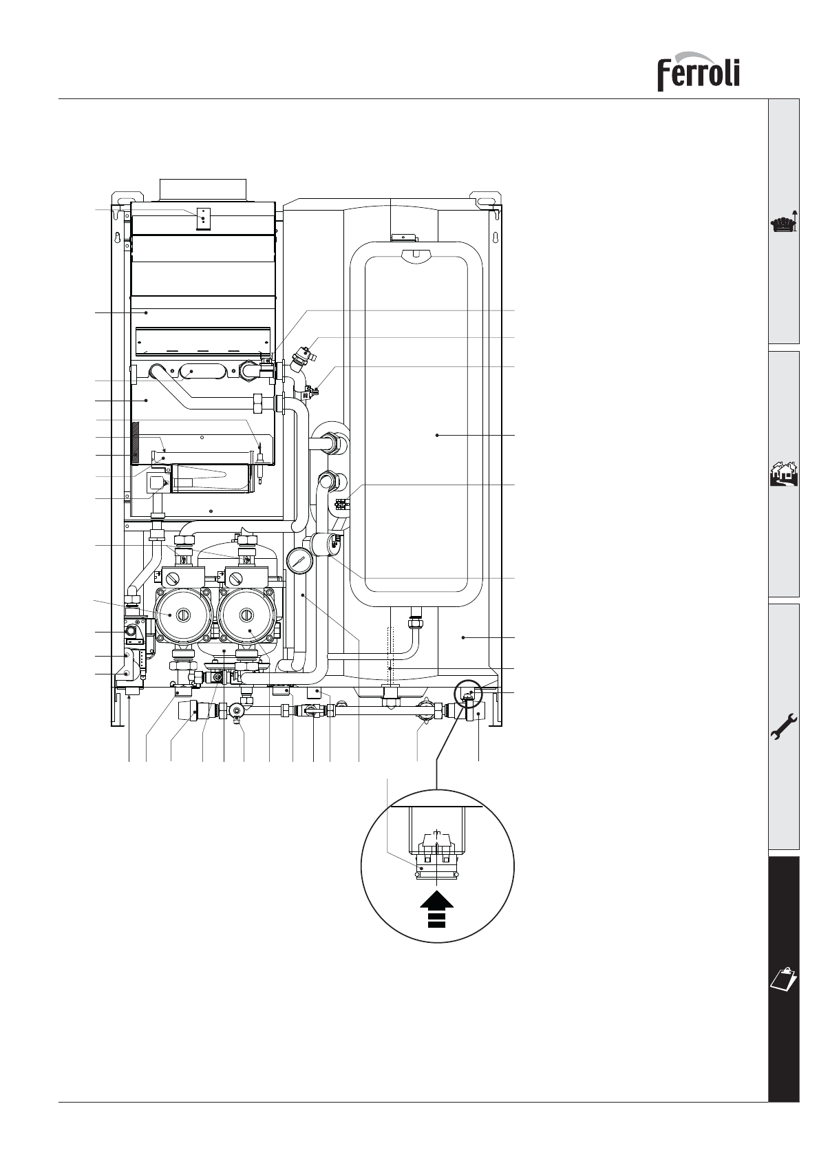
Ɉɛɳɢɣ ɜɢɞ ɢ ɨɫɧɨɜɧɵɟ ɭɡɥɵ
49
56
243
180
7
74
40
28
19
246
44
179
26
84
85
130 10
8 145
11 14a
32
221
197
14b
151
97
197
27
20
22
81
21
34
126
9
179
ɪɢɫ
. 11
Ɉɛɨɡɧɚɱɟɧɢɹ
7
ɉɨɞɜɨɞ ɝɚɡɚ
8
ȼɵɯɨɞ ɜɨɞɵ Ƚȼɋ
9
ɉɨɞɜɨɞ ɜɨɞɵ ɞɥɹ ɤɨɧɬɭɪɚ
Ƚȼɋ
10
ɉɨɞɚɱɚ ɝɨɪɹɱɟɣ ɜɨɞɵ ɜ
ɫɢɫɬɟɦɭ ɨɬɨɩɥɟɧɢɹ
11
ȼɨɡɜɪɚɬ ɢɡ ɫɢɫɬɟɦɵ
ɨɬɨɩɥɟɧɢɹ
14a
ɉɪɟɞɨɯɪɚɧɢɬɟɥɶɧɵɣ
ɤɥɚɩɚɧ
3
ɛɚɪ
(
ɨɬɨɩɥ
.)
14b
ɉɪɟɞɨɯɪɚɧɢɬɟɥɶɧɵɣ
ɤɥɚɩɚɧ
9
ɛɚɪ
(
ɛɨɣɥɟɪ
)
19
Ʉɚɦɟɪɚ ɫɝɨɪɚɧɢɹ
20
Ȼɥɨɤ ɝɨɪɟɥɨɤ
21
Ƚɚɡɨɜɚɹ ɮɨɪɫɭɧɤɚ
22
Ƚɨɪɟɥɤɚ
26
Ɍɟɩɥɨɢɡɨɥɹɰɢɹ ɤɚɦɟɪɵ
ɫɝɨɪɚɧɢɹ
27
Ɇɨɧɨɬɟɪɦɢɱɟɫɤɢɣ ɦɟɞɧɵɣ
ɬɟɩɥɨɨɛɦɟɧɧɢɤ
28
Ʉɨɥɥɟɤɬɨɪ ɩɪɨɞɭɤɬɨɜ
ɫɝɨɪɚɧɢɹ
32
ɐɢɪɤɭɥɹɰɢɨɧɧɵɣ ɧɚɫɨɫ
ɫɢɫɬɟɦɵ ɨɬɨɩɥɟɧɢɹ
34
Ⱦɚɬɱɢɤ ɬɟɦɩɟɪɚɬɭɪɵ ɜɨɞɵ
,
ɩɨɞɚɜɚɟɦɨɣ ɜ ɫɢɫɬɟɦɭ
ɨɬɨɩɥɟɧɢɹ
40
Ɋɚɫɲɢɪɢɬɟɥɶɧɵɣ ɛɚɤ
ɤɨɧɬɭɪɚ Ƚȼɋ
44
Ƚɚɡɨɜɵɣ ɤɥɚɩɚɧ
49
ɉɪɟɞɨɯɪɚɧɢɬɟɥɶɧɵɣ
ɬɟɪɦɨɫɬɚɬ
56
Ɋɚɫɲɢɪɢɬɟɥɶɧɵɣ ɛɚɤ
ɫɢɫɬɟɦɵ ɨɬɨɩɥɟɧɢɹ
74
Ʉɪɚɧ ɞɥɹ ɡɚɥɢɜɤɢ ɜɨɞɵ ɜ
ɫɢɫɬɟɦɭ
81
ɉɨɞɠɢɝɚɸɳɢɣ
/
ɫɥɟɞɹɳɢɣ
ɷɥɟɤɬɪɨɞɵ
84
1
ɣ ɷɥɟɤɬɪɨɦɚɝɧɢɬ ɝɚɡɨɜɨɝɨ
ɤɥɚɩɚɧɚ
85
2
ɣ ɷɥɟɤɬɪɨɦɚɝɧɢɬ ɝɚɡɨɜɨɝɨ
ɤɥɚɩɚɧɚ
97
Ɇɚɝɧɢɟɜɵɣ ɚɧɨɞ
126
Ɍɟɪɦɨɫɬɚɬ ɬɟɦɩɟɪɚɬɭɪɵ
ɩɪɨɞɭɤɬɨɜ ɫɝɨɪɚɧɢɹ
130
ɐɢɪɤɭɥɹɰɢɨɧɧɵɣ ɧɚɫɨɫ
ɛɨɣɥɟɪɚ
145
Ƚɢɞɪɨɦɟɬɪ
151
ɋɥɢɜɧɨɣ ɤɪɚɧ ɛɨɣɥɟɪɚ
179
Ɉɛɪɚɬɧɵɣ ɤɥɚɩɚɧ
180
Ȼɨɣɥɟɪ
197
Ɋɭɱɧɨɣ ɜɟɧɬɢɥɶ ɞɥɹ ɫɩɭɫɤɚ
ɜɨɡɞɭɯɚ
221
Ȼɚɣɩɚɫ
243
Ⱦɚɬɱɢɤ ɬɟɦɩɟɪɚɬɭɪɵ
(
ɛɨɣɥɟɪ
)
246
Ⱦɚɬɱɢɤ ɞɚɜɥɟɧɢɹ