Котел Ferroli GN2 - инструкция пользователя по применению, эксплуатации и установке на русском языке. Мы надеемся, она поможет вам решить возникшие у вас вопросы при эксплуатации техники.
Если остались вопросы, задайте их в комментариях после инструкции.
"Загружаем инструкцию", означает, что нужно подождать пока файл загрузится и можно будет его читать онлайн. Некоторые инструкции очень большие и время их появления зависит от вашей скорости интернета.

4.
ТЕХНИЧЕСКИЕ
ХАРАКТЕРИСТИКИ
Р
усск
ий
Подвод
тепла
газ
+
ж
.
т
.
Выход
тепла
№
элем
.
Содержание
воды
Рабочее
давление
А
В
Падение
дав
-
я
в
камере
горения
Объем
камеры
горения
Падение
давления
воды
Вес
∅
(
НТС
)
кВт
кВт
Модель
Макс
Мин
Макс
Мин
дм
3
бар
мм
мм
мм
Δ
p
мбар
дм
3
кг
Δ
t 10
Δ
t 20
GN2 N 05
98,8 80 90
73 5
49
4 647
130
180
0,4 63 2,8 - 310
GN2 N 06
116,0 95 107
87 6
57
4 757
130
180
0,4 77 3,4 - 361
GN2 N 07
136,9 110 126
101 7
65
4 867
130
180
0,4 91 4,8
0,5 412
GN2 N 08
156,5 125 144
115 8
73
4 977
154
200
0,4 104 6,5
0,8 463
GN2 N 09
176,0 140 162
129 9
81
4 1087 154
200
0,4 118 8,5
1,8 514
GN2 N 10
195,6 155 180
143
10
89
4 1197 154
200
0,4 132 11 2,2 565
GN2 N 11
215,2 170 198
157
11
97
4 1307 154
200
0,4 146 13 2,6 616
GN2 N 12
234,7 185 216
171
12
105
4 1417 154
200
0,4 160 16 3,2 670
GN2 N 13
254,3 200 234
185
13
113
4 1527 154
200
0,4 174 19 4 725
GN2 N 14
273,9 215 252
199
14
121
4 1637 154
200
0,4 187 23 4,5 780
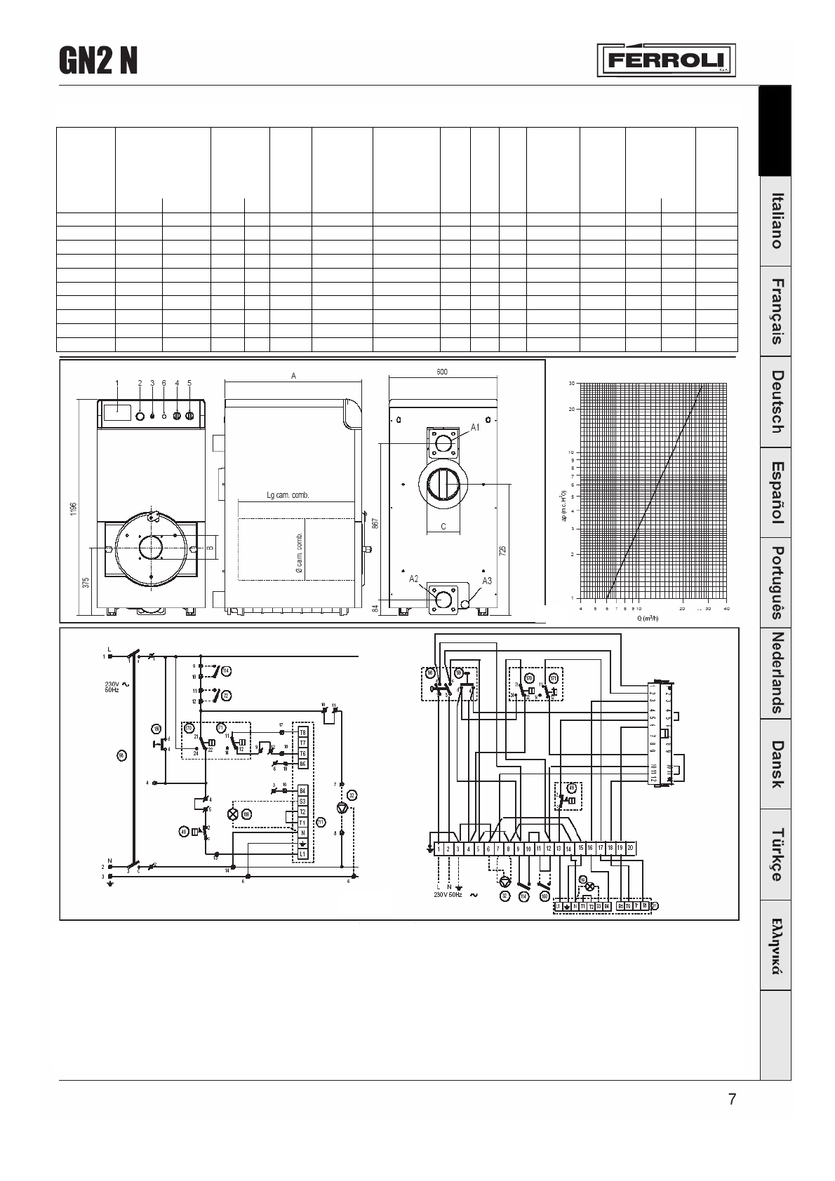
Рис
. 3
Рис
. 4
Рис
. 5
32
Легенда
Насос
(
не
в
комплекте
)
49
Предохранительное
термореле
1
72
Готовый
блок
эл
-
го
регулирования
Термостат
помещения
(
не
в
комп
.)
2
98
Термогидрометр
Выключатель
3
114
Предохранительное
термореле
Выключатель
по
давлению
воды
4
159
Термостат
управления
2-
й
стадии
Тестовая
кнопка
5
160
Линейный
выключатель
Дополнительный
контакт
6
170
Индикатор
блокировки
горелки
Термостат
котла
1-
й
стадии
a1
171
Прим
.
Отмеченное
штриховой
DN80-3”
выход
центрального
отопления
Термостат
котла
2
й
стадии
a2
189
DN80-3”
вход
возврата
ЦО
Индикатор
блокировки
(
не
в
комп
.)
линией
–
ответсвенность
a3
211
Дренаж
котла
3/4"
Соединение
горелки
установщика