Котел Ferroli GN2 - инструкция пользователя по применению, эксплуатации и установке на русском языке. Мы надеемся, она поможет вам решить возникшие у вас вопросы при эксплуатации техники.
Если остались вопросы, задайте их в комментариях после инструкции.
"Загружаем инструкцию", означает, что нужно подождать пока файл загрузится и можно будет его читать онлайн. Некоторые инструкции очень большие и время их появления зависит от вашей скорости интернета.

Р
усск
ий
2.1
Подключение
воды
Подключите
устройство
к
водоснабжению
,
следуя
указаниям
,
показанным
как
около
каждого
переходника
,
так
и
на
рисунке
2
этого
буклета
.
Подключения
должны
быть
выполнены
так
,
чтобы
не
было
напряжения
на
трубах
.
В
центральном
кольце
отопления
необходимо
предусмотреть
предохранительный
клапан
,
который
должен
быть
установлен
,
как
можно
ближе
к
котлу
без
каких
-
либо
препятствий
или
запорных
устройств
между
котлом
и
клапаном
.
Устройство
поставляется
без
компенсатора
,
и
,
следовательно
,
этот
блок
должен
быть
подключен
установщиком
.
Отметьте
,
что
при
этом
давление
в
системе
,
в
холодном
состоянии
,
должно
быть
от
0,5
до
1
бара
.
2.2
Подключение
горелки
Могут
быть
использованы
струйные
горелки
на
жидком
топливе
и
газе
для
топок
под
давлением
,
если
их
рабочие
характеристики
соответствуют
размерам
и
предельным
давлениям
топок
котла
.
Горелка
должна
быть
выбрана
с
учетом
инструкций
производителя
,
в
соответствии
с
областью
применения
,
потреблением
топлива
и
давлением
,
а
также
длиной
,
камеры
горения
.
Отрегулируйте
горелку
,
следуя
инструкциям
производителя
.
2.3
Электрические
подключения
Котел
должен
быть
подключен
к
однофазному
источнику
электроснабжения
230
В
, 50
Гц
с
использованием
постоянного
подключения
с
двухпозиционным
переключателем
с
размыканием
контактов
не
менее
3
мм
и
соответствующими
предохранителями
.
Схема
подключения
котла
и
термостата
(
при
наличии
) –
в
главе
4.
Электрическая
безопасность
устройства
обеспечивается
только
при
правильном
заземлении
,
как
предписывается
действующими
стандартами
по
безопасности
.
Проверка
и
определение
класса
заземления
должны
быть
выпол
-
нены
квалифицированным
персоналом
.
Производитель
снимает
с
себя
ответственность
за
любые
повреждения
,
возникшие
при
отсутствии
заземления
.
В
дополнение
,
убедитесь
,
что
электрическая
система
соответствует
потребляемой
мощности
устройства
,
в
частности
,
что
размеры
проводов
соответствуют
мощности
устройства
2.4
Подключение
газохода
Котел
должен
быть
подключен
к
сделанному
в
соответствии
со
стандартом
газоходу
.
Труба
между
котлом
и
газоходом
должна
быть
сделана
из
материалов
,
способных
противостоять
высокой
температуре
и
коррозии
.
Стыки
должны
быть
герметичными
,
а
труба
по
всей
длине
между
котлом
и
газоходом
–
изолирована
во
избежание
образования
конденсата
.
2.5
Сборка
котла
Котел
может
поставляться
:
1.
Как
набор
элементов
,
в
4
отдельных
ящиках
,
содержащих
кожух
,
панель
управления
,
элементы
и
аксессуары
для
сборки
элементов
.
Следуйте
вложенной
в
набор
элементов
инструкции
для
сборки
корпуса
котла
.
Следуйте
инструкции
ниже
для
сборки
кожуха
и
панели
управления
.
2.
С
собранным
корпусом
,
в
3
отдельных
ящиках
,
содержащих
кожух
,
панель
управления
и
корпус
котла
.
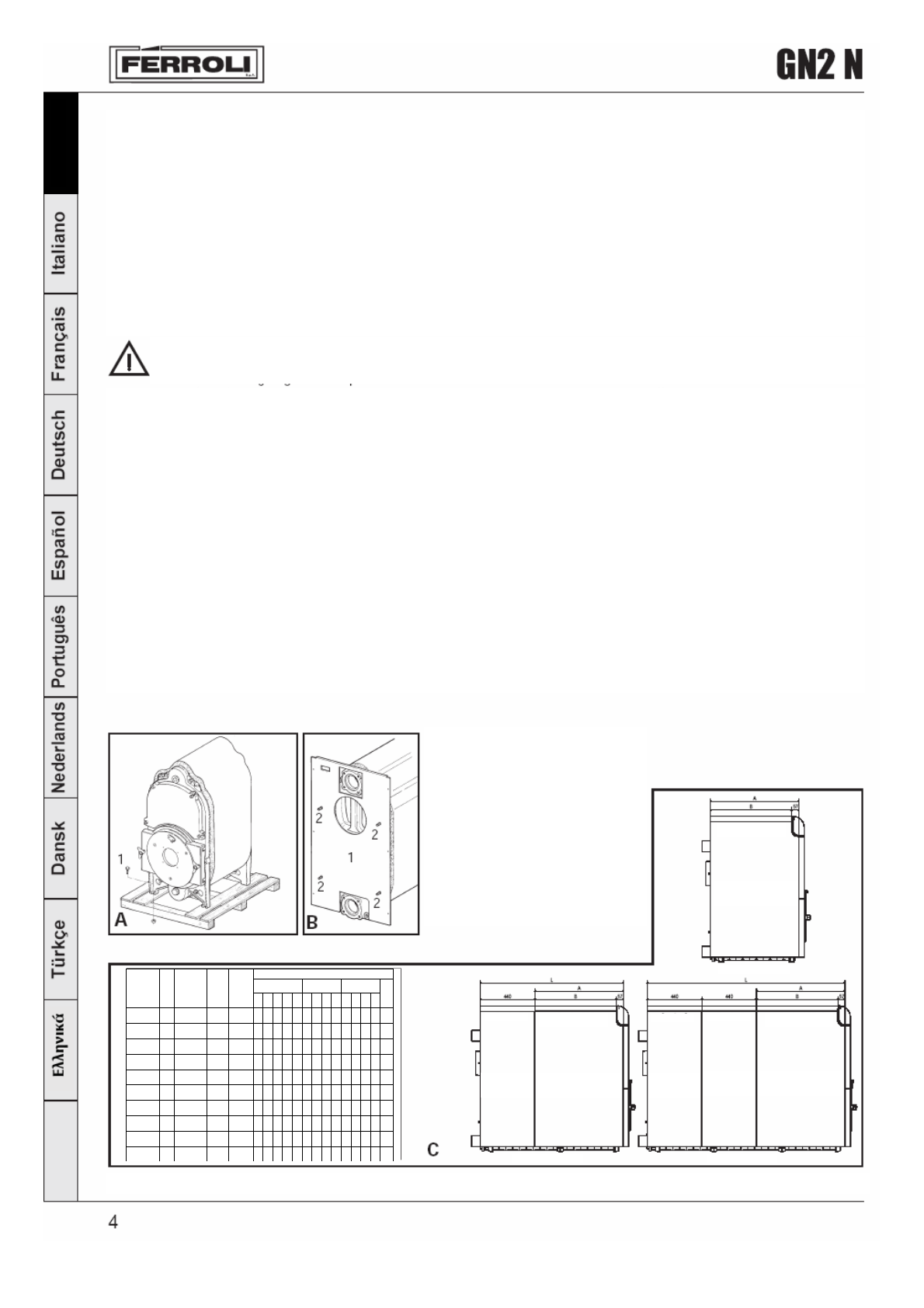
А
При
поставке
с
собранным
кор
-
пусом
котла
он
поставляется
с
завода
на
поддоне
,
открутите
болты
1
,
которыми
корпус
крепится
к
поддону
,
и
поставь
-
те
корпус
на
место
работы
.
Затем
прикрепляйте
различ
-
ные
панели
.
B
Установите
заднюю
панель
на
штифты
и
слабо
затяните
болты
.
Тип
крышки
1,2,3
и
4
Л
.
и
П
.
стороны
1,2,3
и
4
Версия
5-8
элементов
Количество
Тип
крышки
Тип
л
.
ст
.
Тип
.
п
.
ст
.
Модель
№
эл
.
L
A
B
1 2 3 4 5 1 2 3 4 1 2 3 4
Об
ст
.
GN2 N
5
/
604 547 1 1 1
GN2 N
6
/
714 657 1 1 1
GN2 N
7
/
824 767 1 1 1
GN2 N
8
/
934 877 1 1 1
GN2 N
9 1044 604 547 1 1 1 1 2
GN2 N
10 1154 714 657 1 1 1 1 2
GN2 N
11 1264 824 767 1 1 1 1 2
GN2 N
12 1374 934 877 1 1 1 1 2
GN2 N
13 1484 604 547 1 2 1 1 4
GN2 N
14 1594 714 657 1 2 1 1 4
Тип
крышки
5
Тип
крышки
5
Тип
крышки
1,2,3
и
4
Тип
крышки
1,2,3
и
4
Тип
крышки
5
Л
.
и
П
.
стороны
1,2,3
и
4
Обратимая
сторона
Обратимая
сторона
Обратимая
сторона
Л
.
и
П
.
стороны
1,2,3
и
4
Версия
13-14
элементов
Версия
9-12
элементов
С
Подготовьте
левую
и
правую
стороны
,
выбрав
количество
панелей
в
соответствии
с
размером
котла
(
см
.
табл
.)