Котел Ferroli Econcept Tech 25A - инструкция пользователя по применению, эксплуатации и установке на русском языке. Мы надеемся, она поможет вам решить возникшие у вас вопросы при эксплуатации техники.
Если остались вопросы, задайте их в комментариях после инструкции.
"Загружаем инструкцию", означает, что нужно подождать пока файл загрузится и можно будет его читать онлайн. Некоторые инструкции очень большие и время их появления зависит от вашей скорости интернета.

ECONCEPT TECH 25 A
121
RU
cod. 3540I311 - 05/2008 (Rev. 00)
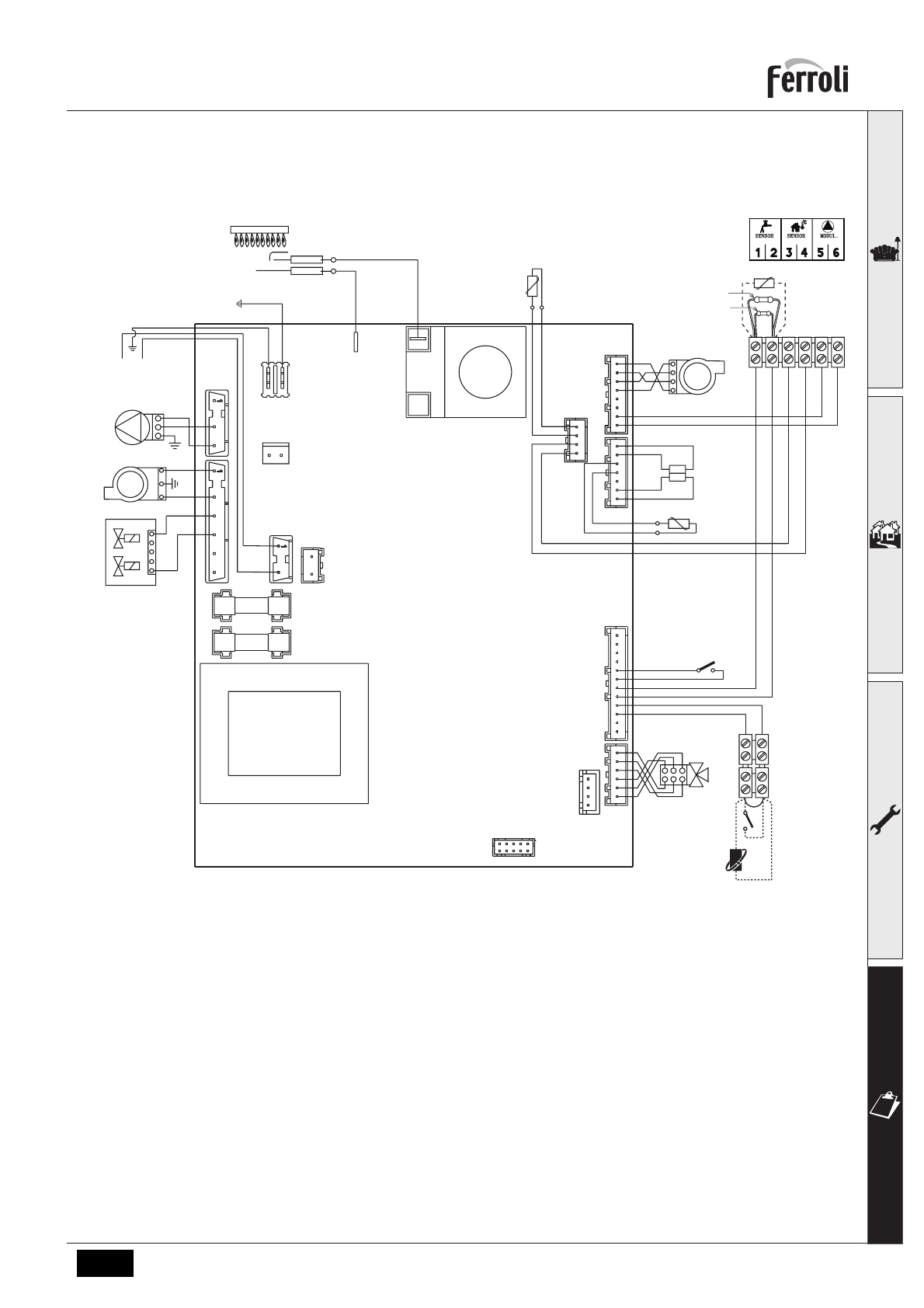
4.6
Электрическая
схема
рис
. 34 -
Электрическая
схема
A
Внимание
:
Перед
подключением
>
комнатного
термостата
или
устройства
ДУ
снимите
перемычку
на
доске
зажимов
.
16
Вентилятор
32
Циркуляционный
насос
системы
отопления
44
Газовый
клапан
72
Комнатный
термостат
82
Следящий
электрод
95
Отводной
клапан
114
Реле
давления
воды
138
Датчик
наружной
температуры
139
Устройство
дистанционного
управления
с
таймером
155
Датчик
температуры
воды
в
системе
ГВС
(
опция
)
186
Датчик
возврата
188
Электрод
розжига
191
Датчик
температуры
дымовых
газов
278
Сдвоенный
датчик
(
отопление
+
безопасность
)
256
Сигнал
от
модулирующего
циркуляционного
насоса
системы
отопления
72
95
155
114
191
16
186
188
82
T°
T°
278
139
138 256
32
16
44
N
L
230V
50Hz
1 2 3 4 5 6
DBM04A
10kOhm
1.8kOhm
Содержание
- 2 ECONCEPT TECH 25 A; Декларация
- 4 Инструкции; Предисловие; Панель; Обозначения; reset
- 6 Включение; Выключение
- 7 Регулировки
- 9 Таблица
- 10 Регулирование
- 11 Установка; Предупреждения
- 13 Соединение; Присоединение
- 14 Подключение
- 15 Доступ; Дымоходы
- 19 Слив
- 20 Эксплуатация
- 22 Ввод; Уход
- 23 Снятие
- 24 Неисправности; Диагностика
- 26 Характеристики; Габаритные
- 27 Общий
- 28 Схема
- 30 Диаграммы; Потеря
- 31 Электрическая