Котел Ferroli Domina F 30 - инструкция пользователя по применению, эксплуатации и установке на русском языке. Мы надеемся, она поможет вам решить возникшие у вас вопросы при эксплуатации техники.
Если остались вопросы, задайте их в комментариях после инструкции.
"Загружаем инструкцию", означает, что нужно подождать пока файл загрузится и можно будет его читать онлайн. Некоторые инструкции очень большие и время их появления зависит от вашей скорости интернета.

DOMINA F 30
1 5
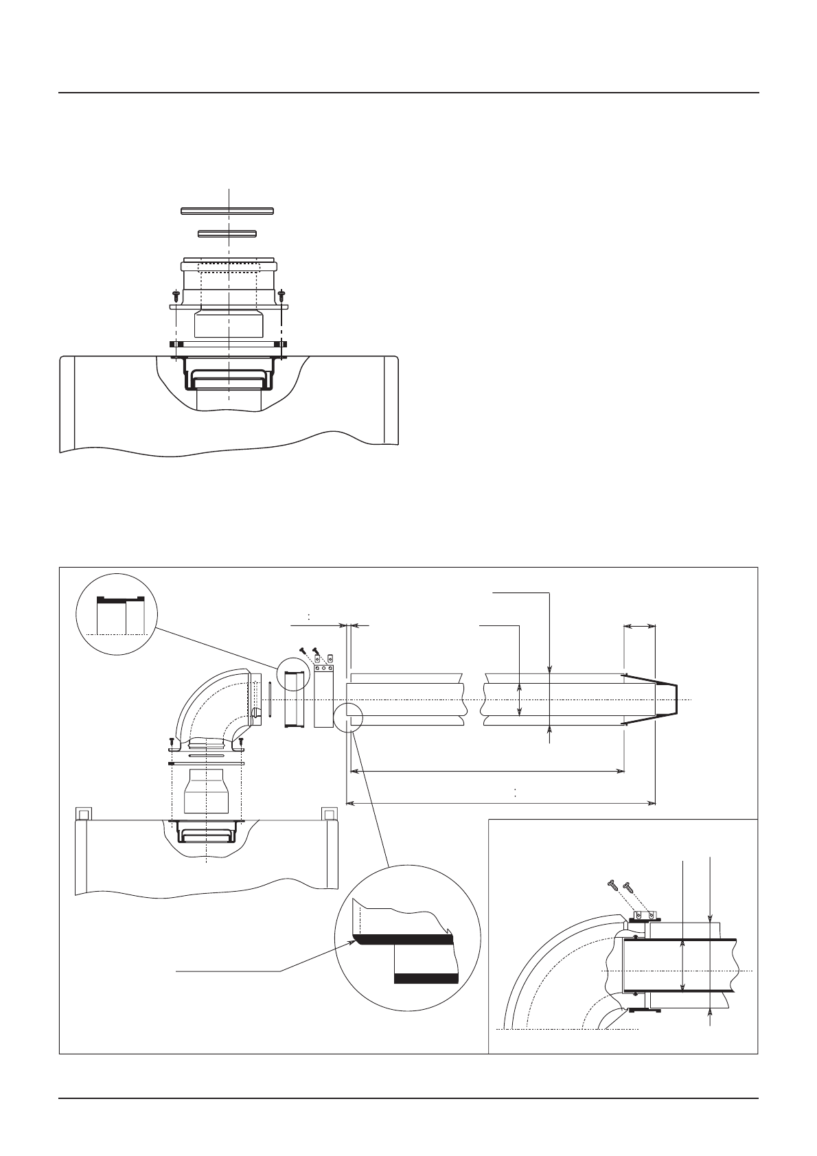
3.05.2 –ÓˆÔ√¸¯˝Ê¯ ˘ÓÏÊÙÓ˝ÚÍÔÒ˝Ó¯ ˆÓ͈ÁÊÍÔÒ˝Ó¯
‚¯Ó¬‰ÓÊ˙Ó ˆÓÔ¯˝Ó 90∞ (ÏÊÁ. 12) Ô˛ ˘ÓÏÊÙÓ˝ÚÍÔÒ˝Ó˘Ó ÎÓˆÔ√¸¯˝Ê˛ ÚÏȬ ËÓÙȉ-˜˙, ˆÓÚÓÏͲ ˙Ó≈¯Ú
¬˜ÚÒ ÓÏʯ˝ÚÊÏÓËÍ˝Í ˆ Ë˝ÈÚϯ˝˝¯ı ÁÚ¯˝¯, ÎϯÎÓ¸ÚÊÚ¯ÔÒ˝Ó Á ÎÓËÓÏÓÚÓ˙ 45∞.
3.05 ÃÓ¯Ê˝¯˝Ê¯ Á ˆÓ͈ÁÊÍÔÒ˝˜˙Ê ÚÏȬÍ˙Ê
3.05.1 –ÓˆÔ√¸¯˝Ê¯ ˯ÏÚʈÍÔÒ˝Ó¯ ˆÓ͈ÁÊÍÔÒ˝Ó¯
—ÊÁ. 12
—ÊÁ. 11
Õ¯ÏÚʈÔÒ˝.
ˆÓ͈ÁÊÍÔ.
ÁÓ¯Ê˝¯˝Ê¯
L
A=L+(85-90)mm
Ø2
Ø1
Particolare del montaggio della curva
25-30 mm
60
Ø2
Sbavare il tubo
interno Ø60
Ø1
Ø1=100 Ø2=60
–Ó Ù͈ÍÙÈ ËÓÙ˙Ó≈˝Í ÎÓÁÚÍËˆÍ ˝Í¬ÓÏÍ
ÍÔ√˙Ê˝Ê¯Ë˜‰ ÈÙÔÓË Ô˛ ÈÍÔ¯˝Ê˛ ˜˙Í Á
˯ÏÚʈÍÔÒ˝˜˙Ê ˆÓ͈ÁÊÍÔÒ˝˜˙Ê ÚÏȬÍ˙Ê.
‘¯˘ˆÊı ÁÎÓÁÓ¬ ÈÁÚÍ˝ÓËˆÊ Ê ÊÁÎÓÔÒÙÓËÍ˝Ê¯
ËÈ˘È¬˝˜‰ ÎÏÓˆÔÍÓˆ ˝Í ÁÚ͈͉ ¯ÔͯÚ
Í˝˝Ó¯ ϯ̯˝Ê¯ ˝Í¯≈˝˜˙ Ê Ë˜˘Ó˝˜˙.
