Котел Ferroli Divatop F37 - инструкция пользователя по применению, эксплуатации и установке на русском языке. Мы надеемся, она поможет вам решить возникшие у вас вопросы при эксплуатации техники.
Если остались вопросы, задайте их в комментариях после инструкции.
"Загружаем инструкцию", означает, что нужно подождать пока файл загрузится и можно будет его читать онлайн. Некоторые инструкции очень большие и время их появления зависит от вашей скорости интернета.

DIVAtop F 37
108
RU
cod. 3540I531 - 11/2008 (Rev. 00)
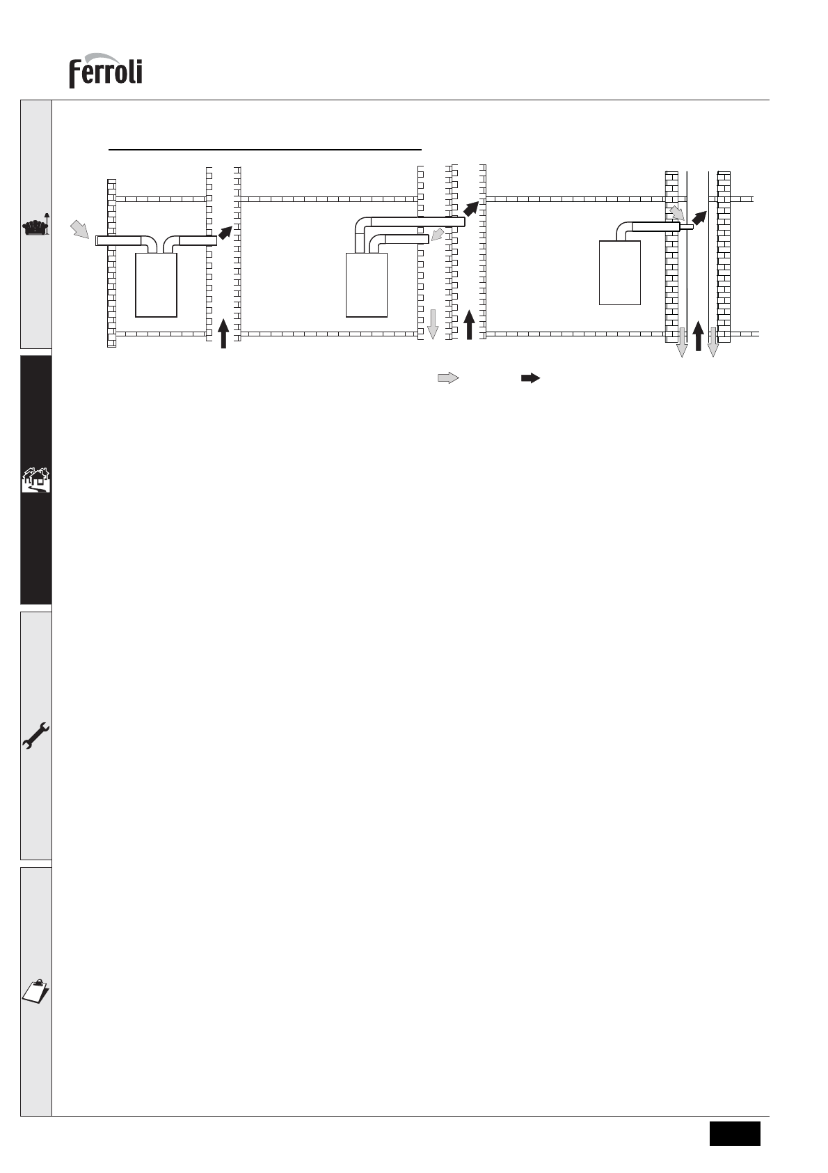
ɉɨɞɫɨɟɞɢɧɟɧɢɟ ɤ ɤɨɥɥɟɤɬɢɜɧɵɦ ɞɵɦɨɯɨɞɚɦ
ɪɢɫ
. 25 -
ɉɪɢɦɟɪɵ ɩɨɞɫɨɟɞɢɧɟɧɢɹ ɤ ɞɵɦɨɯɨɞɚɦ
(
=
ȼɨɡɞɭɯ
/
=
ɉɪɨɞɭɤɬɵ ɫɝɨɪɚɧɢɹ
)
ɉɨɷɬɨɦɭ
,
ɟɫɥɢ ȼɵ ɯɨɬɢɬɟ ɩɨɞɫɨɟɞɢɧɢɬɶ ɤɨɬɟɥ
DIVAtop F 37
ɤ ɤɨɥɥɟɤɬɢɜɧɨɦɭ ɞɵɦɨɯɨɞɭ ɢɥɢ ɤ ɨɬɞɟɥɶɧɨɦɭ ɞɵɦɨɯɨɞɭ ɫ
ɟɫɬɟɫɬɜɟɧɧɨɣ ɬɹɝɨɣ
,
ɧɟɨɛɯɨɞɢɦɵɦ ɭɫɥɨɜɢɟɦ ɹɜɥɹɟɬɫɹ
,
ɱɬɨɛɵ ɷɬɢ ɞɵɦɨɯɨɞɵ ɛɵɥɢ ɫɩɪɨɟɤɬɢɪɨɜɚɧɵ ɤɜɚɥɢɮɢɰɢɪɨɜɚɧɧɵɦɢ
ɫɩɟɰɢɚɥɢɫɬɚɦɢ ɜ ɫɨɨɬɜɟɬɫɬɜɢɢ ɫ ɞɟɣɫɬɜɭɸɳɢɦɢ ɧɨɪɦɚɦɢ ɢ ɩɨɞɯɨɞɢɥɢ ɞɥɹ ɚɝɪɟɝɚɬɨɜ ɫ ɡɚɤɪɵɬɨɣ ɤɚɦɟɪɨɣ ɫɝɨɪɚɧɢɹ
,
ɨɛɨɪɭɞɨɜɚɧɧɵɯ ɜɟɧɬɢɥɹɬɨɪɨɦ
.
ȼ ɱɚɫɬɧɨɫɬɢ
,
ɬɚɤɢɟ ɞɵɦɨɯɨɞɵ ɞɨɥɠɧɵ ɢɦɟɬɶ ɫɥɟɞɭɸɳɢɟ ɯɚɪɚɤɬɟɪɢɫɬɢɤɢ
:
•
ɂɦɟɬɶ ɪɚɡɦɟɪɵ
,
ɪɚɫɫɱɢɬɚɧɧɵɟ ɜ ɫɨɨɬɜɟɬɫɬɜɢɢ ɫ ɞɟɣɫɬɜɭɸɳɢɦɢ ɧɨɪɦɚɦɢ
.
•
Ɉɛɟɫɩɟɱɢɜɚɬɶ ɝɟɪɦɟɬɢɱɧɨɫɬɶ ɢ ɨɬɫɭɬɫɬɜɢɟ ɭɬɟɱɟɤ ɩɪɨɞɭɤɬɨɜ ɫɝɨɪɚɧɢɹ
,
ɛɵɬɶ ɭɫɬɨɣɱɢɜɵɦɢ ɤ ɜɨɡɞɟɣɫɬɜɢɸ ɩɪɨɞɭɤɬɨɜ
ɫɝɨɪɚɧɢɹ ɢ ɬɟɦɩɟɪɚɬɭɪɵ
,
ɛɵɬɶ ɧɟɩɪɨɧɢɰɚɟɦɵɦɢ ɞɥɹ ɤɨɧɞɟɧɫɚɬɚ
.
•
ɂɦɟɬɶ ɤɪɭɝɥɨɟ ɢɥɢ ɤɜɚɞɪɚɬɧɨɟ ɫɟɱɟɧɢɟ
,
ɛɵɬɶ ɩɪɨɥɨɠɟɧɧɵɦ ɜɟɪɬɢɤɚɥɶɧɨ ɢ ɧɟ ɢɦɟɬɶ ɭɡɨɫɬɟɣ
.
•
Ɉɛɟɫɩɟɱɢɜɚɬɶ ɞɨɫɬɚɬɨɱɧɭɸ ɞɢɫɬɚɧɰɢɸ ɝɨɪɹɱɢɯ ɩɪɨɞɭɤɬɨɜ ɫɝɨɪɚɧɢɹ ɨɬ ɨɝɧɟɨɩɚɫɧɵɯ ɦɚɬɟɪɢɚɥɨɜ ɢɥɢ ɢɯ ɢɡɨɥɹɰɢɸ ɨɬ ɧɢɯ
.
•
Ȼɵɬɶ ɩɨɞɫɨɟɞɢɧɟɧɧɵɦɢ ɧɟ ɛɨɥɟɟ
,
ɱɟɦ ɤ ɨɞɧɨɦɭ ɚɝɪɟɝɚɬɭ ɧɚ ɤɚɠɞɨɦ ɷɬɚɠɟ
.
•
Ȼɵɬɶ ɩɨɞɫɨɟɞɢɧɟɧɧɵɦɢ ɤ ɚɝɪɟɝɚɬɚɦ ɬɨɥɶɤɨ ɨɞɧɨɝɨ ɬɢɩɚ
(
ɜɫɟ ɨɧɢ ɞɨɥɠɧɵ ɛɵɬɶ ɥɢɛɨ ɫ ɩɪɢɧɭɞɢɬɟɥɶɧɨɣ ɬɹɝɨɣ ɥɢɛɨ ɫ
ɟɫɬɟɫɬɜɟɧɧɨɣ ɬɹɝɨɣ
).
•
ɇɟ ɢɦɟɬɶ ɦɟɯɚɧɢɱɟɫɤɢɯ ɫɪɟɞɫɬɜ ɜɫɚɫɵɜɚɧɢɹ ɜ ɨɫɧɨɜɧɵɯ ɜɨɡɞɭɯɨɜɨɞɚɯ
.
•
ɂɦɟɬɶ ɪɚɡɪɟɠɟɧɢɟ ɞɚɜɥɟɧɢɹ ɩɨ ɜɫɟɣ ɞɥɢɧɟ ɜ ɭɫɥɨɜɢɹɯ ɫɬɚɰɢɨɧɚɪɧɨɣ ɪɚɛɨɬɵ
.
•
ɂɦɟɬɶ ɜ ɫɜɨɟɦ ɨɫɧɨɜɚɧɢɢ ɤɚɦɟɪɭ ɞɥɹ ɫɛɨɪɚ ɬɜɟɪɞɵɯ ɨɫɬɚɬɤɨɜ ɢɥɢ ɤɨɧɞɟɧɫɚɬɚ
,
ɫɧɚɛɠɟɧɧɭɸ ɝɟɪɦɟɬɢɱɧɨ ɡɚɤɪɵɜɚɸɳɢɦɫɹ
ɦɟɬɚɥɥɢɱɟɫɤɢɦ ɫɦɨɬɪɨɜɵɦ ɥɸɤɨɦ
.
C
82
C
42
C
42